Löggiltir fasteignasalar innan Félags fasteignasala:
Hannes Steindórsson
Bogi Molby Pétursson
Guðrún Antonsdóttir
Heimir Hallgrímsson
Hrafnkell P. H. Pálmason
Viðar Marinósson
Elías Haraldsson
Kristján Þórir Hauksson
Albert Bjarni Úlfarsson
Ragnar Þorsteinsson
Þórey Ólafsdóttir
Andri Freyr Halldórsson
Upplýsingar
Verðsaga
Byggt 2023
84,2 m²
3 herb.
1 baðherb.
2 svefnh.
Þvottahús
Sameiginl. inngangur
Bílastæði
Lýsing
Atli Karl á Lind fasteignasölu kynnir í einkasölu glæsilega og rúmgóða 3ja herbergja íbúð á fyrstu hæð með þvottahúsi og palli. Eignin er parketlögð með viðar fiskibeinaparketi og skartar glæsilegri aukinni lofthæð. Eigninni fylgir einnig stæði í bílageymslu.
Eignin Hringhamar 13 er skráð sem hér segir hjá FMR: Eign 252-9187, stærð er 84.2 fm þar af 4.4 fm geymsla.
Nánari upplýsingar og bókið skoðun hjá:
Atli Karl Pálmason - Löggiltur fasteignasala / 662 4252 / [email protected]
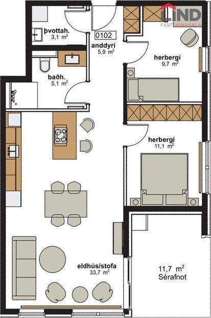
Eignin skiptist í: Forstofu, stofu og borðstofu, eldhús, svefnherbergi I, svefnherbergi ll og þvottahús.
Nánari lýsing:
Forstofa með parketi á gólfi og fataskápur frá Axis.
Stofa er rúmgóð í opnu alrými með parketi á gólfi. Útgengi út á lokaðan viðarpall (11,7 fm)
Eldhús með parketi á gólfi og eldhúsinnrétting er sérsmíðuð af vandaðri gerð frá Axis ásamt vaski og Grohe blöndunartækjum frá Byko. Helluborð og blástursofn eru af gerðinni AEG frá Ormsson. Gufugleypir í eldhúsi er einnig frá Ormsson.
Baðherbergi er með innréttingu frá Axis. Hreinlætistæki og handklæðaofn eru frá Byko. Salernið er upphengt og innbyggt. Hitastýrð blöndunartæki við sturtu. Gólf er flísalagt og veggir að hluta upp í loft.
Svefnherbergi I er parketlagt með fataskáp af vandaðri gerð frá Axis (11,1 fm).
Svefnherbergi II er parketlagt með fataskáp af vandaðri gerð frá Axis (9,7 fm).
Þvottahús er flísalagt með innréttingu fyrir þvottavél og þurkara (3,1 fm).
Geymsla í sameign (merkt 129 og er 4,4 fm).
Eigninni fylgir stæði í bílageymslu (merkt B67).
Allar íbúðir eru búnar með sérstöku loftræstiskerfi. Umframgæði sem tryggja mjög góð loftskipti og góða nýtingu á varma. Einnig eru flísar á veggjum baðherbergja, flísar eru frá Parka. Fataskápar í herbergjum og forstofu eru af vandaðri gerð frá Axis. Borðplötur eru í eldhúsi, baði og þvottahúsi þar sem við á og eru frá Axis. Húsið er staðsteypt. Útveggir einangraðir og klæddir að utan með álklæðningu.
Hringhamar 13 er 4 hæðir með 15 íbúðum. Heildarfjöldi bílastæða á lóðinni er 160. Þau skiptast þannig að 84 almenn stæði eru í sameiginlegum bílakjallara auk 5 stæða fyrir hreyfihamlaða. Á lóðinni eru 65 almenn stæði auk 6 stæða fyrir hreyfihamlaða.
Lind fasteignasala ehf kynnir eignina Hringhamar 13, 221 Hafnarfjörður, nánar tiltekið eign merkt 01-02, fastanúmer 252-9187 ásamt öllu því sem eigninni fylgir, þar með talið tilheyrandi lóðar og sameignarréttindi.
Nánari upplýsingar veitir Atli Karl Pálmason Löggiltur fasteignasali, í síma 6624252, tölvupóstur [email protected].
-----------------------------------------------------------------------
Gjöld sem kaupandi þarf að standa straum af vegna kaupanna:
1. Stimpilgjald af kaupsamningi - 0.8% af heildarfasteignamati / 1.6% fyrir lögaðila
Fyrstu kaup - 0,4% af heildarfasteignamati
2. Þinglýsingagjald af kaupsamningi, veðskuldabréfi, veðleyfi o.fl.- kr. 2.700 af hverju skjali.
3. Lántökugjald lánastofnunar
4. Umsýsluþóknun til fasteignasölu, sbr.kauptilboð.
Eignin Hringhamar 13 er skráð sem hér segir hjá FMR: Eign 252-9187, stærð er 84.2 fm þar af 4.4 fm geymsla.
Nánari upplýsingar og bókið skoðun hjá:
Atli Karl Pálmason - Löggiltur fasteignasala / 662 4252 / [email protected]
Eignin skiptist í: Forstofu, stofu og borðstofu, eldhús, svefnherbergi I, svefnherbergi ll og þvottahús.
Nánari lýsing:
Forstofa með parketi á gólfi og fataskápur frá Axis.
Stofa er rúmgóð í opnu alrými með parketi á gólfi. Útgengi út á lokaðan viðarpall (11,7 fm)
Eldhús með parketi á gólfi og eldhúsinnrétting er sérsmíðuð af vandaðri gerð frá Axis ásamt vaski og Grohe blöndunartækjum frá Byko. Helluborð og blástursofn eru af gerðinni AEG frá Ormsson. Gufugleypir í eldhúsi er einnig frá Ormsson.
Baðherbergi er með innréttingu frá Axis. Hreinlætistæki og handklæðaofn eru frá Byko. Salernið er upphengt og innbyggt. Hitastýrð blöndunartæki við sturtu. Gólf er flísalagt og veggir að hluta upp í loft.
Svefnherbergi I er parketlagt með fataskáp af vandaðri gerð frá Axis (11,1 fm).
Svefnherbergi II er parketlagt með fataskáp af vandaðri gerð frá Axis (9,7 fm).
Þvottahús er flísalagt með innréttingu fyrir þvottavél og þurkara (3,1 fm).
Geymsla í sameign (merkt 129 og er 4,4 fm).
Eigninni fylgir stæði í bílageymslu (merkt B67).
Allar íbúðir eru búnar með sérstöku loftræstiskerfi. Umframgæði sem tryggja mjög góð loftskipti og góða nýtingu á varma. Einnig eru flísar á veggjum baðherbergja, flísar eru frá Parka. Fataskápar í herbergjum og forstofu eru af vandaðri gerð frá Axis. Borðplötur eru í eldhúsi, baði og þvottahúsi þar sem við á og eru frá Axis. Húsið er staðsteypt. Útveggir einangraðir og klæddir að utan með álklæðningu.
Hringhamar 13 er 4 hæðir með 15 íbúðum. Heildarfjöldi bílastæða á lóðinni er 160. Þau skiptast þannig að 84 almenn stæði eru í sameiginlegum bílakjallara auk 5 stæða fyrir hreyfihamlaða. Á lóðinni eru 65 almenn stæði auk 6 stæða fyrir hreyfihamlaða.
Lind fasteignasala ehf kynnir eignina Hringhamar 13, 221 Hafnarfjörður, nánar tiltekið eign merkt 01-02, fastanúmer 252-9187 ásamt öllu því sem eigninni fylgir, þar með talið tilheyrandi lóðar og sameignarréttindi.
Nánari upplýsingar veitir Atli Karl Pálmason Löggiltur fasteignasali, í síma 6624252, tölvupóstur [email protected].
-----------------------------------------------------------------------
Gjöld sem kaupandi þarf að standa straum af vegna kaupanna:
1. Stimpilgjald af kaupsamningi - 0.8% af heildarfasteignamati / 1.6% fyrir lögaðila
Fyrstu kaup - 0,4% af heildarfasteignamati
2. Þinglýsingagjald af kaupsamningi, veðskuldabréfi, veðleyfi o.fl.- kr. 2.700 af hverju skjali.
3. Lántökugjald lánastofnunar
4. Umsýsluþóknun til fasteignasölu, sbr.kauptilboð.
Ár
Fasteignamat
Kaupverð
Stærð
Fermetraverð
5. feb. 2025
62.900.000 kr.
67.900.000 kr.
40102 m²
1.693 kr.
Byggt á upplýsingum úr Þjóðskrá Íslands frá 2006-2026