Löggiltir fasteignasalar innan Félags fasteignasala:
Knútur Bjarnason
Rúnar Þór Árnason
Gunnar Sv. Friðriksson
Hólmar Björn Sigþórsson
Linda Björk Ingvadóttir
Kristján Þór Sveinsson
María Steinunn Jóhannesdóttir
Ragnheiður Árnadóttir
Vista
fjölbýlishús

Hverfisgata 82

101 Reykjavík

49.500.000 kr.

995.976 þ.kr./m2
Fasteignanúmer

F2005002

Fasteignamat

50.350.000 kr.

Brunabótamat

25.900.000 kr.

Áhvílandi

0 kr.

Arion banki – Reikna lán
Upplýsingar
svg
Byggt 1960
svg
49,7 m²
svg
2 herb.
svg
1 baðherb.
svg
1 svefnh.
svg
Útsýni
svg
Sameiginl. inngangur
svg
Laus strax

Lýsing

Hólmar Björn Sigþórsson löggiltur fasteignasali og Helgafell fasteignasala kynna í einkasölu Hverfisgötu 82, íbúð 401, 101 Reykjavík:

Um er að ræða bjarta 2ja herbergja útsýnisíbúð á 4. hæð í vel viðhöldnu fjölbýlishúsi í miðbæ Reykjavíkur.  Frábært útsýni í norður í átt að Esjunni.  Birt stærð eignar er 49,7 fm og að auki er sérgeymsla á hæðinni. Húsið er byggt árið 1960 og er teiknað af Sigvalda Thordarson arkitekt. Húsið hefur að sögn eiganda fengið gott viðhald m.a. er nýlega búið að skipta um þakjárn, glugga, múrviðgerðir og málað að utan.

SMELLIÐ HÉR TIL AÐ FÁ SENT SÖLUYFIRLIT STRAX

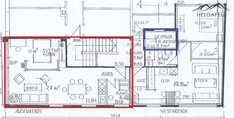
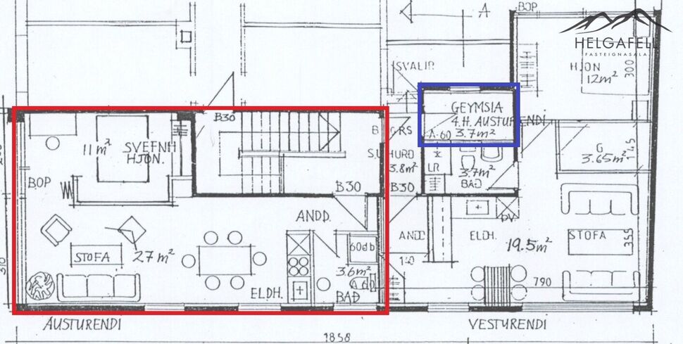
Íbúðin skiptist í forstofu, stofu / svefnherbergi, eldhús, baðherbergi (þvottaaðstaða) og geymslu (er staðsett á sömu hæð).
 
Nánari lýsing:
Forstofa: Komið er inn í forstofu með fatahengi, parketi á gólfi.
Stofan / svefnherbergi:  Rúmgóð, fataskápur, parket á gólfi. Búið er að sameina stofu og svefnherbergi í eitt rými. Eldhús og stofa eru í opnu rými með stórri gluggaröða í austur og gluggum í norður með fallegu útsýni yfir Esjuna.
Eldhús:  Eldhús nýrri hvítri innréttingu, bakaraofn, keramikhelluborð, parket á gólfi.
Baðherbergi: Inn af forstofu, með innréttingu, sturta, tengi fyrir þvottavél, flísar á gólfi og inn í sturtu. 
Geymsla: Rúmgóð geymsla sem staðsett er á hæð utan við íbúð.
Sameign: Á fyrstu hæð er sameiginleg hjóla- og vagnageymsla. Sameiginlegar svalir til suðurs eru frá stigagangi.
Lóð: Sameiginleg 232 fm eignarlóð.
Staðsetning: Smellið hér. 

Að sögn eiganda er búið að endurnýja eftirfarandi: 
** Nýlegt parket. 
* Múrviðgerðir og málað að utan 2023.
* Nýir gluggar á austurhlið 2023.  Hinir voru endurnýjaðir fyrir nokkrum árum. 
* Ný eldhúsinnrétting og tæki 2023.
* Nýtt járn á þakið 2022.

Frábærlega vel staðsett eign með fallegu útsýni í hjarta borgarinnar. Stutt er í marga bestu veitingastaðir borgarinnar, í verslanir (Bónus í næsta húsi), skóla og alla almenn þjónustu. Gegnt húsinu er Vitatorg bílastæðahús og möguleiki er fyrir íbúa að fá bílastæðakort/íbúakort Reykjavíkurborgar gegn lágri greiðslu. Stutt er fallegar göngu- og hjólaleiðir við sundin við Sæbraut. 

Nánari upplýsingar og bókun á skoðun veitir Hólmar Björn Sigþórsson, löggiltur fasteignasali og félagsmaður í Félagi fasteignasala í síma 893 3276 eða [email protected].

----------------------------------------------------------
Heimasíða Helgafells fasteignasölu
Facebook síða Helgafells

- Hafðu samband og við gerum söluverðmat á eign þinni, þér að kostnaðarlausu -

Gjöld sem kaupandi þarf að standa straum af vegna kaupa á fasteign:

1. Stimpilgjald af kaupsamningi - 0,8% af fasteignamati fyrir einstaklinga (0,4% fyrir fyrstu kaupendur) og 1,6% fyrir lögaðila.
2. Þinglýsingargjald af kaupsamningi, veðskuldabréfi, mögulegu veðleyfi o.fl. - 3.800 kr. af hverju skjali.
3. Lántökugjald lánastofnunar - almennt í kringum 50þ., oft lægra eða ekkert lántökugjald fyrir fyrstu kaup. Nánari upplýsingar á heimasíðum lánastofnana.
4. Þjónustusamningur milli kaupanda og fasteignasölu - Kr.  92.380,- m/vsk.

Helgafell fasteignasala bendir kaupendum á ríka skoðunarskyldu sem kveðið er á í lögum um fasteignakaup nr.40/2002. Skorað er á kaupendur að kynna sér vandlega ástand fasteigna og nýta til þess aðstoð sérfræðinga.  Sömuleiðis er bent á upplýsingaskyldu seljanda samanber 26.gr. Laga nr.40/2002 um fasteignakaup og 25.gr. laga nr.26/1994 um fjöleignarhús. Seljanda er bent á að kynna sér tilvitnaðar lagagreinar.

img
Hólmar Björn Sigþórsson
Lögg.fasteignasali innan félags fasteignasala
Helgafell fasteignasala ehf.
Stórhöfði 33, 2. hæð, 110 Reykjavík
Helgafell fasteignasala ehf.

Helgafell fasteignasala ehf.

Stórhöfði 33, 2. hæð, 110 Reykjavík
img

Hólmar Björn Sigþórsson

Stórhöfði 33, 2. hæð, 110 Reykjavík
Helgafell fasteignasala ehf.

Helgafell fasteignasala ehf.

Stórhöfði 33, 2. hæð, 110 Reykjavík

Hólmar Björn Sigþórsson

Stórhöfði 33, 2. hæð, 110 Reykjavík