Upplýsingar
Verðsaga
Byggt 1991
126,1 m²
4 herb.
1 baðherb.
3 svefnh.
Þvottahús
Bílskúr
Sérinngangur
Lýsing
Falleg 4ra herbergja íbúð á jarðhæð í tvíbýlishúsi með sérinngangi, yfirbyggðu palli og bílskúr.
* Birt stærð samkv HMS er 126,1m2
* 17,7m2 bílskúr
* Upphitað bílaplan
* Stutt í Húsaskóla og tvö leikskóla
Eignin er í fjölskylduvænu sérbýlishúsahverfi í Húsahverfinu í Grafarvogi. Falleg eign í góðu hverfi sem vert er að skoða.
Nánari upplýsingar
Inga Reynis lgf í síma 8201-1903, [email protected] og
Páll Pálsson Lgf. í síma 775-4000, [email protected]
www.eignavakt.is
www.verdmat.is
Góð ráð fyrir kaupendur
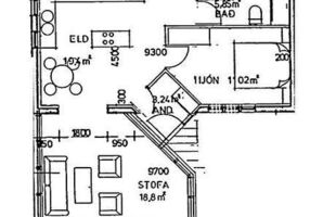
Eignin skiptist í forstofu, eldhús, borðstofu, stofu, 3 svefnherbergjum, sjónvarpsholi, baðherbergi og þvottahúsi/geymslu..
Forstofa með flísum á gólfi
Stofa og borðstofa er í sameiginlegu rými með eldhúsinu, björt og fallegt rými með útgengni í garðinn. Parket á gólfi.
Eldhús með góðri innréttingu og parket á gólfi.
Baðherbergi er með sérsmíðuðum innréttingum og hita í gólfi, horn baðkar/sturta/nudd. Flísar á gólfi.
Hjónasvefnherbergi er rúmgott með parket á gólfi.
Barnaherbergi er bjart með parket á gólfi.
Barnaherbergi rúmgott með parket á gólfi.
Þvottahús/geymsla er inn í íbúðinni.
Bílaplanið er hellulagt með snjó-bræðslu
Eignin er í góðu og fjölskylduvænu hverfi efst í Grafarvogi.
Leikskóli, grunnskóli, sundlaug og íþróttamiðstöð í göngufæri og stutt í alla aðra þjónustu.
Stutt er á golfvöll og fallegar gönguleiðir allt um kring.
Gjöld sem kaupandi þarf að standa straum af vegna kaupanna:
1. Stimpilgjald af kaupsamningi - 0.8% af heildarfasteignamati / 1.6% fyrir lögaðila. (0.4% við fyrstu kaup einstaklinga).
2. Þinglýsingagjald af kaupsamningi, veðskuldabréfi, veðleyfi o.fl.- kr. 3.800 af hverju skjali.
3. Lántökugjald lánastofnunar - samanber gjaldskrá viðkomandi lánastofnunar.
4. Umsýsluþóknun til fasteignasölu, sbr.kauptilboð.
Um skoðunarskyldu:
Í lögum um fasteignakaup nr. 40/2002 er kveðið á um ríka skoðunarskyldu kaupenda á fasteignum. Pálsson fasteignasala bendir væntanlegum kaupendum á að kynna sér vel ástand fasteigna við skoðun og fyrir tilboðsgerð og ef þurfa þykir að leita til sérfræðinga um nánari ástandsskoðun.
* Birt stærð samkv HMS er 126,1m2
* 17,7m2 bílskúr
* Upphitað bílaplan
* Stutt í Húsaskóla og tvö leikskóla
Eignin er í fjölskylduvænu sérbýlishúsahverfi í Húsahverfinu í Grafarvogi. Falleg eign í góðu hverfi sem vert er að skoða.
Nánari upplýsingar
Inga Reynis lgf í síma 8201-1903, [email protected] og
Páll Pálsson Lgf. í síma 775-4000, [email protected]
www.eignavakt.is
www.verdmat.is
Góð ráð fyrir kaupendur
Eignin skiptist í forstofu, eldhús, borðstofu, stofu, 3 svefnherbergjum, sjónvarpsholi, baðherbergi og þvottahúsi/geymslu..
Forstofa með flísum á gólfi
Stofa og borðstofa er í sameiginlegu rými með eldhúsinu, björt og fallegt rými með útgengni í garðinn. Parket á gólfi.
Eldhús með góðri innréttingu og parket á gólfi.
Baðherbergi er með sérsmíðuðum innréttingum og hita í gólfi, horn baðkar/sturta/nudd. Flísar á gólfi.
Hjónasvefnherbergi er rúmgott með parket á gólfi.
Barnaherbergi er bjart með parket á gólfi.
Barnaherbergi rúmgott með parket á gólfi.
Þvottahús/geymsla er inn í íbúðinni.
Bílaplanið er hellulagt með snjó-bræðslu
Eignin er í góðu og fjölskylduvænu hverfi efst í Grafarvogi.
Leikskóli, grunnskóli, sundlaug og íþróttamiðstöð í göngufæri og stutt í alla aðra þjónustu.
Stutt er á golfvöll og fallegar gönguleiðir allt um kring.
Gjöld sem kaupandi þarf að standa straum af vegna kaupanna:
1. Stimpilgjald af kaupsamningi - 0.8% af heildarfasteignamati / 1.6% fyrir lögaðila. (0.4% við fyrstu kaup einstaklinga).
2. Þinglýsingagjald af kaupsamningi, veðskuldabréfi, veðleyfi o.fl.- kr. 3.800 af hverju skjali.
3. Lántökugjald lánastofnunar - samanber gjaldskrá viðkomandi lánastofnunar.
4. Umsýsluþóknun til fasteignasölu, sbr.kauptilboð.
Um skoðunarskyldu:
Í lögum um fasteignakaup nr. 40/2002 er kveðið á um ríka skoðunarskyldu kaupenda á fasteignum. Pálsson fasteignasala bendir væntanlegum kaupendum á að kynna sér vel ástand fasteigna við skoðun og fyrir tilboðsgerð og ef þurfa þykir að leita til sérfræðinga um nánari ástandsskoðun.
Ár
Fasteignamat
Kaupverð
Stærð
Fermetraverð
27. nóv. 2015
30.800.000 kr.
34.900.000 kr.
126.1 m²
276.764 kr.
Byggt á upplýsingum úr Þjóðskrá Íslands frá 2006-2026