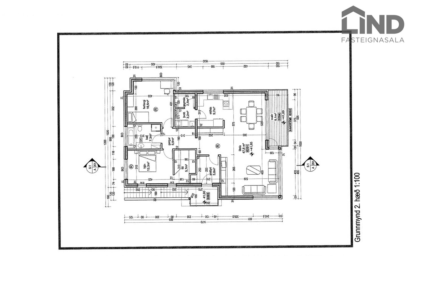
Bjarkarás, 210 Garðabær