Upplýsingar
Byggt 2024
104,9 m²
4 herb.
1 baðherb.
3 svefnh.
Lyfta
Laus strax
Lýsing
MÖGULEIKI Á HLUTDEILDARLÁNI FRÁ HMS - SJÁ NÁNAR HÉR.
BÓKIÐ SKOÐUN - SÝNUM SAMDÆGURS
Hlynur s.698-2603, Glódís s. 659-0510, Einar Örn s. 888-7979
Hraunhamar fasteignasala kynnir: 4ra herbergja íbúð á 1.hæð í nýju fjölbýli á frábærum stað í Hamranesinu í Hafnarfirði.
Eignin afhendist fullbúin án gólfefna nema flísar á votrýmum og með innréttingum frá Parka.
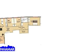
Íbúð 102 er 4ra herbergja 104.9 fm með 9,5 fm sérafnotaflöt.
Nánari lýsing:
Forstofa með fataskáp.
Opið rými, þar sem eldhús og stofa eru samliggjandi.
Eldhús með smekklegri innréttingu og vönduðum eldunartækjum.
Björt stofa þar sem útgengt er á verönd.
Svefnherbergi með fataskáp.
Hjónaherbergi með fataskápum.
Svefnherbergi með fataskáp.
Flísalagt baðherbergi með, innréttingu, upphengdu salerni, sturtu og þvottaaðstöðu.
Geymsla er innan íbúðar.
Fjarðarmót er byggingaraðili hússins og er reynslumikið og traust byggingarfyrirtæki sem hefur unnið við húsbyggingar í áratugi.
Bókið skoðun hjá sölumönnum Hraunhamars:
Hlynur Halldórsson, löggiltur fasteignasali, s. 698-2603, [email protected]
Glódís Helgadóttir, löggiltur fasteignasali s. 659-0510, [email protected]
Helgi Jón Harðarson, sölustj. s. 893-2233, [email protected]
Einar Örn Ágústsson, löggiltur fasteignasali, s. 888-7979, [email protected]
Gjöld sem kaupandi þarf að standa straum af vegna kaupanna:
1. Stimpilgjald af kaupsamningi, fyrstu kaup (0,4%), almenn kaup (0,8%), lögaðilar (1,6%) af heildarfasteignamati.
2. Þinglýsingargjald af kaupsamningi, veðskuldabréfi, mögulegu veðleyfi o.fl. – kr. 3,800 kr. af hverju skjali.
3. Lántökugjald lánastofnunar er skv. verðskrá viðkomandi lánastofnunar.
4. Umsýslugjald til fasteignasölu skv. þjónustusamningi
Hraunhamar er ein af elstu fasteignasölum landsins, stofnuð 1983.
Hraunhamar í fararbroddi í rúm 40 ár! – Hraunhamar.is
BÓKIÐ SKOÐUN - SÝNUM SAMDÆGURS
Hlynur s.698-2603, Glódís s. 659-0510, Einar Örn s. 888-7979
Hraunhamar fasteignasala kynnir: 4ra herbergja íbúð á 1.hæð í nýju fjölbýli á frábærum stað í Hamranesinu í Hafnarfirði.
Eignin afhendist fullbúin án gólfefna nema flísar á votrýmum og með innréttingum frá Parka.
Íbúð 102 er 4ra herbergja 104.9 fm með 9,5 fm sérafnotaflöt.
Nánari lýsing:
Forstofa með fataskáp.
Opið rými, þar sem eldhús og stofa eru samliggjandi.
Eldhús með smekklegri innréttingu og vönduðum eldunartækjum.
Björt stofa þar sem útgengt er á verönd.
Svefnherbergi með fataskáp.
Hjónaherbergi með fataskápum.
Svefnherbergi með fataskáp.
Flísalagt baðherbergi með, innréttingu, upphengdu salerni, sturtu og þvottaaðstöðu.
Geymsla er innan íbúðar.
Fjarðarmót er byggingaraðili hússins og er reynslumikið og traust byggingarfyrirtæki sem hefur unnið við húsbyggingar í áratugi.
Bókið skoðun hjá sölumönnum Hraunhamars:
Hlynur Halldórsson, löggiltur fasteignasali, s. 698-2603, [email protected]
Glódís Helgadóttir, löggiltur fasteignasali s. 659-0510, [email protected]
Helgi Jón Harðarson, sölustj. s. 893-2233, [email protected]
Einar Örn Ágústsson, löggiltur fasteignasali, s. 888-7979, [email protected]
Gjöld sem kaupandi þarf að standa straum af vegna kaupanna:
1. Stimpilgjald af kaupsamningi, fyrstu kaup (0,4%), almenn kaup (0,8%), lögaðilar (1,6%) af heildarfasteignamati.
2. Þinglýsingargjald af kaupsamningi, veðskuldabréfi, mögulegu veðleyfi o.fl. – kr. 3,800 kr. af hverju skjali.
3. Lántökugjald lánastofnunar er skv. verðskrá viðkomandi lánastofnunar.
4. Umsýslugjald til fasteignasölu skv. þjónustusamningi
Hraunhamar er ein af elstu fasteignasölum landsins, stofnuð 1983.
Hraunhamar í fararbroddi í rúm 40 ár! – Hraunhamar.is