Löggiltir fasteignasalar innan Félags fasteignasala:
Hannes Steindórsson
Bogi Molby Pétursson
Guðrún Antonsdóttir
Heimir Hallgrímsson
Hrafnkell P. H. Pálmason
Viðar Marinósson
Elías Haraldsson
Kristján Þórir Hauksson
Albert Bjarni Úlfarsson
Ragnar Þorsteinsson
Þórey Ólafsdóttir
Andri Freyr Halldórsson
Upplýsingar
Byggt 2025
132,1 m²
3 herb.
2 baðherb.
2 svefnh.
Þvottahús
Sameiginl. inngangur
Bílastæði
Lyfta
Opið hús: 15. febrúar 2026
kl. 15:00
til 16:00
Opið hús: Þorraholt 13D (116) , 210 Garðabær, Íbúð merkt: 01 01 16. Eignin verður sýnd sunnudaginn 15. febrúar 2026 milli kl. 15:00 og kl. 16:00.
Lýsing
--- Glæsileg 3ja - 4ra herbergja íbúð við Þorraholt 13D í Garðabæ með bílastæði í bílakjallara, 2 baðherbergi, þvottaherbergi og rúmgóðum sérafnotareiti til suðurs ---
Skoða verkefnið nánar á hlekk: www.thorraholtid.is Upplýsingar gefur: Heimir F. Hallgrímsson í síma: 849-0672 / [email protected]
LIND Fasteignasala og ÞG Verk kynna með stolti: Nýjar og glæsilegar íbúðir við Þorraholt 13D í Garðabæ. Um er að ræða fjölbreyttar 2ja - 3ja herbergja íbúðir í lyftuhúsi og fylgja bílastæði í bílakjallara íbúðum. Svalir eða sérafnotaflötur fylgir öllum íbúðum ásamt séreignageymslu á jarðhæð.
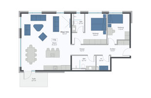
Íbúð 116: Er glæsileg 132,1 fermetra 3ja - 4ra herbergja íbúð á 1. hæð með sérafnotareit til suðurs og sérmerktu bílastæði í lokuðum bílakjallara. Góð geymsla fylgir íbúðinni sem er 16,0 fermetrar að stærð. Afhending er í mars-apríl 2026 með fyrirvara um að öryggisúttekt sé komin á húsið.
Nánari lýsing: Íbúðin skiptist í forstofu, eldhús í alrými með eyju sem er opið við stofu/borðstofu, 2 svefnherbergi (möguleiki á 3 svefnherberginu), 2 baðherbergi og þvottaherbergi. Útgengt á sérafnotareit frá stofu.
Húsið er steinsteypt og útveggir einangraðir og klæddir að utan sem tryggir lágmarks viðhald húsanna. Gluggar eru ál/tré kerfi og glerjaðir með K-gleri. Innveggir aðrir en steyptir eru úr hleðslusteini.
Allar nánari upplýsingar á heimasíðu verkefnisins: www.thorraholtid.is
Þorraholt stendur á einstökum stað í Garðabæ – í grónu og friðsælu umhverfi þar sem náttúra og þægindi borgarlífs fara saman. Hér eru fjölbreytt útivistarsvæði og fallegar gönguleiðir rétt við heimilið, auk þess sem stutt er í skóla, leikskóla, verslanir og alla helstu þjónustu. Garðabær er þekktur fyrir öflugt samfélag, góðar samgöngur og fjölbreytt tækifæri til íþrótta, menningar og útivistar – allt sem þarf fyrir virkt og innihaldsríkt daglegt líf.
Svæðið í kringum Þorraholt býður upp á jafnvægi milli rólegrar náttúru og nálægðar við líflega miðju höfuðborgarsvæðisins. Hér getur þú notið kyrrðarinnar heima fyrir og verið samt aðeins örfáum mínútum frá vinnu, verslun og afþreyingu. Það gerir Þorraholt að kjörnum stað fyrir þá sem vilja bæði lífsgæði og þægindi í senn.
ÞG Verk hafa yfir 25 ára reynslu á byggingarmarkaði. Fyrirtækið leggur áherslu á vandaðar íbúðir, góða þjónustu og skil íbúða á réttum tíma. Áreiðanleiki, gæði og notagildi eru einkunnarorð ÞG verks og fyrirtækið kappkostar að eiga gott samstarf við viðskiptavini sína.
Ef misræmi er á milli eignaskiptasamnings, söluyfirlits og/eða sölusíðu þá gilda þær upplýsingar sem koma fyrir í eignaskiptasamningi og samþykktum teikningum.
ALLAR NÁNARI UPPLÝSINGAR VEITIR:
Heimir F. Hallgrímsson í síma: 849-0672 / [email protected]
Innréttingar: Í eldhúsum og baðherbergjum eru Nobilia innréttingar frá GKS. Eldhúsinnréttingar eru mismunandi útfærðar eftir íbúðum. Lýsing undir efri skápum í eldhúsum. Speglaskápar eru á aðalbaðherbergjum.
Eldhústæki: Íbúðunum fylgja vönduð eldhústæki af gerðinni Siemens. Íbúðum er skilað með spanhelluborði, innbyggðum kæliskáp, innbyggðri uppþvottavél, blástursofni og viftu eða lofthengdum eyjuháfi þar sem það á við.
Hreinlætistæki: Salernisskál (Laufen) er vegghengd með innbyggðum vatnskassa. Sturtur eru með flísalögðum botni og hertu sturtugleri. Hreinlætistæki eru hitastýrð frá Damixa. Þvottahús eru ýmist innan baðherbergja eða í sér rými.
Seljandi áskilur sér allan rétt til að gera efnis-, tæknilegar- og útlits breytingar meðan á byggingaframkvæmd stendur.
Kaupandi greiðir skipulagsgjald sem nemur 0,3% af brunabótamati þegar það er lagt á.
Heimild seljanda til að breyta eignaskiptasamning sé þess þörf án þess þó að rýra eignarrétt kaupanda. Innréttingateikningar eru þær sem gilda ef misræmi er milli arkitektateikninga og innréttingateikninga og eru þær áritaðar og hluti samningsins.
Eignin afhendist skv meðfylgjandi skilalýsingu.
Skoða verkefnið nánar á hlekk: www.thorraholtid.is Upplýsingar gefur: Heimir F. Hallgrímsson í síma: 849-0672 / [email protected]
LIND Fasteignasala og ÞG Verk kynna með stolti: Nýjar og glæsilegar íbúðir við Þorraholt 13D í Garðabæ. Um er að ræða fjölbreyttar 2ja - 3ja herbergja íbúðir í lyftuhúsi og fylgja bílastæði í bílakjallara íbúðum. Svalir eða sérafnotaflötur fylgir öllum íbúðum ásamt séreignageymslu á jarðhæð.
Íbúð 116: Er glæsileg 132,1 fermetra 3ja - 4ra herbergja íbúð á 1. hæð með sérafnotareit til suðurs og sérmerktu bílastæði í lokuðum bílakjallara. Góð geymsla fylgir íbúðinni sem er 16,0 fermetrar að stærð. Afhending er í mars-apríl 2026 með fyrirvara um að öryggisúttekt sé komin á húsið.
Nánari lýsing: Íbúðin skiptist í forstofu, eldhús í alrými með eyju sem er opið við stofu/borðstofu, 2 svefnherbergi (möguleiki á 3 svefnherberginu), 2 baðherbergi og þvottaherbergi. Útgengt á sérafnotareit frá stofu.
Húsið er steinsteypt og útveggir einangraðir og klæddir að utan sem tryggir lágmarks viðhald húsanna. Gluggar eru ál/tré kerfi og glerjaðir með K-gleri. Innveggir aðrir en steyptir eru úr hleðslusteini.
Allar nánari upplýsingar á heimasíðu verkefnisins: www.thorraholtid.is
Þorraholt stendur á einstökum stað í Garðabæ – í grónu og friðsælu umhverfi þar sem náttúra og þægindi borgarlífs fara saman. Hér eru fjölbreytt útivistarsvæði og fallegar gönguleiðir rétt við heimilið, auk þess sem stutt er í skóla, leikskóla, verslanir og alla helstu þjónustu. Garðabær er þekktur fyrir öflugt samfélag, góðar samgöngur og fjölbreytt tækifæri til íþrótta, menningar og útivistar – allt sem þarf fyrir virkt og innihaldsríkt daglegt líf.
Svæðið í kringum Þorraholt býður upp á jafnvægi milli rólegrar náttúru og nálægðar við líflega miðju höfuðborgarsvæðisins. Hér getur þú notið kyrrðarinnar heima fyrir og verið samt aðeins örfáum mínútum frá vinnu, verslun og afþreyingu. Það gerir Þorraholt að kjörnum stað fyrir þá sem vilja bæði lífsgæði og þægindi í senn.
ÞG Verk hafa yfir 25 ára reynslu á byggingarmarkaði. Fyrirtækið leggur áherslu á vandaðar íbúðir, góða þjónustu og skil íbúða á réttum tíma. Áreiðanleiki, gæði og notagildi eru einkunnarorð ÞG verks og fyrirtækið kappkostar að eiga gott samstarf við viðskiptavini sína.
Ef misræmi er á milli eignaskiptasamnings, söluyfirlits og/eða sölusíðu þá gilda þær upplýsingar sem koma fyrir í eignaskiptasamningi og samþykktum teikningum.
ALLAR NÁNARI UPPLÝSINGAR VEITIR:
Heimir F. Hallgrímsson í síma: 849-0672 / [email protected]
Innréttingar: Í eldhúsum og baðherbergjum eru Nobilia innréttingar frá GKS. Eldhúsinnréttingar eru mismunandi útfærðar eftir íbúðum. Lýsing undir efri skápum í eldhúsum. Speglaskápar eru á aðalbaðherbergjum.
Eldhústæki: Íbúðunum fylgja vönduð eldhústæki af gerðinni Siemens. Íbúðum er skilað með spanhelluborði, innbyggðum kæliskáp, innbyggðri uppþvottavél, blástursofni og viftu eða lofthengdum eyjuháfi þar sem það á við.
Hreinlætistæki: Salernisskál (Laufen) er vegghengd með innbyggðum vatnskassa. Sturtur eru með flísalögðum botni og hertu sturtugleri. Hreinlætistæki eru hitastýrð frá Damixa. Þvottahús eru ýmist innan baðherbergja eða í sér rými.
Seljandi áskilur sér allan rétt til að gera efnis-, tæknilegar- og útlits breytingar meðan á byggingaframkvæmd stendur.
Kaupandi greiðir skipulagsgjald sem nemur 0,3% af brunabótamati þegar það er lagt á.
Heimild seljanda til að breyta eignaskiptasamning sé þess þörf án þess þó að rýra eignarrétt kaupanda. Innréttingateikningar eru þær sem gilda ef misræmi er milli arkitektateikninga og innréttingateikninga og eru þær áritaðar og hluti samningsins.
Eignin afhendist skv meðfylgjandi skilalýsingu.