Upplýsingar
Verðsaga
Byggt 2018
161,6 m²
5 herb.
2 baðherb.
4 svefnh.
Þvottahús
Bílskúr
Sérinngangur
Lýsing
Steindór Guðmundsson löggiltur fasteignasali 862 1996 og HÚS fasteignasala kynna í einkasölu parhúsið Stekkjarland 8, Selfossi. Vel staðsett með 4 svefnherbergjum, sjónvarpsholi og aukasalerni. Timburverönd með skjólveggjum.
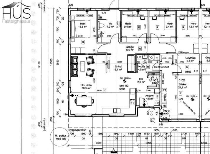
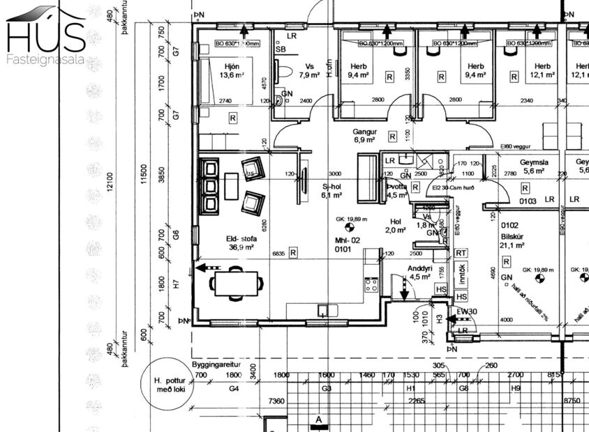
Húsið er alls 161,6 fm. Íbúðin er 131,8 fm og bílskúrinn er 29,9 fm. Húsið er byggt úr timbri árið 2018. Að utan er húsið klætt með lituðu bárujárni.og timbri í bland. Valmaþak með lituðu bárujárni. Ál/tré gluggar. Innfeld LED lýsing í loftum. Harðparket á gólfum nema votrýmum þar sem eru flísar.
Innra skipulag
Forstofa opin þar er fataskápur.
Flísalagt gestasalerni.
Eldhús með stórri hvítri innréttingu með eyju. Innbyggður ísskápur og uppþvottavél. Góður búrskápur. Eldhús og stofa er opið í eitt. Rennihurð út á verönd úr stofu. Sólbekkir eru í stofu.
Sjónvarpshol er fyrir miðju hússins.
Fjögur svefnherbergi öll með skápum.
Baðherbergi er flísalagt, þar er stór innrétting, stór gólfsturta með innfeldum tækjum. Útgengt er út á baklóð. Veggir eru flísalagðir í L í kringum sturtu. Gert er ráð fyrir baðkari.
Þvottahús er flísalagt, þar er innrétting. Innangengt er í bílskúr í gegnum þvottahús.
Bílskúrinn er flísalagður. Flekahurð með opnara. 3 fasa tengill. Grein fyrir útiljós og ídráttarrör fyrir útiljós á sérlekaliða ÍÍdráttarrör fyrir heitan pott. Lýsing er undir þakskyggni að framanverðu. Tenglar fyrir ljósaseríur ofan við glugga.
Nánari upplýsingar veitir Steindór Guðmundsson löggiltur fasteignasali s. 862 1996 [email protected]
,,Okkar fagmennska eru þínir hagsmunir"
Gjöld sem kaupandi þarf að standa straum að vegna kaupanna.
1. Stimpilgjöld af kaupsamningi - 0,8 % af heildarfasteignamati. (0,4% fyrstu kaup, 1,6% lögaðilar)
2. Þinglýsingargjald af kaupsamningi, veðskuldabréfi, mögulegu veðleyfi o.fl. kr. 3.800 af hverju skjali.
3. Lántökugjald lánastofnunnar, breytilegt. Nánari upplýsingar t.d. á heimasíðum lánastofnanna.
4. Umsýslugjald til fasteignasölu sbr. kauptilboð.
Gjöld sem kaupandi þarf að standa straum að vegna kaupanna.
Húsið er alls 161,6 fm. Íbúðin er 131,8 fm og bílskúrinn er 29,9 fm. Húsið er byggt úr timbri árið 2018. Að utan er húsið klætt með lituðu bárujárni.og timbri í bland. Valmaþak með lituðu bárujárni. Ál/tré gluggar. Innfeld LED lýsing í loftum. Harðparket á gólfum nema votrýmum þar sem eru flísar.
Innra skipulag
Forstofa opin þar er fataskápur.
Flísalagt gestasalerni.
Eldhús með stórri hvítri innréttingu með eyju. Innbyggður ísskápur og uppþvottavél. Góður búrskápur. Eldhús og stofa er opið í eitt. Rennihurð út á verönd úr stofu. Sólbekkir eru í stofu.
Sjónvarpshol er fyrir miðju hússins.
Fjögur svefnherbergi öll með skápum.
Baðherbergi er flísalagt, þar er stór innrétting, stór gólfsturta með innfeldum tækjum. Útgengt er út á baklóð. Veggir eru flísalagðir í L í kringum sturtu. Gert er ráð fyrir baðkari.
Þvottahús er flísalagt, þar er innrétting. Innangengt er í bílskúr í gegnum þvottahús.
Bílskúrinn er flísalagður. Flekahurð með opnara. 3 fasa tengill. Grein fyrir útiljós og ídráttarrör fyrir útiljós á sérlekaliða ÍÍdráttarrör fyrir heitan pott. Lýsing er undir þakskyggni að framanverðu. Tenglar fyrir ljósaseríur ofan við glugga.
Nánari upplýsingar veitir Steindór Guðmundsson löggiltur fasteignasali s. 862 1996 [email protected]
,,Okkar fagmennska eru þínir hagsmunir"
Gjöld sem kaupandi þarf að standa straum að vegna kaupanna.
1. Stimpilgjöld af kaupsamningi - 0,8 % af heildarfasteignamati. (0,4% fyrstu kaup, 1,6% lögaðilar)
2. Þinglýsingargjald af kaupsamningi, veðskuldabréfi, mögulegu veðleyfi o.fl. kr. 3.800 af hverju skjali.
3. Lántökugjald lánastofnunnar, breytilegt. Nánari upplýsingar t.d. á heimasíðum lánastofnanna.
4. Umsýslugjald til fasteignasölu sbr. kauptilboð.
Gjöld sem kaupandi þarf að standa straum að vegna kaupanna.
Ár
Fasteignamat
Kaupverð
Stærð
Fermetraverð
29. nóv. 2021
53.200.000 kr.
74.800.000 kr.
161.6 m²
462.871 kr.
16. mar. 2018
22.800.000 kr.
26.700.000 kr.
161.6 m²
165.223 kr.
Byggt á upplýsingum úr Þjóðskrá Íslands frá 2006-2026