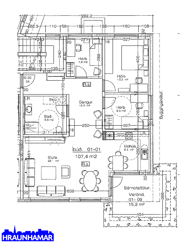
Brenniskarð, 221 Hafnarfjörður