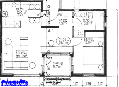
Hjallabraut, 220 Hafnarfjörður