Upplýsingar
Verðsaga
Byggt 1989
79,2 m²
3 herb.
1 baðherb.
2 svefnh.
Lyfta
Opið hús: 23. febrúar 2026
kl. 13:00
til 13:30
Opið hús: Hjallabraut 33, 220 Hafnarfjörður, Íbúð merkt: 303. Eignin verður sýnd mánudaginn 23. febrúar 2026 milli kl. 13:00 og kl. 13:30.
Lýsing
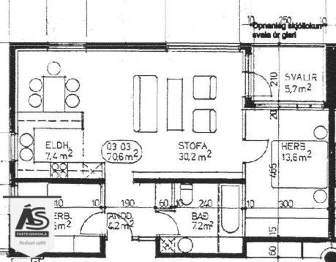
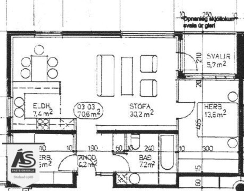
Falleg og björt 3ja herbergja íbúð á 3. hæð í húsi ætluðu 60 ára og eldri við Hjallabraut 33 í Hafnarfirði.
Eignin skiptist þannig að íbúðin sjálf er 79,2 fm og geymsla á jarðhæð 8,8 fm, samtals 88,0 fm skv. eignaskiptayfirlýsingu.
Eignin er laust við kaupsamning !
Nánari lýsing:
Forstofa með skáp.
Eldhús og stofa í björtu alrými með útg. á svalir.
Eldhúsið er með viðarinnréttingu, ofn, helluborð með háf yfir.
Tvö svefnherbergi eru í íbúðinni, skápar í báðum.
Baðherbergi með fllísum á gólfi og veggjum, walk-in sturta ,nýleg vaskinnrétting og einnig innrétting fyrir þvottavél með tauskúffum undir.
Innangengt er á baðherbergið úr alrými/holi og einnig beint úr stærra svefnherberginu.
Gólfefni íbúðarinnar er parket og flísar.
Húsið er klætt að utan að mestu og er því viðhaldslítið.
Miklar framkvæmdir hafa farið fram á húsinu á seinustu árum (2023-2024) þar sem skipt var um þakjárn, þakrennur endurnýjaðar, húsið múrviðgert og steyptir fletir málaðir. Einnig voru þeir gluggar sem þurfti endurnýjaðir.
Aðgangur að samkvæmissal, leikfimissal, handavinnuherbergi, snyrtistofu, gestaherbergi o.fl er í húsinu. Hægt er að kaupa hádegismat alla virka daga.
Frábær staðsetning þar sem stutt er í helstu þjónustu.
Nánari upplýsingar veita
- Svala Haraldsdóttir löggiltur fasteignasali í s. 820-9699 / [email protected]
- Arnór Daði Eiríksson löggiltur fasteignasali í s. 777-0939/ [email protected]
Ás fasteignasala er rótgróið fyrirtæki sem hefur veitt alla almenna þjónustu í fasteignaviðskiptum frá árinu 1988.
www.facebook.com/asfasteignasala
www.instagram.com/as_fasteignasala
www.as.is
Eignin skiptist þannig að íbúðin sjálf er 79,2 fm og geymsla á jarðhæð 8,8 fm, samtals 88,0 fm skv. eignaskiptayfirlýsingu.
Eignin er laust við kaupsamning !
Nánari lýsing:
Forstofa með skáp.
Eldhús og stofa í björtu alrými með útg. á svalir.
Eldhúsið er með viðarinnréttingu, ofn, helluborð með háf yfir.
Tvö svefnherbergi eru í íbúðinni, skápar í báðum.
Baðherbergi með fllísum á gólfi og veggjum, walk-in sturta ,nýleg vaskinnrétting og einnig innrétting fyrir þvottavél með tauskúffum undir.
Innangengt er á baðherbergið úr alrými/holi og einnig beint úr stærra svefnherberginu.
Gólfefni íbúðarinnar er parket og flísar.
Húsið er klætt að utan að mestu og er því viðhaldslítið.
Miklar framkvæmdir hafa farið fram á húsinu á seinustu árum (2023-2024) þar sem skipt var um þakjárn, þakrennur endurnýjaðar, húsið múrviðgert og steyptir fletir málaðir. Einnig voru þeir gluggar sem þurfti endurnýjaðir.
Aðgangur að samkvæmissal, leikfimissal, handavinnuherbergi, snyrtistofu, gestaherbergi o.fl er í húsinu. Hægt er að kaupa hádegismat alla virka daga.
Frábær staðsetning þar sem stutt er í helstu þjónustu.
Nánari upplýsingar veita
- Svala Haraldsdóttir löggiltur fasteignasali í s. 820-9699 / [email protected]
- Arnór Daði Eiríksson löggiltur fasteignasali í s. 777-0939/ [email protected]
Ás fasteignasala er rótgróið fyrirtæki sem hefur veitt alla almenna þjónustu í fasteignaviðskiptum frá árinu 1988.
www.facebook.com/asfasteignasala
www.instagram.com/as_fasteignasala
www.as.is
Ár
Fasteignamat
Kaupverð
Stærð
Fermetraverð
23. nóv. 2022
38.450.000 kr.
55.000.000 kr.
79.2 m²
694.444 kr.
Byggt á upplýsingum úr Þjóðskrá Íslands frá 2006-2026