Löggiltir fasteignasalar innan Félags fasteignasala:
Hannes Steindórsson
Bogi Molby Pétursson
Guðrún Antonsdóttir
Heimir Hallgrímsson
Hrafnkell P. H. Pálmason
Viðar Marinósson
Elías Haraldsson
Kristján Þórir Hauksson
Albert Bjarni Úlfarsson
Ragnar Þorsteinsson
Þórey Ólafsdóttir
Andri Freyr Halldórsson
Upplýsingar
Byggt 2024
96 m²
2 herb.
1 baðherb.
2 svefnh.
Sameiginl. inngangur
Bílastæði
Lyfta
Laus strax
Lýsing
Nýtt á skrá! *** Möguleiki á 20% aðstoð fyrir kaupendur með UTS20. Sjóðnum ***
UTS20. Sjóður hjálpar þér að komast inn á fasteignamarkaðinn með því að fjárfesta fyrir allt að 20% af kaupverði eignar. Þú þarft einungis að eiga 10% í eigið fé til þess að geta keypt þér eign og að fá 70% lán hjá lánastofnun.
Nánari upplýsingar um UTS20. Sjóðinn hér.
Lind Fasteignasala og Helga Pálsdóttir kynna nýjar og glæsilegar 2–4 herbergja íbúðir í vönduðu og fallegu fjölbýli við Baughamar 3, 221 Hafnarfirði. Íbúðirnar afhendast fullbúnar með gólfefnum, innbyggðum ísskáp, frysti og uppþvottavél. Möguleiki er á að kaupa sérmerkt bílastæði í bílageymslu.
Byggingaraðili: Skuggi 6 ehf.
Aðalhönnuður hússins: Teikna-teiknistofa arkitekta ehf.
Allar nánari upplýsingar á heimasíðu verkefnisins: www.baughamar3.is
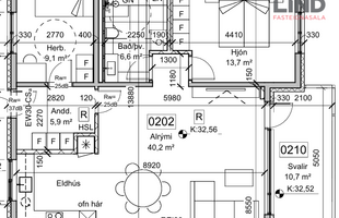
Íbúð 202: 96 fm, þriggja herbergja íbúð á 2. hæð.
Nánari lýsing:
Anddyri: Parket á gólfi, fataskápur.
Eldhús: Parket á gólfi, gott skápa- og borðpláss, innréttingin er frá þýska framleiðandanum Nobilia, með steinplötu á borðum. Eldhúsinnrétting er fullbúin með blöndunartækjum og eldhústækjum þ.e. helluborði, viftu í innréttingu eða eyjuháfi yfir helluborði þar sem það á við, innbyggðum ísskáp, innbyggðri
uppþvottavél og ofni.
Alrými: Parket á gólfi, útgengt út á svalir.
Hjónaherbergi: 13,7 fm, parket á gólfi, fataskápur.
Herbergi: 9,1 fm, parket á gólfi, fataskápur.
Baðherbergi: Baðherbergisgólf og sturturými eru flísalögð. Baðinnrétting er með neðri skáp með steinplötu við handlaugar, hvítri handlaug og efri skápum með spegli á hurðum og ljósi. Salerni er vegghengt með innbyggðum vatnskassa. Blöndunartæki á baði
eru hitastýrð blöndunartæki og sturtustöng með utanáliggjandi blöndunartækjum. Innrétting undir þvottavél og þurrkara.
Svalir: 10,7 fm.
Geymsla: 8,3 fm í sameign.
Hjóla- og vagnageymsla: Í sameign.
Frekari upplýsingar í skilalýsingu hjá fasteignasala.
Kaupandi greiðir 0,3% af væntanlegu brunabótamati þegar því hefur verið úthlutað eigninni.
Nánari upplýsingar veita:
Auður Magnúsdóttir Löggiltur fasteignasali, í síma 8482666, tölvupóstur [email protected].
Helga Pálsdóttir Löggiltur fasteignasali, í síma 8222123, tölvupóstur [email protected].
UTS20. Sjóður hjálpar þér að komast inn á fasteignamarkaðinn með því að fjárfesta fyrir allt að 20% af kaupverði eignar. Þú þarft einungis að eiga 10% í eigið fé til þess að geta keypt þér eign og að fá 70% lán hjá lánastofnun.
Nánari upplýsingar um UTS20. Sjóðinn hér.
Lind Fasteignasala og Helga Pálsdóttir kynna nýjar og glæsilegar 2–4 herbergja íbúðir í vönduðu og fallegu fjölbýli við Baughamar 3, 221 Hafnarfirði. Íbúðirnar afhendast fullbúnar með gólfefnum, innbyggðum ísskáp, frysti og uppþvottavél. Möguleiki er á að kaupa sérmerkt bílastæði í bílageymslu.
Byggingaraðili: Skuggi 6 ehf.
Aðalhönnuður hússins: Teikna-teiknistofa arkitekta ehf.
Allar nánari upplýsingar á heimasíðu verkefnisins: www.baughamar3.is
Íbúð 202: 96 fm, þriggja herbergja íbúð á 2. hæð.
Nánari lýsing:
Anddyri: Parket á gólfi, fataskápur.
Eldhús: Parket á gólfi, gott skápa- og borðpláss, innréttingin er frá þýska framleiðandanum Nobilia, með steinplötu á borðum. Eldhúsinnrétting er fullbúin með blöndunartækjum og eldhústækjum þ.e. helluborði, viftu í innréttingu eða eyjuháfi yfir helluborði þar sem það á við, innbyggðum ísskáp, innbyggðri
uppþvottavél og ofni.
Alrými: Parket á gólfi, útgengt út á svalir.
Hjónaherbergi: 13,7 fm, parket á gólfi, fataskápur.
Herbergi: 9,1 fm, parket á gólfi, fataskápur.
Baðherbergi: Baðherbergisgólf og sturturými eru flísalögð. Baðinnrétting er með neðri skáp með steinplötu við handlaugar, hvítri handlaug og efri skápum með spegli á hurðum og ljósi. Salerni er vegghengt með innbyggðum vatnskassa. Blöndunartæki á baði
eru hitastýrð blöndunartæki og sturtustöng með utanáliggjandi blöndunartækjum. Innrétting undir þvottavél og þurrkara.
Svalir: 10,7 fm.
Geymsla: 8,3 fm í sameign.
Hjóla- og vagnageymsla: Í sameign.
Frekari upplýsingar í skilalýsingu hjá fasteignasala.
Kaupandi greiðir 0,3% af væntanlegu brunabótamati þegar því hefur verið úthlutað eigninni.
Nánari upplýsingar veita:
Auður Magnúsdóttir Löggiltur fasteignasali, í síma 8482666, tölvupóstur [email protected].
Helga Pálsdóttir Löggiltur fasteignasali, í síma 8222123, tölvupóstur [email protected].