Löggiltir fasteignasalar innan Félags fasteignasala:
Hannes Steindórsson
Bogi Molby Pétursson
Guðrún Antonsdóttir
Heimir Hallgrímsson
Hrafnkell P. H. Pálmason
Viðar Marinósson
Elías Haraldsson
Kristján Þórir Hauksson
Albert Bjarni Úlfarsson
Ragnar Þorsteinsson
Þórey Ólafsdóttir
Andri Freyr Halldórsson
Upplýsingar
Verðsaga
Byggt 2002
134,8 m²
4 herb.
1 baðherb.
3 svefnh.
Þvottahús
Sameiginl. inngangur
Bílastæði
Lyfta
Lýsing
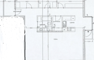
LIND fasteignasala og Helga Pálsdóttir löggiltur fasteignasali kynnir rúmgóða fjögurra herbergja endaíbúð á 2. hæð við Naustabryggju 4 í Reykjavík. Eignin er skráð 134,8 m2 þar af 6,5 m2 geymsla í kjallara. Tvennar svalir.
Stæði í bílakjallara fylgir íbúðinni. Búið að leggja grunnrafmagn fyrir rafmagnsbíla í bílakjallaranum. Lyfta er í húsinu sem liggur niðri bílakjallara. Þetta er stór og góð íbúð á góðu verði sem er vert að skoða, mikið endurnýjað, öll gólfefni, eldhús tæki, baðtæki o.fl
Nánari lýsing:
Forstofa: með skóskáp og flísum á gólfi, ásamt fatasnögum.
Svefnherbergi I: rúmgott með fataskápum og ullarteppi á gólfi.
Svefnherbergi II: með fataskápum og ullarteppi á gólfi.
Svefnherbergi III: með fataskápum og ullarteppi á gólfi.
Eldhús: með svartbæsuð innréttingu, innbyggð uppþvottavél, innbyggt kæliskápur og frystiskápur, span helluborð, innbyggt veggofn og örbylgjuofn, flísar á gólfi og útgengi á svalir.
Stofa / borðstofa: rúmgóðar í opnu alrými með parketi á gólfi og útgengi á svalir.
Baðherbergi: með innréttingu, stórri sturtu og flísum á gólfi og veggjum, innréttingu fyrir þvottavél og þurrkara innbyggt.
Geymsla: 6,9 fm sérgeymsla í kjallara.
Bílastæði: sérstæði í bílakjallara. Mögulegt að kaupa / leigja hleðslustöð og vera með rafmagnsbíl.
Hjóla- og vagnageymsla: Sameiginleg í kjallara.
Fallegur sameiginlegur garður og einstaklega velumgengin og snyrtileg sameign. Hér er um að ræða virkilega góða eign í ört vaxandi og spennandi íbúðahverfi í Reykjavík þaðan sem örstutt er í allar áttir. Húsið Básbryggja 1-3, Naustabryggja 2 og Naustabryggja 4 mynda saman eitt hús. Húsið er steinsteypt fjölbýlishús einangrað og klætt að utan með stáli.
Hér er um að ræða virkilega rúmgóða og smart íbúð i glæsilegu fjölbýlishúsi í stórfenglegu umhverfi í næsta nágrenni við hafið og náttúruna og skemmtilegar göngu- og hjólaleiðir. Sjón er sögu ríkari!
Gólfefni
Forstofa> parket flísar (Parka)
Svefnherberi> ullarteppi ásamt mjúku undirlagi (Álfaborg)
Stofa/Gangur> harðparket fiskibeina (Húsasmiðjan)
Baðherbergi> Vínilflísar á gólf (Parki) veggflísar (Parki)
Helstu endurbætur
Barnaherbergi, skipulagi breytt, fatarskápar settir vegg í vegg, innbyggðir fataskápar 100+50
Hjónaherbergi, skipulagi breytt, fataskápar settir inn í vegg, 100+50+100
Baðherbergi, sameinað þvottahúsi, sett walk inn stór sturta, innbyggt klóset og ný innrétting, vaskur og blöndunartæki frá Tengi
Eldús, allt nýtt, innrétting frá Ikea, tæki frá Heimilistækjum (kæliskápur, frystiskápur innbyggt) Samsung ofna og örbylgju ofn innbyggt) 90cm span helluborð, vegghengdur háfur, uppþvottavél innbygð
Rafmagns rofar og tenglar nýtt frá Rafport ( Busch Jaeger) svar matt
Innihurðir hvítlakkaðar mattar, nýjir hurðahúnar (Gun metal)
Svalir, gólfklæðningar plast
BÍLSKÝLI: búð að tengja fyrir rafhleðslustöð, innstastæði næst stigagangi
SAMEIGN: hjólageymsla, mjög snyrtileg, lyfta, nýlegt dyrasíma kerfi
Það sem fylgir:
Kæliskápur innbyggður, frystiskápur innbyggður, uppþvottavél innbyggð, veggfestir skápar í stofa, skóskápur forstofa, spegill forstofa,
Allar upplýsingar um eignina veitir Helga Pálsdóttir fasteignasali í síma 822 2123 eða [email protected]
Stæði í bílakjallara fylgir íbúðinni. Búið að leggja grunnrafmagn fyrir rafmagnsbíla í bílakjallaranum. Lyfta er í húsinu sem liggur niðri bílakjallara. Þetta er stór og góð íbúð á góðu verði sem er vert að skoða, mikið endurnýjað, öll gólfefni, eldhús tæki, baðtæki o.fl
Nánari lýsing:
Forstofa: með skóskáp og flísum á gólfi, ásamt fatasnögum.
Svefnherbergi I: rúmgott með fataskápum og ullarteppi á gólfi.
Svefnherbergi II: með fataskápum og ullarteppi á gólfi.
Svefnherbergi III: með fataskápum og ullarteppi á gólfi.
Eldhús: með svartbæsuð innréttingu, innbyggð uppþvottavél, innbyggt kæliskápur og frystiskápur, span helluborð, innbyggt veggofn og örbylgjuofn, flísar á gólfi og útgengi á svalir.
Stofa / borðstofa: rúmgóðar í opnu alrými með parketi á gólfi og útgengi á svalir.
Baðherbergi: með innréttingu, stórri sturtu og flísum á gólfi og veggjum, innréttingu fyrir þvottavél og þurrkara innbyggt.
Geymsla: 6,9 fm sérgeymsla í kjallara.
Bílastæði: sérstæði í bílakjallara. Mögulegt að kaupa / leigja hleðslustöð og vera með rafmagnsbíl.
Hjóla- og vagnageymsla: Sameiginleg í kjallara.
Fallegur sameiginlegur garður og einstaklega velumgengin og snyrtileg sameign. Hér er um að ræða virkilega góða eign í ört vaxandi og spennandi íbúðahverfi í Reykjavík þaðan sem örstutt er í allar áttir. Húsið Básbryggja 1-3, Naustabryggja 2 og Naustabryggja 4 mynda saman eitt hús. Húsið er steinsteypt fjölbýlishús einangrað og klætt að utan með stáli.
Hér er um að ræða virkilega rúmgóða og smart íbúð i glæsilegu fjölbýlishúsi í stórfenglegu umhverfi í næsta nágrenni við hafið og náttúruna og skemmtilegar göngu- og hjólaleiðir. Sjón er sögu ríkari!
Gólfefni
Forstofa> parket flísar (Parka)
Svefnherberi> ullarteppi ásamt mjúku undirlagi (Álfaborg)
Stofa/Gangur> harðparket fiskibeina (Húsasmiðjan)
Baðherbergi> Vínilflísar á gólf (Parki) veggflísar (Parki)
Helstu endurbætur
Barnaherbergi, skipulagi breytt, fatarskápar settir vegg í vegg, innbyggðir fataskápar 100+50
Hjónaherbergi, skipulagi breytt, fataskápar settir inn í vegg, 100+50+100
Baðherbergi, sameinað þvottahúsi, sett walk inn stór sturta, innbyggt klóset og ný innrétting, vaskur og blöndunartæki frá Tengi
Eldús, allt nýtt, innrétting frá Ikea, tæki frá Heimilistækjum (kæliskápur, frystiskápur innbyggt) Samsung ofna og örbylgju ofn innbyggt) 90cm span helluborð, vegghengdur háfur, uppþvottavél innbygð
Rafmagns rofar og tenglar nýtt frá Rafport ( Busch Jaeger) svar matt
Innihurðir hvítlakkaðar mattar, nýjir hurðahúnar (Gun metal)
Svalir, gólfklæðningar plast
BÍLSKÝLI: búð að tengja fyrir rafhleðslustöð, innstastæði næst stigagangi
SAMEIGN: hjólageymsla, mjög snyrtileg, lyfta, nýlegt dyrasíma kerfi
Það sem fylgir:
Kæliskápur innbyggður, frystiskápur innbyggður, uppþvottavél innbyggð, veggfestir skápar í stofa, skóskápur forstofa, spegill forstofa,
Allar upplýsingar um eignina veitir Helga Pálsdóttir fasteignasali í síma 822 2123 eða [email protected]
Ár
Fasteignamat
Kaupverð
Stærð
Fermetraverð
16. feb. 2024
83.200.000 kr.
78.000.000 kr.
134.8 m²
578.635 kr.
28. jún. 2006
24.245.000 kr.
30.700.000 kr.
134.8 m²
227.745 kr.
Byggt á upplýsingum úr Þjóðskrá Íslands frá 2006-2026