Upplýsingar
Verðsaga
Byggt 1943
152,3 m²
3 herb.
2 baðherb.
1 svefnh.
Þvottahús
Bílskúr
Lýsing
Valný fasteignasala og Valgeir Leifur löggiltur fasteignasali kynna:
Laugarnesvegur 63, 105 Reykjavík
Íbúð á tveimur hæðum í tvíbýli með rúmgóðum bílskúr á vinsælum stað. Þrjú bílastæði tilheyra eigninni og fjórða er sameign. Um er að ræða rúmgóð stofa, eldhús, svefnherbergi, tvö baðherbergi og þvottahús. Möguleiki er að loka stigagati og gera auka íbúð á neðri hæð. Þar var áður eldhús í svefnherberginu.
Samkvæmt fasteignaskrá HMS er eignin skráð samtals 152.3 m², þar af er íbúðarrými 103,3 m² og bílskúr 49,0 m².
Eign merkt 01-01, fastanúmer 201-7229 ásamt öllu því sem eigninni fylgir, þar með talið tilheyrandi lóðar og sameignarréttindi.
Lýsing og skipulag efri hæðar:
Forstofa með plastparketi á gólfi.
Eldhús með hvítri innréttingu með ágætu skápaplássi, bakaraofni með helluborði og háfi. Plastparket á gólfi.
Stofa og borðstofa með viðarparketi á gólfi. Rúmgott rými með möguleika að bæta við svefnherbergi.
Baðherbergi sett upp árið 2014 með sturtuklefa og salerni. Dúkur á gólfi.
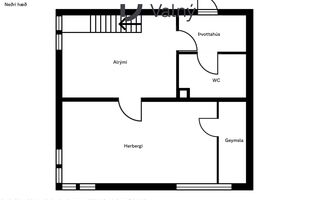
Lýsing og skipulag neðri hæðar:
Þvottahús er með sér inngang.
Svefnherbergi er rúmgott. Innaf af svefnherbergi er geymsla. Gólfhiti í herbergi og án gólfefna.
Alrými sem einnig er hægt að nýta sem svefnherbergi. Gólfhiti í alrými og án gólfefna.
Baðherbergi er hálf klárað og þarfnast endurbóta. Salerni, sturta og vaskur. Vantar gólfefni.
Bílskúr er 49 m² að stærð og hefur verið innréttaður sem vinnustofa/hljóðver með sér geymslu, baðherbergi og eldhúskrók. Möguleiki að breyta í íbúð.
Framkvæmdir að sögn seljanda:
2023: Gólfhiti settur í neðri hæð fyrir utan baðherbergi og þvottahús.
2023: Ný hitagrind, inntak fyrir hitaveitu og neysluvatn endurnýjað.
2022: Dren og skólplagnir endurnýjaðar.
2021: Skúr innréttaður sem vinnustofa/hljóðver með sér geymslu, baðherbergi og eldhúskrók.
2021: Nýtt gler í alla glugga á efri hæð, fyrir utan einn.
2021: Nýtt viðarparket lagt í stofu á efri hæð.
2020: Opnað á milli hæða.
2019: Settur nýr þrýstijafnari. Skipt var um borðplötu, eldhúsvask og blöndunartæki í eldhúsi.
2014: Hiti og rafmagn leitt út í bílskúr. Einnig voru lagnir endurnýjaðar að hluta. Nýtt rafmagn dregið á efri og neðri hæð ásamt nýrri rafmagnstöflu á efri hæð. Ný hitagrind var einnig sett upp og ný einangrun sett í loft á neðri hæð (öll rými nema þvottahús og baðherbergi).
Allar nánari upplýsingar veitir:
Valgeir Leifur / Löggiltur fasteignasali / 780-2575 / [email protected]
Ertu að leita að nýbyggingum? Skoðaðu úrvalið hjá Valný – smelltu hér.
Ertu að hugsa um að selja? Smelltu hér og fáðu frítt verðmat.
Ekki missa af draumaeigninni – fylgstu með okkur á Instagram og Facebook
Lestu reynslusögur frá ánægðum viðskiptavinum okkar.
- Fasteignasalan sem opnar dyrnar að þinni eign.
Valný fasteignasala | www.valny.is | Reykjanesvegi 40, 260 Reykjanesbær | Opið alla virka daga frá 9:00-16:00
Laugarnesvegur 63, 105 Reykjavík
Íbúð á tveimur hæðum í tvíbýli með rúmgóðum bílskúr á vinsælum stað. Þrjú bílastæði tilheyra eigninni og fjórða er sameign. Um er að ræða rúmgóð stofa, eldhús, svefnherbergi, tvö baðherbergi og þvottahús. Möguleiki er að loka stigagati og gera auka íbúð á neðri hæð. Þar var áður eldhús í svefnherberginu.
Samkvæmt fasteignaskrá HMS er eignin skráð samtals 152.3 m², þar af er íbúðarrými 103,3 m² og bílskúr 49,0 m².
Eign merkt 01-01, fastanúmer 201-7229 ásamt öllu því sem eigninni fylgir, þar með talið tilheyrandi lóðar og sameignarréttindi.
Lýsing og skipulag efri hæðar:
Forstofa með plastparketi á gólfi.
Eldhús með hvítri innréttingu með ágætu skápaplássi, bakaraofni með helluborði og háfi. Plastparket á gólfi.
Stofa og borðstofa með viðarparketi á gólfi. Rúmgott rými með möguleika að bæta við svefnherbergi.
Baðherbergi sett upp árið 2014 með sturtuklefa og salerni. Dúkur á gólfi.
Lýsing og skipulag neðri hæðar:
Þvottahús er með sér inngang.
Svefnherbergi er rúmgott. Innaf af svefnherbergi er geymsla. Gólfhiti í herbergi og án gólfefna.
Alrými sem einnig er hægt að nýta sem svefnherbergi. Gólfhiti í alrými og án gólfefna.
Baðherbergi er hálf klárað og þarfnast endurbóta. Salerni, sturta og vaskur. Vantar gólfefni.
Bílskúr er 49 m² að stærð og hefur verið innréttaður sem vinnustofa/hljóðver með sér geymslu, baðherbergi og eldhúskrók. Möguleiki að breyta í íbúð.
Framkvæmdir að sögn seljanda:
2023: Gólfhiti settur í neðri hæð fyrir utan baðherbergi og þvottahús.
2023: Ný hitagrind, inntak fyrir hitaveitu og neysluvatn endurnýjað.
2022: Dren og skólplagnir endurnýjaðar.
2021: Skúr innréttaður sem vinnustofa/hljóðver með sér geymslu, baðherbergi og eldhúskrók.
2021: Nýtt gler í alla glugga á efri hæð, fyrir utan einn.
2021: Nýtt viðarparket lagt í stofu á efri hæð.
2020: Opnað á milli hæða.
2019: Settur nýr þrýstijafnari. Skipt var um borðplötu, eldhúsvask og blöndunartæki í eldhúsi.
2014: Hiti og rafmagn leitt út í bílskúr. Einnig voru lagnir endurnýjaðar að hluta. Nýtt rafmagn dregið á efri og neðri hæð ásamt nýrri rafmagnstöflu á efri hæð. Ný hitagrind var einnig sett upp og ný einangrun sett í loft á neðri hæð (öll rými nema þvottahús og baðherbergi).
Allar nánari upplýsingar veitir:
Valgeir Leifur / Löggiltur fasteignasali / 780-2575 / [email protected]
Ertu að leita að nýbyggingum? Skoðaðu úrvalið hjá Valný – smelltu hér.
Ertu að hugsa um að selja? Smelltu hér og fáðu frítt verðmat.
Ekki missa af draumaeigninni – fylgstu með okkur á Instagram og Facebook
Lestu reynslusögur frá ánægðum viðskiptavinum okkar.
- Fasteignasalan sem opnar dyrnar að þinni eign.
Valný fasteignasala | www.valny.is | Reykjanesvegi 40, 260 Reykjanesbær | Opið alla virka daga frá 9:00-16:00
Ár
Fasteignamat
Kaupverð
Stærð
Fermetraverð
6. okt. 2020
52.950.000 kr.
48.700.000 kr.
152.3 m²
319.764 kr.
Byggt á upplýsingum úr Þjóðskrá Íslands frá 2006-2026