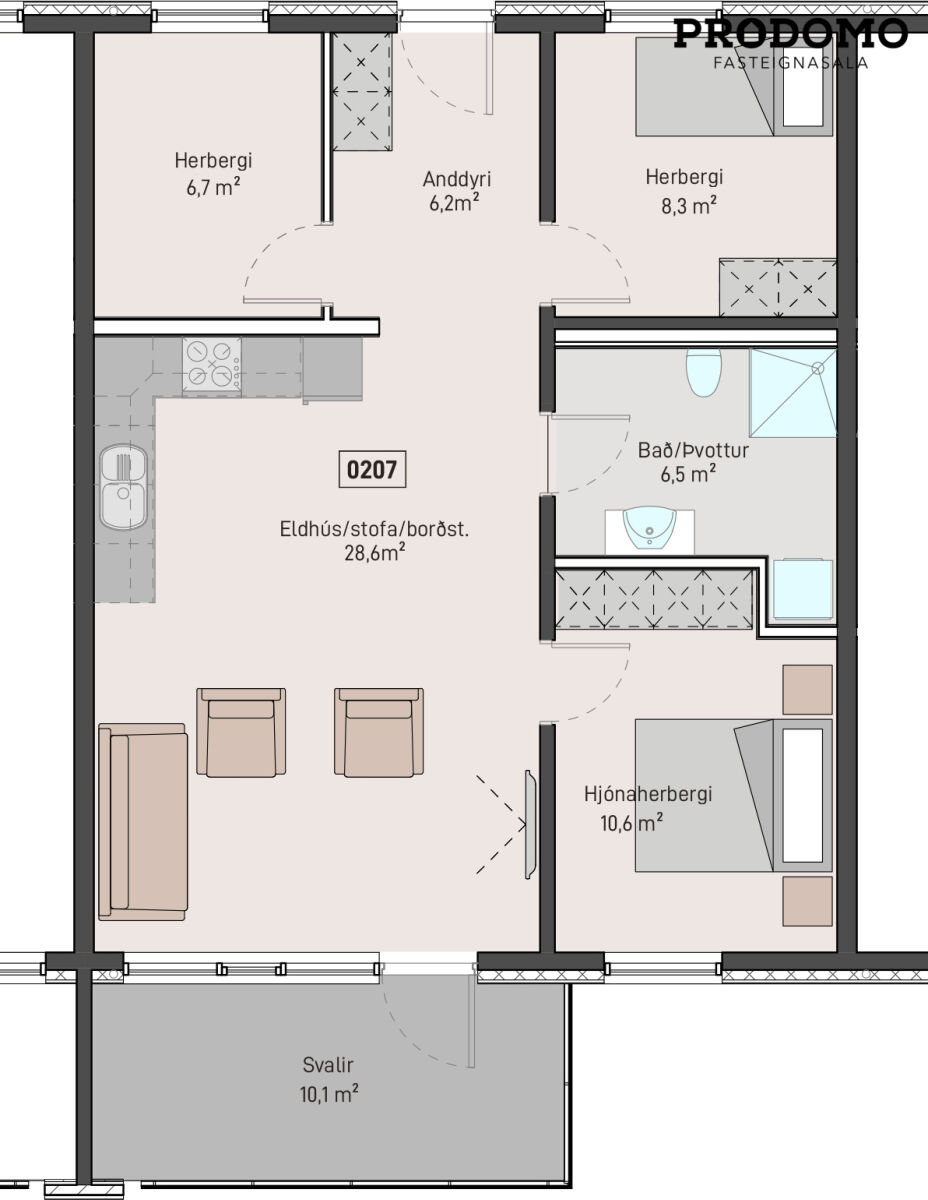
Tjarnabraut, 260 Reykjanesbær