Löggiltir fasteignasalar innan Félags fasteignasala:
Eiríkur Svanur Sigfússon
Aron Freyr Eiríksson
Melkorka Guðmundsdóttir
Kristófer Fannar Guðmundsson
Svala Haraldsdóttir
Stefán Rafn Sigurmannsson
Arnór Daði Eiríksson
Vista
svg

19

svg

19  Skoðendur

svg

Skráð  17. feb. 2026

fjölbýlishús

Lautargata 5 íb 202

210 Garðabær

85.900.000 kr.

976.136 þ.kr./m2
Fasteignanúmer

F2534589

Fasteignamat

35.050.000 kr.

Brunabótamat

0 kr.

Áhvílandi

0 kr.

Arion banki – Reikna lán
Upplýsingar
svg
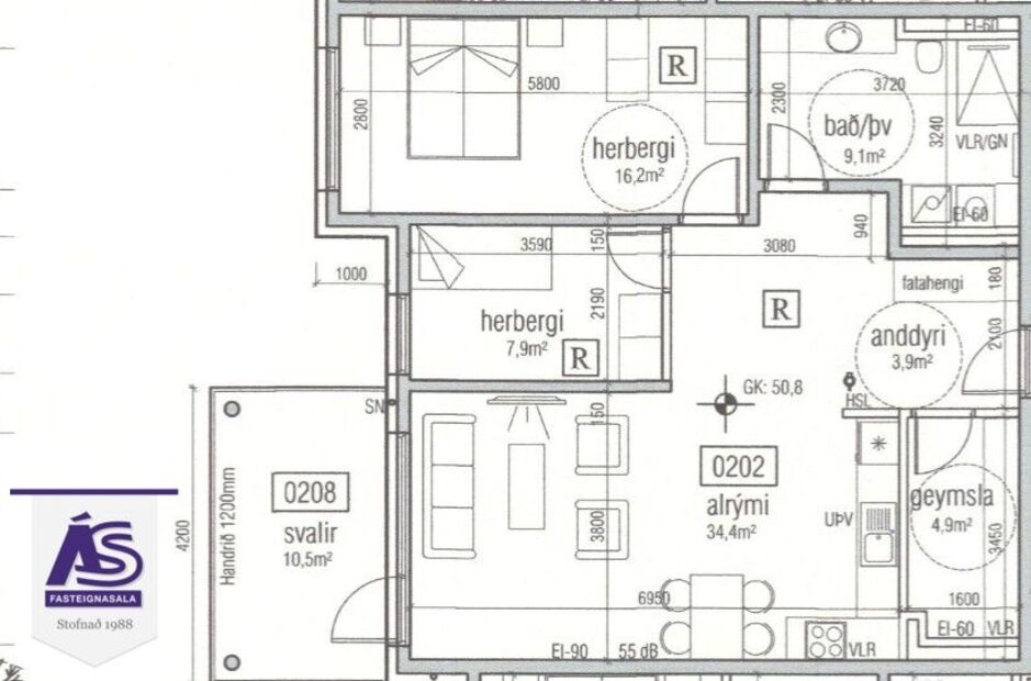
88 m²
svg
3 herb.
svg
1 baðherb.
svg
2 svefnh.
svg
Lyfta
Opið hús: 19. febrúar 2026 kl. 16:30 til 17:00

Opið hús fimmtudaginn 19. feb. milli kl. 16:30 & 17:00 við Lautargötu 5 í Urriðaholti, Garðabæ - Verið velkomin!

Lýsing

Nýjar og glæsilegar íbúðir í 10 íbúða lyftufjölbýli á útsýnislóð við Lautargötu 5 í Urriðaholti, 210 Garðabæ.
Byggingin er einstaklega vel staðsett í enda á botnlangagötu með útsýni yfir friðað svæði, Vífilstaðarhraun.

Stærð:
88,0 - 139,7 fm.
Herbergi: 3ja - 4ra
Verð: 81,9 - 142,9 mkr.

Smelltu hér til að skoða sölusíðu verkefnisins.

Smelltu hér til að skoða skilalýsingu verktakans.


- Húsið skilast fullbúið að innan sem og að utan.
- Loftskiptakerfi er í öllum íbúðum.
- Íbúðirnar eru afhentar með flísum á gólfum baðherbergja og þvottahúsa (þar sem við á). Önnur gólf eru afhent með (Light Cracked Oak) 8 mm harðparketi og undirleggi af viðurkenndri gerð.
- Innréttingar eru frá HTH.
- Borðplötur í eldhúsi og baðherbergi eru úr kvarts stein (Calacatta Gold) frá HQ steinsmíði.
- Raftæki í eldhúsi eru frá Ormsson, spanhelluborð, bakaraofn, combi-ofn, uppþvottavél og ískápur eru af gerðinni AEG en vifta Elica.
- Innbyggður ísskápur með frysti og innbyggð uppþvottavél fylgja með öllum íbúðum.
- Baðherbergi er með upphengdu salerni, handlaug úr hvítu postulíni með svörtum blöndunartækjum, handklæðaofni og walk-in sturtu með innbyggðum blöndnartækjum.
- Fataskápar í öllum svefnherbergjum og forstofu.
- Aukin lofthæð er í íbúðunum.
- Allir veggir eru sandsparslaðir, grunnaðir og málaðir í ljósum lit.
- Á baðherbergjum eru veggir flísalagðir með 60 x 60 cm (Betonico Grey). Þeir veggir sem bera flísar eru flísalagðir upp í loft.
- 15 sameiginleg bílastæði.
- Burðarvirki hússins er staðsteypt.
- Útveggir einangraðir að utan og klæddir með álklæðningu frá Áltak.
- Gluggar eru úr timbri, málaðir að innan en álklæddir að utan.
- Lóð skilast fullfrágengin með hellum, gróðri og lýsingu.
- Snjóbræðsla er á göngusvæði niður með húsinu, á göngustíg að aðal inngangi, út í sorptunnu skýli og einnig í stæði fyrir hreyfihamlaða.
- Við bílastæðin eru ídráttarrör í jörðu fyrir rafmagn í rafhleðslustöðvar.
- Geymslur og sameiginleg hjóla- og vagnageymsla á 1. hæð.

Nánari upplýsingar má finna í skilalýsingu verktaka.

Verktaki verkefnisins er traustur verktaki: NR 5 ehf.

Um er að ræða vandaðar og fallegar íbúðir á eftirsóttum stað í Urriðaholti, Garðabæ, þar sem stutt er í alla helstu þjónustu.

Fáðu nánari upplýsingar og bókaðu skoðun hjá sölumönnum Ás fasteignasölu:
Arnór Daði Eiríksson löggiltur fasteignasali s. 777-0939 / [email protected] 
Stefán Rafn Sigurmannsson löggiltur fasteignasali s. 655-7000 / [email protected]
Aron Freyr Eiríksson löggiltur fasteignasali s. 772-7376 / [email protected]
Svala Haraldsdóttir löggiltur fasteignasali s. 820-9699 / [email protected]
Eiríkur Svanur Sigfússon lgfs. s. 862-3377 / [email protected]

Ás fasteignasala er rótgróið fyrirtæki sem hefur veitt alla almenna þjónustu í fasteignaviðskiptum frá árinu 1988.
www.facebook.com/asfasteignasala
www.instagram.com/as_fasteignasala
www.as.is


 

Ás fasteignasala

Ás fasteignasala

Fjarðargötu 17, 220 Hafnarfirði
phone
Ás fasteignasala

Ás fasteignasala

Fjarðargötu 17, 220 Hafnarfirði
phone