Upplýsingar
Byggt 2024
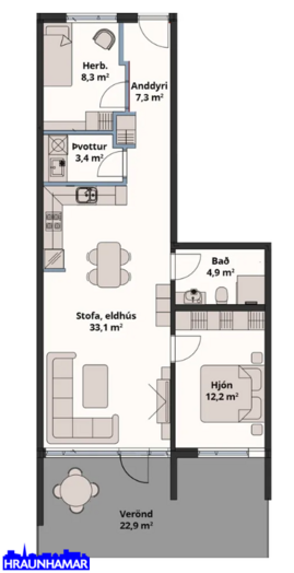
83,9 m²
3 herb.
1 baðherb.
2 svefnh.
Þvottahús
Sérinngangur
Lyfta
Lýsing
MÖGULEIKI Á HLUTDEILDARLÁNI FRÁ HMS - SJÁ NÁNAR HÉR.
BÓKIÐ SKOÐUN - SÝNUM SAMDÆGURS - Einar s. 888-7979, Hlynur s. 698-2603, Glódís s. 659-0510, Helgi s. 893-2233
Hraunhamar kynnir: Glæsilega nýbyggingu á frábærum stað í Vallarhverfinu í Hafnarfirði, einstakt útsýni yfir hraunbreiðuna og til fjalla.
Íbúðirnar afhendast fullbúnar með gólfefnum.
Íbúð 103 er 3ja herbergja 83,9 fm með geymslu. Sérinngangur. Eigninni fylgir rúmgóð verönd.
_______________________
2ja,3ja og 4ra herbergja
Stærðir frá 67,9 fm til 123,1 fm.
Verð er frá 59,9 millj.
Afhending: maí 2026
_______________________
ATH: Myndir eru af sýningaríbúð og getur skipulag íbúðar verið annað. Efnisval á innréttingum og gólfefnum er eins í öllum íbúðum.
Nánari lýsing á skv. teikningu:
Forstofa með fataskápum.
Gott opið rými, þar sem eldhús og stofa eru samliggjandi.
Eldhús með smekklegri innréttingu frá Axis og vönduðum eldunartækjum AEG.
Stofa/borðstofa er björt og er þaðan er útgengt á 22,9 fm verönd.
Hjónaherbergi með fataskápum.
Svefnherbergi er með harðparketi á gólfi og fataskápum.
Flísalagt baðherbergi með innréttingu, upphengdu salerni og sturtu.
Þvottahús er sér og innan íbúðar.
Geymsla í sameign er 7 fm.
Gólefni eru harðparket og flísar.
Húsið er klætt að utan með álklæðningu, og ál/tré gluggar.
Kaupandi borgar skipulagsgjald þegar þess verður krafist sem er 0,3 % af væntu brunabótamati eignarinnar.
Suðurhella 16 er hluti af klasabyggingu þar sem skemmtilegur garður mun tengja húsin saman. Í stigaganginum eru 27 íbúðir.
ÞBF ehf. er byggingaraðili hússins og er reynslumikið og traust byggingarfyrirtæki sem hefur unnið við húsbyggingar í áratugi.
Kaupandi borgar skipulagsgjald þegar þess verður krafist sem er 0,3 % af væntu brunabótamati eignarinnar.
Bókið skoðun hjá sölumönnum Hraunhamars:
Hlynur Halldórsson, löggiltur fasteignasali s. 698-2603, [email protected]
Glódís Helgadóttir, löggiltur fasteignasali í s. 659-0510, [email protected]
Helgi Jón Harðarson, sölustjóri í s. 893-2233, [email protected]
Einar Örn Ágústsson löggiltur fasteignasali s. 888-7979, [email protected]
Gjöld sem kaupandi þarf að standa straum af vegna kaupanna:
1. Stimpilgjald af kaupsamningi, fyrstu kaup (0,4%), almenn kaup (0,8%), lögaðilar (1,6%) af heildarfasteignamati.
2. Þinglýsingargjald af kaupsamningi, veðskuldabréfi, mögulegu veðleyfi o.fl. – 2.700 kr. af hverju skjali.
3. Lántökugjald lánastofnunar er skv. verðskrá viðkomandi lánastofnunar.
4. Umsýslugjald til fasteignasölu skv. þjónustusamningi
Hraunhamar er elsta fasteignasala Hafnarfjarðar, stofnuð 1983.
Hraunhamar, í fararbroddi í rúm 40 ár – Hraunhamar.is
Smelltu hér til að fá frítt söluverðmat.
BÓKIÐ SKOÐUN - SÝNUM SAMDÆGURS - Einar s. 888-7979, Hlynur s. 698-2603, Glódís s. 659-0510, Helgi s. 893-2233
Hraunhamar kynnir: Glæsilega nýbyggingu á frábærum stað í Vallarhverfinu í Hafnarfirði, einstakt útsýni yfir hraunbreiðuna og til fjalla.
Íbúðirnar afhendast fullbúnar með gólfefnum.
Íbúð 103 er 3ja herbergja 83,9 fm með geymslu. Sérinngangur. Eigninni fylgir rúmgóð verönd.
_______________________
2ja,3ja og 4ra herbergja
Stærðir frá 67,9 fm til 123,1 fm.
Verð er frá 59,9 millj.
Afhending: maí 2026
_______________________
ATH: Myndir eru af sýningaríbúð og getur skipulag íbúðar verið annað. Efnisval á innréttingum og gólfefnum er eins í öllum íbúðum.
Nánari lýsing á skv. teikningu:
Forstofa með fataskápum.
Gott opið rými, þar sem eldhús og stofa eru samliggjandi.
Eldhús með smekklegri innréttingu frá Axis og vönduðum eldunartækjum AEG.
Stofa/borðstofa er björt og er þaðan er útgengt á 22,9 fm verönd.
Hjónaherbergi með fataskápum.
Svefnherbergi er með harðparketi á gólfi og fataskápum.
Flísalagt baðherbergi með innréttingu, upphengdu salerni og sturtu.
Þvottahús er sér og innan íbúðar.
Geymsla í sameign er 7 fm.
Gólefni eru harðparket og flísar.
Húsið er klætt að utan með álklæðningu, og ál/tré gluggar.
Kaupandi borgar skipulagsgjald þegar þess verður krafist sem er 0,3 % af væntu brunabótamati eignarinnar.
Suðurhella 16 er hluti af klasabyggingu þar sem skemmtilegur garður mun tengja húsin saman. Í stigaganginum eru 27 íbúðir.
ÞBF ehf. er byggingaraðili hússins og er reynslumikið og traust byggingarfyrirtæki sem hefur unnið við húsbyggingar í áratugi.
Kaupandi borgar skipulagsgjald þegar þess verður krafist sem er 0,3 % af væntu brunabótamati eignarinnar.
Bókið skoðun hjá sölumönnum Hraunhamars:
Hlynur Halldórsson, löggiltur fasteignasali s. 698-2603, [email protected]
Glódís Helgadóttir, löggiltur fasteignasali í s. 659-0510, [email protected]
Helgi Jón Harðarson, sölustjóri í s. 893-2233, [email protected]
Einar Örn Ágústsson löggiltur fasteignasali s. 888-7979, [email protected]
Gjöld sem kaupandi þarf að standa straum af vegna kaupanna:
1. Stimpilgjald af kaupsamningi, fyrstu kaup (0,4%), almenn kaup (0,8%), lögaðilar (1,6%) af heildarfasteignamati.
2. Þinglýsingargjald af kaupsamningi, veðskuldabréfi, mögulegu veðleyfi o.fl. – 2.700 kr. af hverju skjali.
3. Lántökugjald lánastofnunar er skv. verðskrá viðkomandi lánastofnunar.
4. Umsýslugjald til fasteignasölu skv. þjónustusamningi
Hraunhamar er elsta fasteignasala Hafnarfjarðar, stofnuð 1983.
Hraunhamar, í fararbroddi í rúm 40 ár – Hraunhamar.is
Smelltu hér til að fá frítt söluverðmat.