Upplýsingar
Byggt 2025
97,2 m²
3 herb.
1 baðherb.
2 svefnh.
Útsýni
Sameiginl. inngangur
Bílastæði
Lyfta
Lýsing
Kasa fasteignir 461-2010.
Lautarmói 1-3 eru ný fjölbýlishús í smíðum sem verða afhent vetur 2026. Íbúðirnar eru tveggja til fjögurra herbergja, allar íbúðir hafa svalir til vesturs og sérgeymslu í sameign. Flestum eignanna fylgir stæði í bílakjallara þar sem gert er ráð fyrir hleðslustöð fyrir rafmagnsbíla við hvert stæði. Glæsilegt útsýni, ýmist til fjalla eða yfir bæinn er úr öllum íbúðum hússins.
Byggingaraðilinn, B.E húsbyggingar efh er vandaður og traustur byggingaraðili með mikla reynslu í byggingariðnaði. Sjá heimasíðu BE - www.behus.is
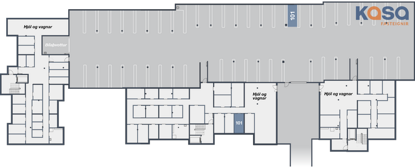
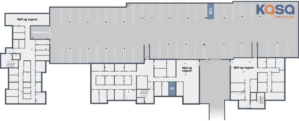
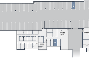
Lautarmói 3 - íbúð 101 - Nýbygging !!
Vel skipulögð 3 herbergja 97,2 fm íbúð með þvottahúsi á 1. hæð í suð-vestur enda í 10 íbúða fjölbýli með lyftu og bílakjallara.
Eignin skiptist í forstofu, stofu og eldhús í opnu rými, tvö svefnherbergi, baðherbergi með þvottaaðstöðu ásamt sér geymslu og bílastæði í kjallara.
- Íbúðinni fylgir stæði í bílageymslu.
- Allar innréttingar eru frá HTH.
- Íbúðinni fylgir innbyggður ísskápur og uppþvottavél.
- Íbúðin afhendist fullfrágengin. Flísar eru á gólfum baðherbergis og þvottahúss. Vínilparket er á öðrum gólfum. Innihurðir eru hvítar sprautulakkaðar.
- Vélrænt útsog er frá baðherbergi, þvottahúsi og eldhúsviftu. Allt neysluvatn fer í gegnum varmaskipti.
- Mynd-dyrasími er í íbúðinni.
- Burðarplata er steypt þar sem einangrun og gólfhitalögn er lögð ofan á áður en sjálf gólfplatan er steypt. Með þessu næst hámarks hljóðeinangrun milli hæða.
- Hægt er að kaupa auka bílastæði í bílakjallara. ( Takmarkaðar fjöldi aukastæða í boði )
Svalagangur - Aðgengi að íbúðum í Lautarmóa 3 er um svalagang. Snjóbræðsla er í svalagangi og glerlokun.
Svalir - Svalir eru á suð-vestur hlið íbúða. Svalirnar eru klæddar með pallaefni og eru með gler handriði.
Heildar stærð eignar: 97,2 fm.
- Íbúð: 86,9 fm.
- Geymsla: 10,3 fm.
Smelltu hér fyrir nánari skilalýsingu
Nánari upplýsingar í síma 461-2010 eða [email protected]
------------
Skoðunarskylda:
Í lögum um fasteignakaup nr. 40/2002 er kveðið á um ríka skoðunarskyldu kaupenda á fasteignum. Kasa fasteignir benda væntanlegum kaupendum á að kynna sér vel ástand fasteigna fyrir kauptilboðsgerð og leita til þar til bærra sérfræðinga um nánari skoðun ef þurfa þykir.
Forsendur söluyfirlits:
Söluyfirlit er samið af fasteignasala í samræmi við ákvæði laga nr. 70/2015. Þær upplýsingar sem fram koma í söluyfirliti þessu eru sóttar í opinberar skrár, til seljanda sjálfs og eftir atvikum til húsfélags. Seljandi veitir upplýsingar um eign í samræmi við upplýsingaskyldu laga um fasteignakaup nr. 40/2002. Fasteignasali sannreynir að þær upplýsingar séu réttar með sjónskoðun á eigninni. Fasteignasali getur ekki fullyrt um ástand og eiginleika þeirra hluta fasteigna sem ekki eru aðgengilegir og sjást ekki berum augum, t.d. lagnir, dren, skólp og þak.
Gjöld sem kaupandi þarf að standa straum af vegna kaupanna:
1. Stimpilgjald sýslumanns af kaupsamningi, fyrstu kaup (0,4%), almenn kaup (0,8%), lögaðilar (1,6%) af heildarfasteignamati eignar.
2. Þinglýsingargjald af kaupsamningi, veðskuldabréfi, mögulegu veðleyfi o.fl. - kr. 2.700 af hverju skjali.
3. Lántökugjald lánastofnunar er skv. verðskrá viðkomandi lánastofnunar. Nánari upplýsingar á t.d. heimasíðu lánastofnana.
4. Umsýslugjald til fasteignasölu skv. kauptilboði.
Lautarmói 1-3 eru ný fjölbýlishús í smíðum sem verða afhent vetur 2026. Íbúðirnar eru tveggja til fjögurra herbergja, allar íbúðir hafa svalir til vesturs og sérgeymslu í sameign. Flestum eignanna fylgir stæði í bílakjallara þar sem gert er ráð fyrir hleðslustöð fyrir rafmagnsbíla við hvert stæði. Glæsilegt útsýni, ýmist til fjalla eða yfir bæinn er úr öllum íbúðum hússins.
Byggingaraðilinn, B.E húsbyggingar efh er vandaður og traustur byggingaraðili með mikla reynslu í byggingariðnaði. Sjá heimasíðu BE - www.behus.is
Lautarmói 3 - íbúð 101 - Nýbygging !!
Vel skipulögð 3 herbergja 97,2 fm íbúð með þvottahúsi á 1. hæð í suð-vestur enda í 10 íbúða fjölbýli með lyftu og bílakjallara.
Eignin skiptist í forstofu, stofu og eldhús í opnu rými, tvö svefnherbergi, baðherbergi með þvottaaðstöðu ásamt sér geymslu og bílastæði í kjallara.
- Íbúðinni fylgir stæði í bílageymslu.
- Allar innréttingar eru frá HTH.
- Íbúðinni fylgir innbyggður ísskápur og uppþvottavél.
- Íbúðin afhendist fullfrágengin. Flísar eru á gólfum baðherbergis og þvottahúss. Vínilparket er á öðrum gólfum. Innihurðir eru hvítar sprautulakkaðar.
- Vélrænt útsog er frá baðherbergi, þvottahúsi og eldhúsviftu. Allt neysluvatn fer í gegnum varmaskipti.
- Mynd-dyrasími er í íbúðinni.
- Burðarplata er steypt þar sem einangrun og gólfhitalögn er lögð ofan á áður en sjálf gólfplatan er steypt. Með þessu næst hámarks hljóðeinangrun milli hæða.
- Hægt er að kaupa auka bílastæði í bílakjallara. ( Takmarkaðar fjöldi aukastæða í boði )
Svalagangur - Aðgengi að íbúðum í Lautarmóa 3 er um svalagang. Snjóbræðsla er í svalagangi og glerlokun.
Svalir - Svalir eru á suð-vestur hlið íbúða. Svalirnar eru klæddar með pallaefni og eru með gler handriði.
Heildar stærð eignar: 97,2 fm.
- Íbúð: 86,9 fm.
- Geymsla: 10,3 fm.
Smelltu hér fyrir nánari skilalýsingu
Nánari upplýsingar í síma 461-2010 eða [email protected]
------------
Skoðunarskylda:
Í lögum um fasteignakaup nr. 40/2002 er kveðið á um ríka skoðunarskyldu kaupenda á fasteignum. Kasa fasteignir benda væntanlegum kaupendum á að kynna sér vel ástand fasteigna fyrir kauptilboðsgerð og leita til þar til bærra sérfræðinga um nánari skoðun ef þurfa þykir.
Forsendur söluyfirlits:
Söluyfirlit er samið af fasteignasala í samræmi við ákvæði laga nr. 70/2015. Þær upplýsingar sem fram koma í söluyfirliti þessu eru sóttar í opinberar skrár, til seljanda sjálfs og eftir atvikum til húsfélags. Seljandi veitir upplýsingar um eign í samræmi við upplýsingaskyldu laga um fasteignakaup nr. 40/2002. Fasteignasali sannreynir að þær upplýsingar séu réttar með sjónskoðun á eigninni. Fasteignasali getur ekki fullyrt um ástand og eiginleika þeirra hluta fasteigna sem ekki eru aðgengilegir og sjást ekki berum augum, t.d. lagnir, dren, skólp og þak.
Gjöld sem kaupandi þarf að standa straum af vegna kaupanna:
1. Stimpilgjald sýslumanns af kaupsamningi, fyrstu kaup (0,4%), almenn kaup (0,8%), lögaðilar (1,6%) af heildarfasteignamati eignar.
2. Þinglýsingargjald af kaupsamningi, veðskuldabréfi, mögulegu veðleyfi o.fl. - kr. 2.700 af hverju skjali.
3. Lántökugjald lánastofnunar er skv. verðskrá viðkomandi lánastofnunar. Nánari upplýsingar á t.d. heimasíðu lánastofnana.
4. Umsýslugjald til fasteignasölu skv. kauptilboði.