Upplýsingar
Byggt 2025
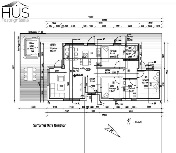
93,5 m²
4 herb.
1 baðherb.
3 svefnh.
Þvottahús
Sérinngangur
Lýsing
Steindór Guðmundsson löggiltur fasteignasali 862 1996 og HÚS fasteignasala kynna í sölu Smámýarveg 25, Grímsnes- og Grafningshreppi. Vandað heilsárshús í byggingu 93,5 fm sem afhendist fullbúið að utan og tilbúið til innréttinga að innan. Lóðin er 5.000 fm. eignarlóð rétt utan við Borg í Grímsnesi.
Að utan er húsið klætt með panil álklæðningu og bandsagaðri litaðri furu í bland. Alusink bárujárn er á þaki sem er á lektum með ásoðnum þakpappa undir. Ál/tré gluggar frá Rationel. Húsið stendur á steyptum sökkli plata með ísteyptum gólfhitalögnum í plötu.Skilast með frágenginn hitatúpu. Útikranar eru á báðum langhliðum hússins. Búið er að taka inn rafmagn og kalt vatn.
Að innan skilast húsið tilbúið til innréttinga. Spartlað og grunnmálað. Innra lag veggja er klætt með OBS plötum og ytra lag með gifsi. Öll loft eru upptekin, klædd með hvíttuðum panil, loftalistar komnir. Innfeld lýsing komin í stofu, eldhús,baðherbergi, gang og hjónaherbergi. Gólf eru flotuð. Rafmagnstafla er komin. Búið að tengja og leggja rafmagn að mestu en m.a. er eftir að setja rofa og tengla.
Innra skipulag gerir ráð fyrir:
Forstofu.
Þremur svefnherbergjum.
Eldhúsi og stofu sem er opið í eitt.
Þvottahúsi.
Baðherbergi.
Útgengt er úr eldhúsi, einu svefnherbergjanna og í enda svefnherbergigangs út á fyrirhugaða verönd.
Lóð er náttúrleg. Búið er að jarðvegsskipta fyrir bílaplan og kringum hús fyrir fyrirhugaðann pall.
Lagt er fyrir heitum potti. Rotþró er frágengin. Drenlagnir í kringum hús. Regnvatn og vatn úr potti, sturtu og handlaug fer í svelg.
Eigin er staðsett rétt við byggðakjarnann á Borg í Grímsnesi og í um 20 km frá Selfossi um klukkutíma akstur er til Reykjavíkur. Góðir golfvellir skammt frá m.a. í Kiðjabergi og Öndverðarnesi.
Nánari upplýsingar veitir Steindór Guðmundsson löggiltur fasteignasali s. 862 1996 [email protected]
,,Okkar fagmennska eru þínir hagsmunir"
Gjöld sem kaupandi þarf að standa straum að vegna kaupanna.
1. Stimpilgjöld af kaupsamningi - 0,8 % af heildarfasteignamati. (0,4% fyrstu kaup, 1,6% lögaðilar)
2. Þinglýsingargjald af kaupsamningi, veðskuldabréfi, mögulegu veðleyfi o.fl. kr. 3.800 af hverju skjali.
3. Lántökugjald lánastofnunnar, breytilegt. Nánari upplýsingar t.d. á heimasíðum lánastofnanna.
4. Umsýslugjald til fasteignasölu sbr. kauptilboð.
5. Skipulagsgjald 0,3% af brunabótamati
Gjöld sem kaupandi þarf að standa straum að vegna kaupanna.
Að utan er húsið klætt með panil álklæðningu og bandsagaðri litaðri furu í bland. Alusink bárujárn er á þaki sem er á lektum með ásoðnum þakpappa undir. Ál/tré gluggar frá Rationel. Húsið stendur á steyptum sökkli plata með ísteyptum gólfhitalögnum í plötu.Skilast með frágenginn hitatúpu. Útikranar eru á báðum langhliðum hússins. Búið er að taka inn rafmagn og kalt vatn.
Að innan skilast húsið tilbúið til innréttinga. Spartlað og grunnmálað. Innra lag veggja er klætt með OBS plötum og ytra lag með gifsi. Öll loft eru upptekin, klædd með hvíttuðum panil, loftalistar komnir. Innfeld lýsing komin í stofu, eldhús,baðherbergi, gang og hjónaherbergi. Gólf eru flotuð. Rafmagnstafla er komin. Búið að tengja og leggja rafmagn að mestu en m.a. er eftir að setja rofa og tengla.
Innra skipulag gerir ráð fyrir:
Forstofu.
Þremur svefnherbergjum.
Eldhúsi og stofu sem er opið í eitt.
Þvottahúsi.
Baðherbergi.
Útgengt er úr eldhúsi, einu svefnherbergjanna og í enda svefnherbergigangs út á fyrirhugaða verönd.
Lóð er náttúrleg. Búið er að jarðvegsskipta fyrir bílaplan og kringum hús fyrir fyrirhugaðann pall.
Lagt er fyrir heitum potti. Rotþró er frágengin. Drenlagnir í kringum hús. Regnvatn og vatn úr potti, sturtu og handlaug fer í svelg.
Eigin er staðsett rétt við byggðakjarnann á Borg í Grímsnesi og í um 20 km frá Selfossi um klukkutíma akstur er til Reykjavíkur. Góðir golfvellir skammt frá m.a. í Kiðjabergi og Öndverðarnesi.
Nánari upplýsingar veitir Steindór Guðmundsson löggiltur fasteignasali s. 862 1996 [email protected]
,,Okkar fagmennska eru þínir hagsmunir"
Gjöld sem kaupandi þarf að standa straum að vegna kaupanna.
1. Stimpilgjöld af kaupsamningi - 0,8 % af heildarfasteignamati. (0,4% fyrstu kaup, 1,6% lögaðilar)
2. Þinglýsingargjald af kaupsamningi, veðskuldabréfi, mögulegu veðleyfi o.fl. kr. 3.800 af hverju skjali.
3. Lántökugjald lánastofnunnar, breytilegt. Nánari upplýsingar t.d. á heimasíðum lánastofnanna.
4. Umsýslugjald til fasteignasölu sbr. kauptilboð.
5. Skipulagsgjald 0,3% af brunabótamati
Gjöld sem kaupandi þarf að standa straum að vegna kaupanna.