Löggiltir fasteignasalar innan Félags fasteignasala:
Þórarinn Halldór Óðinsson
Upplýsingar
Byggt 2007
114,4 m²
5 herb.
1 baðherb.
4 svefnh.
Þvottahús
Útsýni
Sameiginl. inngangur
Lyfta
Laus strax
Lýsing
Nes fasteignasala kynnir í einkasölu eignina:
Arnarklettur 26, 310 Borgarnesi.
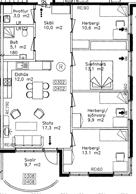
Um er að ræða mjög rúmgóða 5 herbergja íbúð á 4. hæð í fjölbýlishúsi merkt 0402. Íbúðin er 114.4 fm að stærð samkvæmt skráningu HMS, þar af er geymsla 7.4 fm. Inngangur er sameiginlegur, lyfta, sér geymsla og sameiginleg hjóla og vagnageymsla í kjallara fylgir íbúðinni. Bílastæði eru malbikuð og lóðin frágengin.
Eignin er laus til afhendingar við kaupsamning!
Nánari lýsing:
Gengið er úr lyftu inn á 4. hæð. Íbúðin skiptist í forstofu/hol, þvottahús, baðherbergi, 4 svefnherbergi og alrými sem samanstendur af eldhúsi, borðstofu og stofu. Gengið er úr stofu út á svalirnar.
Forstofa/hol: Parket á gólfi, fataskápur.
Þvottahús: Dúkur á gólfi, vaskur í borði.
Baðherbergi: Flísar eru í hólf og gólf, upphengt salerni og sturta.
Svefnherbergi: Eru 4. Parket á gólfum, fataskápar í öllum herbegjum.
Eldhús: Parket á gólfi, innrétting eik. Helluborð og bakarofn. Stæði í innréttingu fyrir uppþvottavél og ísskáp
Stofa og borðstofa: Björt og rúmgóð með parket á gólfum. Gengið er úr stofu út á svalirsem snúa mót suð-vestri.
Svalir: Eru rúmgóðar með miklu útsýni.
Hér er um mjög rúmgóða og vel staðsetta eign að ræða.
Nánari upplýsingar veitir Þórarinn Halldór Óðinsson lögg. fasteignasali, í síma 497-0040 eða 865-0350, tölvupóstur [email protected].
Nes fasteignasala tekur ekki umsýslugjald af kaupendum.
Kostnaður kaupanda:
Stimpilgjald skv. 5. gr. laga nr. 138/2013 um stimpilgjald, 0,8% af fasteignamati fyrir einstaklinga. 0,4% við fyrstu kaup og 1,6% fyrir lögaðila.
Þinglýsingargjald kr. 3.800,- á hvert skjal.
Lántökugjald lánastofnunar skv. gjaldskrá.
Engin umsýsluþóknun.
Arnarklettur 26, 310 Borgarnesi.
Um er að ræða mjög rúmgóða 5 herbergja íbúð á 4. hæð í fjölbýlishúsi merkt 0402. Íbúðin er 114.4 fm að stærð samkvæmt skráningu HMS, þar af er geymsla 7.4 fm. Inngangur er sameiginlegur, lyfta, sér geymsla og sameiginleg hjóla og vagnageymsla í kjallara fylgir íbúðinni. Bílastæði eru malbikuð og lóðin frágengin.
Eignin er laus til afhendingar við kaupsamning!
Nánari lýsing:
Gengið er úr lyftu inn á 4. hæð. Íbúðin skiptist í forstofu/hol, þvottahús, baðherbergi, 4 svefnherbergi og alrými sem samanstendur af eldhúsi, borðstofu og stofu. Gengið er úr stofu út á svalirnar.
Forstofa/hol: Parket á gólfi, fataskápur.
Þvottahús: Dúkur á gólfi, vaskur í borði.
Baðherbergi: Flísar eru í hólf og gólf, upphengt salerni og sturta.
Svefnherbergi: Eru 4. Parket á gólfum, fataskápar í öllum herbegjum.
Eldhús: Parket á gólfi, innrétting eik. Helluborð og bakarofn. Stæði í innréttingu fyrir uppþvottavél og ísskáp
Stofa og borðstofa: Björt og rúmgóð með parket á gólfum. Gengið er úr stofu út á svalirsem snúa mót suð-vestri.
Svalir: Eru rúmgóðar með miklu útsýni.
Hér er um mjög rúmgóða og vel staðsetta eign að ræða.
Nánari upplýsingar veitir Þórarinn Halldór Óðinsson lögg. fasteignasali, í síma 497-0040 eða 865-0350, tölvupóstur [email protected].
Nes fasteignasala tekur ekki umsýslugjald af kaupendum.
Kostnaður kaupanda:
Stimpilgjald skv. 5. gr. laga nr. 138/2013 um stimpilgjald, 0,8% af fasteignamati fyrir einstaklinga. 0,4% við fyrstu kaup og 1,6% fyrir lögaðila.
Þinglýsingargjald kr. 3.800,- á hvert skjal.
Lántökugjald lánastofnunar skv. gjaldskrá.
Engin umsýsluþóknun.