Löggiltir fasteignasalar innan Félags fasteignasala:
Þórarinn Halldór Óðinsson
Upplýsingar
Verðsaga
Byggt 1954
179,6 m²
7 herb.
2 baðherb.
5 svefnh.
Þvottahús
Bílskúr
Laus strax
Opið hús: 24. febrúar 2026
kl. 17:00
til 17:30
Opið hús: Gunnlaugsgata 8, 310 Borgarnes. Eignin verður sýnd þriðjudaginn 24. febrúar 2026 milli kl. 17:00 og kl. 17:30.
Lýsing
Nes fasteignasala ehf kynnir eignina:
Gunnlaugsgata 8, 310 Borgarnes. Eign með mikla möguleika fyrir réttan aðila!
Eignin er tilbúin til afhendingar við kaupsamning.
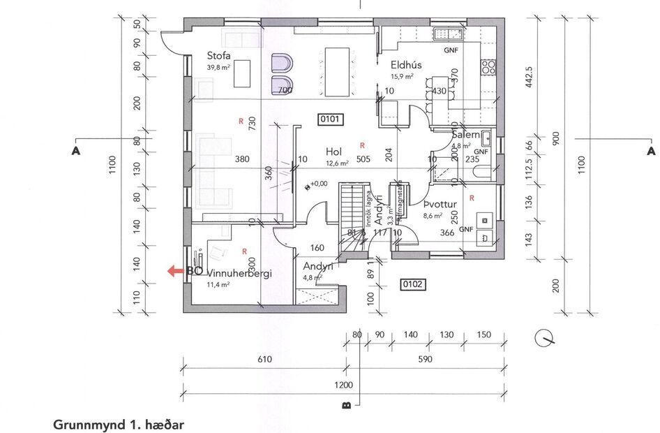
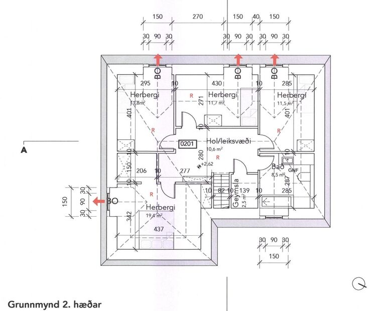
Um er að ræða steinsteypt einbýlishús á tveimur hæðum, byggt 1954 ásamt stakstæðum bílskúr. Eignin er samtals 179.6 fm stærð skv. skráningu HMS. Þar af er neðri hæð 120 fm, rishæð 32.2 fm, og bílskúr 27.4 fm.
Húsið skiptist í forstofu, stigapall, 2 stofur, eldhús, sjónvarpsherbergi, 5 svefnherbergi, baðherbergi, snyrtingu, þvottahús og geymslu.
Nánari lýsing:
Gengið er í forstofu. Þar á vinstri hönd er forstofuherbergi. Úr forstofu er gengið inn á gang sem tengir saman öll rými á hæðinnien þar eru 2 svefnherbergi, 2 stofur, snyrting og eldhús. Gengið er upp stiga af stigapalli inn á gang á rishæð, þar eru 3 svefnherbergi, baðherbergi og þvottahús. Bílskúr er stakstæður.
Jarðhæð:
Forstofa: Teppi á gólfi og opinn fataskápur.
Svefnherbergi: 2 á hæðinni, fataskápar í báðum herbergjum.
Stofa og borðstofa: Rúmgóðar með parket á gólfi.
Snyrting: Dúkur á gólfi, salerni og innrétting með skápum á vegg.
Eldhús: Eldri innrétting, eldavél.
Rishæð:
Svefnherbergi: 3 á hæðinni.
Þvottahús: Steypt gólf.
Baðherbergi: Baðkar, salerni og lítil innrétting.
Bílskúr: Steypt gólf, eldri bílskúrshurð.
Eignin er komin til ára sinna og þarfnast viðhalds/endurnýjunar. Innrétting í eldhúsi er gömul og þarfnast endurnýjunar. Húsið þarfnast lagfæringa að utan. Þak og burðarvirki þarfnast endurnýjunar. Búið er að skipta um glugga á jarðhæð og útidyrahurðar.
Búið er að teikna og burðarþolshanna breytingar á einbýlishúsinu, sem gerir efri hæðina mun rýmri og allt húsið notadrýgra. Einnig er búið að kaupa glugga fyrir efri hæð og svalahurð fyrir neðri hæð. Teikningar, gluggar og svalahurð geta fylgt með kaupum ef óskað er eftir því. Ef endurbygging á þaki fer eftir þeim teikningum sem gætu fylgt, þá fer flatarmál hússins úr 152 fm og upp í 212 fm og því gott tækifæri til að auka verðmæti einbýlishússins töluvert.
Góð staðsetning í rólegri götu og stutt í grunnskóla.
Nánari upplýsingar veitir Þórarinn Halldór Óðinsson lögg. fasteignasali, í síma 497-0040 eða 865-0350, tölvupóstur [email protected].
Gunnlaugsgata 8, 310 Borgarnes. Eign með mikla möguleika fyrir réttan aðila!
Eignin er tilbúin til afhendingar við kaupsamning.
Um er að ræða steinsteypt einbýlishús á tveimur hæðum, byggt 1954 ásamt stakstæðum bílskúr. Eignin er samtals 179.6 fm stærð skv. skráningu HMS. Þar af er neðri hæð 120 fm, rishæð 32.2 fm, og bílskúr 27.4 fm.
Húsið skiptist í forstofu, stigapall, 2 stofur, eldhús, sjónvarpsherbergi, 5 svefnherbergi, baðherbergi, snyrtingu, þvottahús og geymslu.
Nánari lýsing:
Gengið er í forstofu. Þar á vinstri hönd er forstofuherbergi. Úr forstofu er gengið inn á gang sem tengir saman öll rými á hæðinnien þar eru 2 svefnherbergi, 2 stofur, snyrting og eldhús. Gengið er upp stiga af stigapalli inn á gang á rishæð, þar eru 3 svefnherbergi, baðherbergi og þvottahús. Bílskúr er stakstæður.
Jarðhæð:
Forstofa: Teppi á gólfi og opinn fataskápur.
Svefnherbergi: 2 á hæðinni, fataskápar í báðum herbergjum.
Stofa og borðstofa: Rúmgóðar með parket á gólfi.
Snyrting: Dúkur á gólfi, salerni og innrétting með skápum á vegg.
Eldhús: Eldri innrétting, eldavél.
Rishæð:
Svefnherbergi: 3 á hæðinni.
Þvottahús: Steypt gólf.
Baðherbergi: Baðkar, salerni og lítil innrétting.
Bílskúr: Steypt gólf, eldri bílskúrshurð.
Eignin er komin til ára sinna og þarfnast viðhalds/endurnýjunar. Innrétting í eldhúsi er gömul og þarfnast endurnýjunar. Húsið þarfnast lagfæringa að utan. Þak og burðarvirki þarfnast endurnýjunar. Búið er að skipta um glugga á jarðhæð og útidyrahurðar.
Búið er að teikna og burðarþolshanna breytingar á einbýlishúsinu, sem gerir efri hæðina mun rýmri og allt húsið notadrýgra. Einnig er búið að kaupa glugga fyrir efri hæð og svalahurð fyrir neðri hæð. Teikningar, gluggar og svalahurð geta fylgt með kaupum ef óskað er eftir því. Ef endurbygging á þaki fer eftir þeim teikningum sem gætu fylgt, þá fer flatarmál hússins úr 152 fm og upp í 212 fm og því gott tækifæri til að auka verðmæti einbýlishússins töluvert.
Góð staðsetning í rólegri götu og stutt í grunnskóla.
Nánari upplýsingar veitir Þórarinn Halldór Óðinsson lögg. fasteignasali, í síma 497-0040 eða 865-0350, tölvupóstur [email protected].
Ár
Fasteignamat
Kaupverð
Stærð
Fermetraverð
22. apr. 2014
19.150.000 kr.
24.000.000 kr.
179.6 m²
133.630 kr.
Byggt á upplýsingum úr Þjóðskrá Íslands frá 2006-2026