Upplýsingar
Verðsaga
Byggt 2023
76,7 m²
3 herb.
1 baðherb.
2 svefnh.
Sameiginl. inngangur
Bílastæði
Lyfta
Lýsing
Dvergaholt 9 íbúð 211 - Nýbygging
*** Eigandi skoðar öll skipti t.d. bíla ***
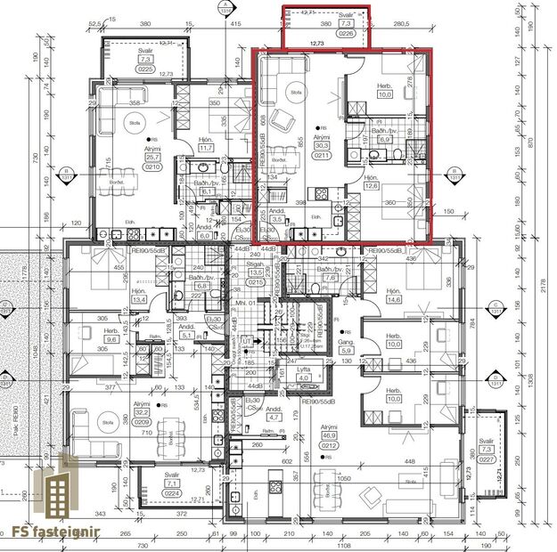
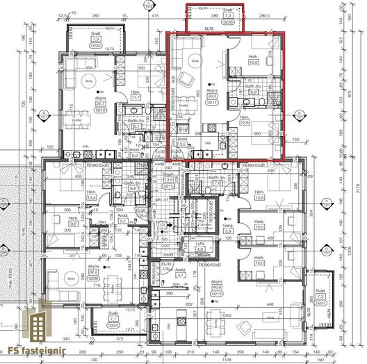
Mjög falleg 3ja herbergja íbúð á 2. hæð í fjölbýli með lyftu og sér stæði í bílageymslu - stærð 76,7 m²
Eignin skiptist í forstofu, eldhús, stofu, tvö svefnherbergi og baðherbergi með þvottaaðstöðu. Sér geymsla er á jarðhæðinni og sér stæði bílageymslu.
Allar innréttingar eru frá Brúnás sem eru sprautlakkaðar í fallegum ljósbrúnum lit með ljósum borðplötum.
Gólfefni eru harðparket í ljósum lit af vandaðri gerð á alrými og herbergjum, fallegar flísar á baðherbergisgólfi.
* Mjög snyrtileg og falleg sameign.
* Gólfhiti.
* Vandað harðparket á gólfum.
* Hljóðdempandi plötur í öllum loftum íbúðar nema baðherbergi.
* Loftskiptikerfi.
* Bílageymsla mjög rúmgóð og bílastæðið er mjög rúmgott 4m. á breidd.
Forstofa er með ljósu harðparketi á gólfi og fataskáp.
Eldhús, vönduð innrétting sprautulökkuð í ljósbrúnum lit, með grárri borðplötu. Ísskápur með frysti og innbyggð uppþvottavél.
Stofa er rúmgóð, með ljósu harðparketi á gólfi og rennihurð út á steyptar vestur svalir, skráðar 7,3 m² að stærð.
Svefnherbergin eru tvö og eru skv. teikningum 10,0m2 og 12,6 m² að stærð, bæði með ljósu harðparketi á gólfum og fataskápum.
Baðherbergi er mjög fallegt, stein gráar flísar á gólfi og hluta veggja, ljósbrún innrétting og speglaskápur, upphengt salerni, walk-in sturta og opnanlegur gluggi. Tengi er fyrir þvottavél.
Sér geymsla er á jarðhæðinni, skráð 4,1 m² að stærð og með lökkuðu gólfi. Rafmagnstengill er þar.
Lofræstisamstæðan er staðsett í forstofuskáp sem er þrefaldur.
Nánari upplýsingar
Friðrik Einar Sigþórsson sími 694-4420
Svala Jónsdóttir sími 663-5260
*** Eigandi skoðar öll skipti t.d. bíla ***
Mjög falleg 3ja herbergja íbúð á 2. hæð í fjölbýli með lyftu og sér stæði í bílageymslu - stærð 76,7 m²
Eignin skiptist í forstofu, eldhús, stofu, tvö svefnherbergi og baðherbergi með þvottaaðstöðu. Sér geymsla er á jarðhæðinni og sér stæði bílageymslu.
Allar innréttingar eru frá Brúnás sem eru sprautlakkaðar í fallegum ljósbrúnum lit með ljósum borðplötum.
Gólfefni eru harðparket í ljósum lit af vandaðri gerð á alrými og herbergjum, fallegar flísar á baðherbergisgólfi.
* Mjög snyrtileg og falleg sameign.
* Gólfhiti.
* Vandað harðparket á gólfum.
* Hljóðdempandi plötur í öllum loftum íbúðar nema baðherbergi.
* Loftskiptikerfi.
* Bílageymsla mjög rúmgóð og bílastæðið er mjög rúmgott 4m. á breidd.
Forstofa er með ljósu harðparketi á gólfi og fataskáp.
Eldhús, vönduð innrétting sprautulökkuð í ljósbrúnum lit, með grárri borðplötu. Ísskápur með frysti og innbyggð uppþvottavél.
Stofa er rúmgóð, með ljósu harðparketi á gólfi og rennihurð út á steyptar vestur svalir, skráðar 7,3 m² að stærð.
Svefnherbergin eru tvö og eru skv. teikningum 10,0m2 og 12,6 m² að stærð, bæði með ljósu harðparketi á gólfum og fataskápum.
Baðherbergi er mjög fallegt, stein gráar flísar á gólfi og hluta veggja, ljósbrún innrétting og speglaskápur, upphengt salerni, walk-in sturta og opnanlegur gluggi. Tengi er fyrir þvottavél.
Sér geymsla er á jarðhæðinni, skráð 4,1 m² að stærð og með lökkuðu gólfi. Rafmagnstengill er þar.
Lofræstisamstæðan er staðsett í forstofuskáp sem er þrefaldur.
Nánari upplýsingar
Friðrik Einar Sigþórsson sími 694-4420
Svala Jónsdóttir sími 663-5260
Ár
Fasteignamat
Kaupverð
Stærð
Fermetraverð
12. maí. 2025
46.350.000 kr.
58.900.000 kr.
10211 m²
5.768 kr.
Byggt á upplýsingum úr Þjóðskrá Íslands frá 2006-2026