Löggiltir fasteignasalar innan Félags fasteignasala:
Páll Þórólfsson
Guðbjörg Guðmundsdóttir
Jason Kristinn Ólafsson
Sverrir Pálmason
Vista
fjölbýlishús

Fálkahlíð 5 (511)

102 Reykjavík

109.900.000 kr.

1.022.326 þ.kr./m2
Fasteignanúmer

F2512736

Fasteignamat

92.800.000 kr.

Brunabótamat

72.150.000 kr.

Áhvílandi

0 kr.

Arion banki – Reikna lán
Upplýsingar
svg
Byggt 2022
svg
107,5 m²
svg
3 herb.
svg
1 baðherb.
svg
2 svefnh.
svg
Þvottahús
svg
Útsýni
svg
Sameiginl. inngangur
svg
Hjólastólaaðgengi
svg
Bílastæði
svg
Lyfta
Opið hús: 25. febrúar 2026 kl. 11:30 til 12:00

Jason fasteignasali sími 7751515 verður á svæðinu

Lýsing

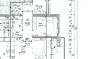
Betri Stofan og Jason Kristinn Ólafsson fasteignasali sími 7751515 kynnir: Glæsileg og nýleg 3ja herbergja íbúð á efstu hæð við Fálkahlíð 5 í 102 Reykjavík. Íbúð á 5. hæð með 2 svefnherbergjum og svölum og þakgarði að stærðinni samtals 35,9 fm.

Nýleg og falleg íbúð með tveimur svefnherbergjum fullbúin með öllum gólfefnum, uppþvottavél og ísskáp.  Ljós eru innbyggð að hluta, kubbaljós, ljósakúplar og kastarar fylgja. Baðherbergi eru flísalögð, bæði veggir og gólf. Sér þvottahús.

Nánari lýsing eignar nr. 511, 3ja herbergja íbúð á 5.hæð með sér inngang af svölum og 26,5 fm þakgarði. Sér stæði í bílageymslu merkt B70. Geymsla eignar er sér innan og er skráð 16 fm.
Forstofa með flísum gólfi og fataskáp.
Tvö svefnherbergi með innréttingu
Eldhús með ljósri innréttingu með efri og neðri skápum og eyju. Innbyggður ísskápur með frysti og uppþvottavél. Bakaraofn í vinnuhæð, span helluborð er í eyjunni og nettur frístandandi háfur.
Stofa og opið eldhús sem eitt alrými. Þaðan eru tveir útgangar út á svalir. Austur-svalir sem eru 9,4 fm og þakgarður til norðurs sem er 26,5 fm.
Baðherbergi með sturtuklefa, ljósri innréttingu, handlaug og upphengdu salerni. Sér þvottahús. 

Íbúðin er 107, fm, og þaraf sérgeymsla 16 fm

Heimasíða

Nánari upplýsingar:
Jason Kristinn Ólafsson, sími 775 1515 - löggiltur fasteignasali. - netfang: [email protected]
Dagrún Davíðsdóttir, sími 866 1763 eða á [email protected] -löggiltur fasteignasali
Guðbjörg Guðmundsdóttir, sími 899 5533 eða [email protected]s
Þórir Skarphéðinsson, sími 844-9591-  lögmaður og lgfs. - netfang: [email protected]
Þórhallur Biering löggiltur fasteignasali í síma 896-8232 eða [email protected]   


Gjöld sem kaupandi þarf að standa straum af ef að kaupum verður:
1. Stimpilgjald af fasteignamati fasteignar er 0.8%, en 0,4% fyrir fyrstu kaup og 1,6% fyrir lögaðila.  
2. Þinglýsingargjald: kaupsamningi, skuldabréfi, veðleyfi, afsali o.s.frv. er kr. 3.800 af hverju skjali.
3. Lántökukostnaður samkvæmt verðskrá viðkomandi lánastofnunar.
4. Umsýslugjald til fasteignasölu skv. gjaldskrá.

Skoðunarskylda kaupanda:
Í lögum um fasteignakaup nr. 40/2002 er kveðið á um ríka skoðunarskyldu kaupenda á fasteignum. Betri Stofan fasteignasala bendir væntanlegum kaupendum á að kynna sér vel ástand fasteigna við skoðun og fyrir tilboðsgerð og ef þurfa þykir að leita til sérfræðinga um nánari ástandsskoðun.

img
Jason Kristinn Ólafsson
Lögg.fasteignasali innan félags fasteignasala
Betri Stofan Fasteignasala
Borgartúni 30, 105 Reykjavík
Betri Stofan Fasteignasala

Betri Stofan Fasteignasala

Borgartúni 30, 105 Reykjavík
phone
img

Jason Kristinn Ólafsson

Borgartúni 30, 105 Reykjavík
Betri Stofan Fasteignasala

Betri Stofan Fasteignasala

Borgartúni 30, 105 Reykjavík
phone

Jason Kristinn Ólafsson

Borgartúni 30, 105 Reykjavík