Upplýsingar
Byggt 2025
111,1 m²
3 herb.
1 baðherb.
2 svefnh.
Sameiginl. inngangur
Lyfta
Lýsing
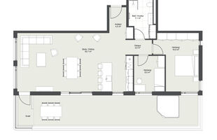
Glæsileg þrílýst 3ja herbergja þakíbúð á 5. hæð í Valshlíð 1, glæsilegri nýbyggingu á frábærum stað í miðbænum.
Birt stærð er 111,1 m² þar af 5,9 m² geymsla í kjallara.
* 45m² þaksvalir.
* Quartz-steinn á borðum og milli skápa í eldhúsi
* Vandaðar innréttingar og tæki
* Frábær staðsetning
Nánari upplýsingar varðandi kaupmöguleika, eignina og skoðun fást hjá:
Pálsson fasteignasölu, [email protected] S. 764-7474
Nánari lýsing:
Íbúðin skiptist í anddyri, eldhús og stofu/borðstofu í opnu rými með útgengi á stórar þaksvalir, 2 svefnherbergi og baðherbergi. Íbúðin afhendist með hágæða sérsmíðuðum innréttingum frá Nobilia/GKS, raftækjum frá Siemens, Witt og Temptechí hæsta gæðaflokki, vönduðum ítölskum blöndunartækjum frá Mariner Rubinetterie og sterku og vönduðu gólfefni frá Álfaborg. Íbúðin er útbúin sér loftræsikerfi með varmaendurvinnslu. Innréttingarþema íbúðar er Hlíð 2.
Í anddyri er góður fataskápur. Gengið er úr anddyri beint inn í rúmgott alrými; eldhús og stofu/borðstofu með útgengi á rúmlega 45 fm þaksvalir með tengi fyrir heitan pott.
Eldhús er með svarbrúnni eldhúsinnréttingu með viðaráferð, vinnueyju, svartur quartz-steinn er á borðum og milli skápa og hágæða ítölsk blöndunartæki úr byssubláu stáli. Öll eldhúsraftæki af hæsta gæðaflokki. Innbyggður ísskápur, uppþvottavél og Vínkælir.
Rúmgott hjónaherbergi með góðum fataskápum.
Svefnherbergi með fataskáp.
Baðherbergi er með “walk-in” sturtu með hertu gleri, handklæðaofni og upphengdu salerni, svarbrún innrétting með viðaráferð og speglaskápur með lýsingu. Blöndunartæki úr byssybláu stáli. Innbyggð blöndunartæki í sturtu.
Í baðherbergi er afmörkuð ljós innrétting fyrir fyrir þvottavél og þurrkara.
Sérgeymsla er í kjallara ásamt sameiginlegum hjóla- og vagnageymslum.
Hlíðarhorn er glæsileg 3-5 hæða nýbygging með 10 stigahúsum sem mynda hring um opinn innri garð. Í Hlíðarhorni verða 195 fjölbreyttar íbúðir, 2-5 herbergi að stærð. Hver íbúð er með svölum, þaksvölum eða sérafnotareit í innri garði og hönnuð til að hámarka náttúrulega birtu og nýtingu fermetra. Allar íbúðir eru fullloftræstar og lögð er sérstök áhersla á hljóðvist í hverri íbúð. Byggingin er staðsteypt, einangruð og klædd með mismunandi lituðum álklæðningum og bambus, með gluggum úr ál/við og undir byggingu er bílakjallari með fyrirkomulagi samnýtingarar. Hlíðarhorn er miðsvæðis í Reykjavík, í póstnúmeri 102, á jaðri Hlíðahverfis og Þingholta, við fætur Öskjuhlíðar. Öll helsta þjónusta er því í göngu/hjólafæri, samgöngur, skólar, íþróttaaðstaða, iðandi mannlíf og stórir vinnustaðir.
www.eignavakt.is
www.verdmat.is
Góð ráð fyrir kaupendur / seljendur
ATH. Kaupendur munu greiða skipulagsgjald þegar það verður innheimt sem er 0,3 % af endanlegu brunabótamati.
Myndir í auglýsingu geta verið úr annari íbúð með sama innréttingaþema.
Gjöld sem kaupandi þarf að standa straum af vegna kaupanna:
1. Stimpilgjald af kaupsamningi - 0.8% af heildarfasteignamati / 1.6% fyrir lögaðila. (0.4% við fyrstu kaup einstaklinga).
2. Þinglýsingagjald af kaupsamningi, veðskuldabréfi, veðleyfi o.fl.- kr. 3,800 af hverju skjali.
3. Lántökugjald lánastofnunar - samanber gjaldskrá viðkomandi lánastofnunar.
4. Umsýsluþóknun til fasteignasölu, sbr.kauptilboð.
5. Kaupendur munu greiða skipulagsgjald þegar það verður innheimt sem er 0,3 % af endanlegu brunabótamati.
Um skoðunarskyldu:
Í lögum um fasteignakaup nr. 40/2002 er kveðið á um ríka skoðunarskyldu kaupenda á fasteignum. Pálsson fasteignasala bendir væntanlegum kaupendum á að kynna sér vel ástand fasteigna við skoðun og fyrir tilboðsgerð og ef þurfa þykir að leita til sérfræðinga um nánari ástandsskoðun.
Birt stærð er 111,1 m² þar af 5,9 m² geymsla í kjallara.
* 45m² þaksvalir.
* Quartz-steinn á borðum og milli skápa í eldhúsi
* Vandaðar innréttingar og tæki
* Frábær staðsetning
Nánari upplýsingar varðandi kaupmöguleika, eignina og skoðun fást hjá:
Pálsson fasteignasölu, [email protected] S. 764-7474
Nánari lýsing:
Íbúðin skiptist í anddyri, eldhús og stofu/borðstofu í opnu rými með útgengi á stórar þaksvalir, 2 svefnherbergi og baðherbergi. Íbúðin afhendist með hágæða sérsmíðuðum innréttingum frá Nobilia/GKS, raftækjum frá Siemens, Witt og Temptechí hæsta gæðaflokki, vönduðum ítölskum blöndunartækjum frá Mariner Rubinetterie og sterku og vönduðu gólfefni frá Álfaborg. Íbúðin er útbúin sér loftræsikerfi með varmaendurvinnslu. Innréttingarþema íbúðar er Hlíð 2.
Í anddyri er góður fataskápur. Gengið er úr anddyri beint inn í rúmgott alrými; eldhús og stofu/borðstofu með útgengi á rúmlega 45 fm þaksvalir með tengi fyrir heitan pott.
Eldhús er með svarbrúnni eldhúsinnréttingu með viðaráferð, vinnueyju, svartur quartz-steinn er á borðum og milli skápa og hágæða ítölsk blöndunartæki úr byssubláu stáli. Öll eldhúsraftæki af hæsta gæðaflokki. Innbyggður ísskápur, uppþvottavél og Vínkælir.
Rúmgott hjónaherbergi með góðum fataskápum.
Svefnherbergi með fataskáp.
Baðherbergi er með “walk-in” sturtu með hertu gleri, handklæðaofni og upphengdu salerni, svarbrún innrétting með viðaráferð og speglaskápur með lýsingu. Blöndunartæki úr byssybláu stáli. Innbyggð blöndunartæki í sturtu.
Í baðherbergi er afmörkuð ljós innrétting fyrir fyrir þvottavél og þurrkara.
Sérgeymsla er í kjallara ásamt sameiginlegum hjóla- og vagnageymslum.
Hlíðarhorn er glæsileg 3-5 hæða nýbygging með 10 stigahúsum sem mynda hring um opinn innri garð. Í Hlíðarhorni verða 195 fjölbreyttar íbúðir, 2-5 herbergi að stærð. Hver íbúð er með svölum, þaksvölum eða sérafnotareit í innri garði og hönnuð til að hámarka náttúrulega birtu og nýtingu fermetra. Allar íbúðir eru fullloftræstar og lögð er sérstök áhersla á hljóðvist í hverri íbúð. Byggingin er staðsteypt, einangruð og klædd með mismunandi lituðum álklæðningum og bambus, með gluggum úr ál/við og undir byggingu er bílakjallari með fyrirkomulagi samnýtingarar. Hlíðarhorn er miðsvæðis í Reykjavík, í póstnúmeri 102, á jaðri Hlíðahverfis og Þingholta, við fætur Öskjuhlíðar. Öll helsta þjónusta er því í göngu/hjólafæri, samgöngur, skólar, íþróttaaðstaða, iðandi mannlíf og stórir vinnustaðir.
www.eignavakt.is
www.verdmat.is
Góð ráð fyrir kaupendur / seljendur
ATH. Kaupendur munu greiða skipulagsgjald þegar það verður innheimt sem er 0,3 % af endanlegu brunabótamati.
Myndir í auglýsingu geta verið úr annari íbúð með sama innréttingaþema.
Gjöld sem kaupandi þarf að standa straum af vegna kaupanna:
1. Stimpilgjald af kaupsamningi - 0.8% af heildarfasteignamati / 1.6% fyrir lögaðila. (0.4% við fyrstu kaup einstaklinga).
2. Þinglýsingagjald af kaupsamningi, veðskuldabréfi, veðleyfi o.fl.- kr. 3,800 af hverju skjali.
3. Lántökugjald lánastofnunar - samanber gjaldskrá viðkomandi lánastofnunar.
4. Umsýsluþóknun til fasteignasölu, sbr.kauptilboð.
5. Kaupendur munu greiða skipulagsgjald þegar það verður innheimt sem er 0,3 % af endanlegu brunabótamati.
Um skoðunarskyldu:
Í lögum um fasteignakaup nr. 40/2002 er kveðið á um ríka skoðunarskyldu kaupenda á fasteignum. Pálsson fasteignasala bendir væntanlegum kaupendum á að kynna sér vel ástand fasteigna við skoðun og fyrir tilboðsgerð og ef þurfa þykir að leita til sérfræðinga um nánari ástandsskoðun.