Upplýsingar
Verðsaga
Byggt 1956
54,3 m²
2 herb.
1 baðherb.
2 svefnh.
Sérinngangur
Lýsing
Hamarstígur 38, 600 Akureyri.
Einstaklega falleg og skemmtileg 3ja herbergja 54,3m2 risíbúð sem nýlega hefur verið endurnýjuð.
*** Mjög góð íbúð sem vert er að skoða ***
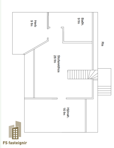
Eignin skiptist í:
Forstofu, stigauppgöngu, stofu, borðstofu, tvö svefnherbergi og baðherbergi með þvottaaðstöðu.
Gólfefni eru vínilparket á allri íbúðinni.
Forstofa og stigauppganga, flísar eru á palli sem komið er inná, fatahengi, stigi steyptur með Vínilparketi.
Eldhús/borðstofa og stofa með vínilparketi á gólfi, dökk innrétting, bakaraofn í vinnuhæð. Fallegir gluggar.
Herbergin eru tvö bæði mjög rúmgóð með Vínilparket á gólfi.
Baðherbergi með Vínilparekti á gólfi, hvítri innréttingu, upphengt salerni og sturta. Tengi er fyrir þvottavél, fallegur opnanlegur gluggi.
Helstu upplýsingar um framkvæmdir undanfarna ára eru:
Þak: hækkað um 10 cm,10 cm steinull ofaná og nýtt stál árið 2009.
Ris: Rifið innan úr risinu, einangrað með 15 cm steinull og sett rakavarnaplast 2024. íbúð endursmíðuð og endurinnréttuð að fullu 2024-2025. skipt um útidyrahurð 2024.
Lagnir: Allar frárenslislagnir endurnýjaðar á árunum 2019-2024. Allar ofna og neysluvatnslagnir endurnýjaðar á árunum 2019-2024. Brunnur settur norðan við hús, dren lagt norðan vestan og að hluta til sunnan við hús. Tilbúin stútur í brunni til að legga dren Austan og sunnan við hús.
Heitt og kalt vatn, rafmagn og ljósleiðari lagt nýtt inní hús 2023.
Rafmagn: Aðaltafla endurnýjuð 2019, Ný aukatafla sett í risi 2024. Allar raflagnir endurnýjaðar í risi 2024.
Utanhúss: Jarðvegsskipti að norðan og vestan 2022 og sett möl. Sólpallur smíðaður norðan við hús 2022. Perlumöl sett norðan og vestan við hús 2025.
Húsið heilmálað að utan 2022. Vinsamlega athugið að teikningar sem fylgja með eru einungis til að sýna fyrirkomulagið.
- Eignin er í einkasölu á FS fasteignir
Einstaklega falleg og skemmtileg 3ja herbergja 54,3m2 risíbúð sem nýlega hefur verið endurnýjuð.
*** Mjög góð íbúð sem vert er að skoða ***
Eignin skiptist í:
Forstofu, stigauppgöngu, stofu, borðstofu, tvö svefnherbergi og baðherbergi með þvottaaðstöðu.
Gólfefni eru vínilparket á allri íbúðinni.
Forstofa og stigauppganga, flísar eru á palli sem komið er inná, fatahengi, stigi steyptur með Vínilparketi.
Eldhús/borðstofa og stofa með vínilparketi á gólfi, dökk innrétting, bakaraofn í vinnuhæð. Fallegir gluggar.
Herbergin eru tvö bæði mjög rúmgóð með Vínilparket á gólfi.
Baðherbergi með Vínilparekti á gólfi, hvítri innréttingu, upphengt salerni og sturta. Tengi er fyrir þvottavél, fallegur opnanlegur gluggi.
Helstu upplýsingar um framkvæmdir undanfarna ára eru:
Þak: hækkað um 10 cm,10 cm steinull ofaná og nýtt stál árið 2009.
Ris: Rifið innan úr risinu, einangrað með 15 cm steinull og sett rakavarnaplast 2024. íbúð endursmíðuð og endurinnréttuð að fullu 2024-2025. skipt um útidyrahurð 2024.
Lagnir: Allar frárenslislagnir endurnýjaðar á árunum 2019-2024. Allar ofna og neysluvatnslagnir endurnýjaðar á árunum 2019-2024. Brunnur settur norðan við hús, dren lagt norðan vestan og að hluta til sunnan við hús. Tilbúin stútur í brunni til að legga dren Austan og sunnan við hús.
Heitt og kalt vatn, rafmagn og ljósleiðari lagt nýtt inní hús 2023.
Rafmagn: Aðaltafla endurnýjuð 2019, Ný aukatafla sett í risi 2024. Allar raflagnir endurnýjaðar í risi 2024.
Utanhúss: Jarðvegsskipti að norðan og vestan 2022 og sett möl. Sólpallur smíðaður norðan við hús 2022. Perlumöl sett norðan og vestan við hús 2025.
Húsið heilmálað að utan 2022. Vinsamlega athugið að teikningar sem fylgja með eru einungis til að sýna fyrirkomulagið.
- Eignin er í einkasölu á FS fasteignir
Ár
Fasteignamat
Kaupverð
Stærð
Fermetraverð
9. jan. 2015
9.260.000 kr.
30.000.000 kr.
199.1 m²
150.678 kr.
Byggt á upplýsingum úr Þjóðskrá Íslands frá 2006-2026