Upplýsingar
Byggt 2026
228,7 m²
6 herb.
3 baðherb.
4 svefnh.
Þvottahús
Bílskúr
Lýsing
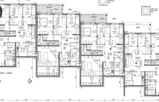
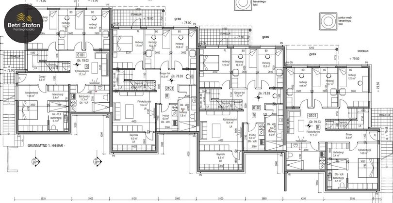
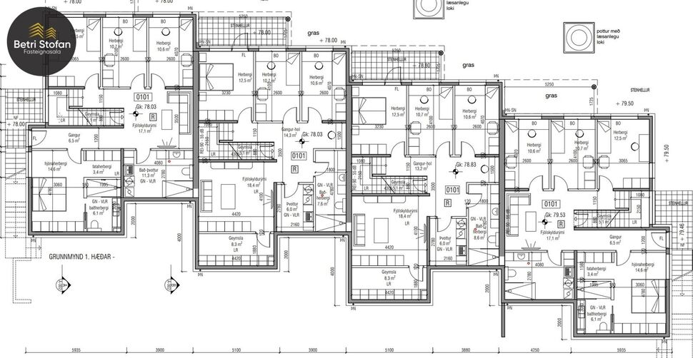
Betri Stofan og Guðbjörg Guðmundsdóttir löggiltur fasteignasali kynna: Einstaklega vel skipulagt endaraðhús með innbyggðum bílskúr, við Stekkholt 61, í Hnoðraholti, Garðabæ. Eignin er skráð 228,3 fm og skiptist í fjögur svefnherbergi, sjónvarpshol, 3 baðherbergi, stofu, borðstofu, eldhús, þvottahús, anddyri og bílskúr. Frá stofu er gengið út á góðar suðaustur svalir.
Eignin skilast tilbúin til innréttinga að innan skv. skilalýsingu. Að utan skilast húsin frágengin, einangruð að utan og klædd álklæðningu, Velfac ál/tré gluggar.
Lóð skilast grófjöfnuð samkvæmt skilalýsingu.
Nálgist skilalýsingu og nánari upplýsingar hér:
Guðbjörg Guðmundsdóttir í síma 8995533 [email protected]
Nánari lýsing:
Stekkholt 61 er endaraðhús í nýrri fjögurra húsa raðhúsalengju sem nú er í byggingu í Hnoðraholti Garðabæ. Frá götu er aðkoma að efri hæð hússins, þar er innbyggður bílskúr, stórt anddyri, stofa, eldhús, borðstofa og baðherbergi. Úr stofu er gengið út á góðar svalir til suðausturs.
Á neðri hæð er hjónasvíta með sér baðherbergi og fataherbergi, þrjú rúmgóð barnaherbergi, öll yfir 10fm., sjónvarpshol, rúmgott baðherbergi þar sem gert er ráð fyrir þvottaaðstöðu og skolvaski. Af gangi neðri hæðar er útgengt í garð.
Um er ræða glæsileg og vel skipulögð raðhús í nýju og skemmtilegu hverfi í Garðabæ. Hnoðraholt er vel staðsett nýtt hverfi þaðan sem stutt er í alla helstu þjónustu og gott aðgengi er að útivistasvæðum Garðabæjar svo sem Heiðmörk, Vífilstaðavatni og golfvelli GKG.
Nánari upplýsingar Veita:
Guðbjörg Guðmundsdóttir í síma 899 5533 netfang: [email protected]
Þórhallur Biering Guðjónsson í síma 896 8232 netfang: [email protected]
Jason Kristinn Ólafsson í síma 775 1515 netfang: [email protected]
Eignin skilast tilbúin til innréttinga að innan skv. skilalýsingu. Að utan skilast húsin frágengin, einangruð að utan og klædd álklæðningu, Velfac ál/tré gluggar.
Lóð skilast grófjöfnuð samkvæmt skilalýsingu.
Nálgist skilalýsingu og nánari upplýsingar hér:
Guðbjörg Guðmundsdóttir í síma 8995533 [email protected]
Nánari lýsing:
Stekkholt 61 er endaraðhús í nýrri fjögurra húsa raðhúsalengju sem nú er í byggingu í Hnoðraholti Garðabæ. Frá götu er aðkoma að efri hæð hússins, þar er innbyggður bílskúr, stórt anddyri, stofa, eldhús, borðstofa og baðherbergi. Úr stofu er gengið út á góðar svalir til suðausturs.
Á neðri hæð er hjónasvíta með sér baðherbergi og fataherbergi, þrjú rúmgóð barnaherbergi, öll yfir 10fm., sjónvarpshol, rúmgott baðherbergi þar sem gert er ráð fyrir þvottaaðstöðu og skolvaski. Af gangi neðri hæðar er útgengt í garð.
Um er ræða glæsileg og vel skipulögð raðhús í nýju og skemmtilegu hverfi í Garðabæ. Hnoðraholt er vel staðsett nýtt hverfi þaðan sem stutt er í alla helstu þjónustu og gott aðgengi er að útivistasvæðum Garðabæjar svo sem Heiðmörk, Vífilstaðavatni og golfvelli GKG.
Nánari upplýsingar Veita:
Guðbjörg Guðmundsdóttir í síma 899 5533 netfang: [email protected]
Þórhallur Biering Guðjónsson í síma 896 8232 netfang: [email protected]
Jason Kristinn Ólafsson í síma 775 1515 netfang: [email protected]
Gjöld sem kaupandi þarf að standa straum af ef að kaupum verður:
1. Stimpilgjald af fasteignamati fasteignar er 0.8%, en 0,4% fyrir fyrstu kaup og 1,6% fyrir lögaðila.
2. Þinglýsingargjald: kaupsamningi, skuldabréfi, veðleyfi, afsali o.s.frv. er kr. 3.800 af hverju skjali.
3. Lántökukostnaður samkvæmt verðskrá viðkomandi lánastofnunar.
4. Umsýslugjald til fasteignasölu skv. gjaldskrá.
Skoðunarskylda kaupanda:
Í lögum um fasteignakaup nr. 40/2002 er kveðið á um ríka skoðunarskyldu kaupenda á fasteignum. Betri Stofan fasteignasala bendir væntanlegum kaupendum á að kynna sér vel ástand fasteigna við skoðun og fyrir tilboðsgerð og ef þurfa þykir að leita til sérfræðinga um nánari ástandsskoðun.