Löggiltir fasteignasalar innan Félags fasteignasala:
Ástþór Reynir Guðmundsson
Vigdís R. S. Helgadóttir
Guðbjörg Helga Jóhannesdóttir
Gylfi Jens Gylfason
Sigrún Matthea Sigvaldadóttir
Sveinn Gíslason
Páll Guðmundsson
Þórarinn Arnar Sævarsson
Berglind Hólm Birgisdóttir
Þorsteinn Gíslason
Guðrún Lilja Tryggvadóttir
Brynjar Ingólfsson
Guðný Þorsteinsdóttir
Bjarni Blöndal
Þorsteinn Ólafs
Þórdís Björk Davíðsdóttir
Jóhann Kristinn Jóhannesson
Bjarný Björg Arnórsdóttir
Salvör Þóra Davíðsdóttir
Magga Sigríður Gísladóttir
Upplýsingar
Verðsaga
Byggt 1973
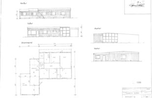
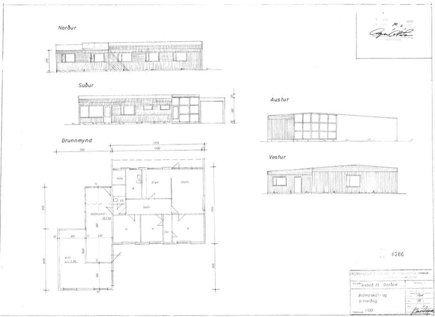
199,3 m²
6 herb.
1 baðherb.
4 svefnh.
Þvottahús
Bílskúr
Útsýni
Sérinngangur
Lýsing
RE/MAX og Guðrún Lilja löggiltur fasteignasali kynna í einkasölu: Einstaklega fallegt og töluvert endurnýjað 199,3 fm. einbýlishús á einni hæð með innbyggðum bílskúr á vinsælum stað í Garðabænum. Íbúðarými er skráð 157,0 fm. og skiptist í forstofu, glæsilega arinstofu/setustofu, opið hol, eldhús, borðstofu og stofu, fjögur rúmgóð svefnherbergi (þar af eitt innaf bílskúr), baðherbergi með saunu og þvottahús. Bílskúr er skráður 42,3 fm. með auka rými fyrir innan. Mjög falleg aðkoma er að húsinu, stór og gróinn garður með verönd til suðurs og gott útsýni er norðanmegin við húsið.
Falleg og vel skipulögð eign í rólegu og eftirsóttu hverfi í Garðabænum. Góð staðsetning, stutt er í skóla, íþróttasvæði og alla helstu þjónustu.
Nánari upplýsingar veitir Guðrún Lilja Tryggvadóttir, löggiltur fasteignasali í síma 867-1231, [email protected]
KÍKTU Í HEIMSÓKN OG SJÁÐU EIGN Í 3D MEÐ ÞVÍ AÐ SMELLA HÉR
FÁÐU SÖLUYFIRLIT MILLILIÐALAUST MEÐ ÞVÍ AÐ SMELLA HÉR
Nánari lýsing:
Forstofa er falleg og björt, flísalögð og með góðum fataskápum. Hiti er í gólfum. Aukin lofthæð í rými og gengið þaðan í arinstofu og innangengt í bílskúr.
Arinstofan er mjög glæsileg, björt og há til lofts. Flísar eru á gólfum með gólfhita. Fallegur hlaðinn arinn sem gefur góðan hita í rýmið. Úr arinstofu er útgengt út á ca. 20,0 fm. viðarverönd og bakgarð til norðurs.
Eldhús er með fallegri hvítri innréttingu með góðu skápaplássi. Helluborð og vifta, bökunarofn og uppþvottavél í vinnuhæð. Parket á gólfum. Stór og bjartur gluggi hleypir fallegri birtu inn.
Borðstofa og stofa er í björtu og opnu rými með útgengt út á ca. 50 fm. viðarverönd til suðurs. Veröndin er einstaklega skjólsæl og sólar nýtur vel yfir daginn og fram á kvöld.
Svefnherbergin eru fjögur. Í íbúðarhluta hússins eru þrjú rúmgóð svefnherbergi, parket á gólfum. Fataskápar eru í hjónaherbergi en milli barnaherbergja er fataherbergi, innangengt frá báðum herbergjum. Að auki er fjórða svefnherbergið staðsett inn af bílskúr.
Baðherbergi er með vaskinnréttingu með góðu skápaplássi, upphengdu salerni og hornbaðkari með sturtu. Flísalagt er í hólf og gólf, jafnframt er góður opnanlegur gluggi. Inn af baðherbergi er viðarklædd sána með opnanlegum glugga.
Þvottahús er með hvítri vaskinnréttingu, flísar á gólfi.
Bílskúr er skráður 42,3 fm. að stærð. Fullbúinn með hita og rafmagni, rafmagnshurðaopnara og geymslulofti. Inn af bílskúr er opið rými (léttir milliveggir) með parketlögðu svefnherbergi fyrir innan. Bjart og rúmgott svefnherbergi með fallegu útsýni til norðurs.
Garðurinn er einstakur með fallegum og fjölbreyttum gróðri. Stærð lóðar alls er 972,0 fm. Falleg aðkoma er að húsinu, hellulagt bílaplan með snjóbræðslu og hleðslustöð fyrir rafmagnsbíl.
Framkvæmdir og viðhald síðustu ára:
2025: Gluggar yfirfarnir og gler endurnýjað með sprossum á milli (fyrir utan bílskúr og arinstofu). Nýtt þakskyggni og nýjar þakrennur. Sett ný útiljós með tímastillingu. Ný rafmagnstafla, tenglar og rofar endurnýjaðir að hluta. Ný hitaveitugrind með gólfhitastýringu í forstofu, arinstofu og baðherbergi ásamt thermostati.
2023: Ný viðarverönd rúmlega 50 fm. smíðuð fyrir framan hús.
2022: Sett upp þriggja fasa Zaptec hleðslustöð á húsvegg við bílaplan.
2019: Húsið málað að utan.
2008: Framkvæmdir og endurbætur á viðbyggingu, ytra og innra byrði lagað. Ný gólfefni (flísar) og settur gólfhiti. Gluggar og gler endurnýjað. Þak endurnýjað á viðbyggingu og bílskúr
2005: Eldhús endurnýjað af fyrri eigendum.
2001: Baðherbergi endurnýjað af fyrri eigendum.
1983: Viðbygging/garðskáli byggður milli húss og bílskúrs.
Einstaklega fallegt og sjarmerandi timburhús á eftirsóttum stað í Garðabænum. Allar upplýsingar veitir Guðrún Lilja Tryggvadóttir, löggiltur fasteignasali í síma 867-1231, [email protected]
Gjöld sem kaupandi þarf að standa straum af vegna kaupanna: 1. Stimpilgjald af kaupsamningi - 0,8%(einstaklingar) 1.6% (lögaðilar) af heildarfasteignamati. 2. Þinglýsingargjald af kaupsamningi, veðskuldabréfi, mögulegu veðleyfi o.fl. - kr. 2.700 af hverju skjali. 3. Lántökugjald lánastofnunar - almennt 45-75 þús.kr. Nánari upplýsingar á heimasíðu lánastofnana. 4. Umsýslugjald til fasteignasölu kr. 69.900 mvsk.
Falleg og vel skipulögð eign í rólegu og eftirsóttu hverfi í Garðabænum. Góð staðsetning, stutt er í skóla, íþróttasvæði og alla helstu þjónustu.
Nánari upplýsingar veitir Guðrún Lilja Tryggvadóttir, löggiltur fasteignasali í síma 867-1231, [email protected]
KÍKTU Í HEIMSÓKN OG SJÁÐU EIGN Í 3D MEÐ ÞVÍ AÐ SMELLA HÉR
FÁÐU SÖLUYFIRLIT MILLILIÐALAUST MEÐ ÞVÍ AÐ SMELLA HÉR
Nánari lýsing:
Forstofa er falleg og björt, flísalögð og með góðum fataskápum. Hiti er í gólfum. Aukin lofthæð í rými og gengið þaðan í arinstofu og innangengt í bílskúr.
Arinstofan er mjög glæsileg, björt og há til lofts. Flísar eru á gólfum með gólfhita. Fallegur hlaðinn arinn sem gefur góðan hita í rýmið. Úr arinstofu er útgengt út á ca. 20,0 fm. viðarverönd og bakgarð til norðurs.
Eldhús er með fallegri hvítri innréttingu með góðu skápaplássi. Helluborð og vifta, bökunarofn og uppþvottavél í vinnuhæð. Parket á gólfum. Stór og bjartur gluggi hleypir fallegri birtu inn.
Borðstofa og stofa er í björtu og opnu rými með útgengt út á ca. 50 fm. viðarverönd til suðurs. Veröndin er einstaklega skjólsæl og sólar nýtur vel yfir daginn og fram á kvöld.
Svefnherbergin eru fjögur. Í íbúðarhluta hússins eru þrjú rúmgóð svefnherbergi, parket á gólfum. Fataskápar eru í hjónaherbergi en milli barnaherbergja er fataherbergi, innangengt frá báðum herbergjum. Að auki er fjórða svefnherbergið staðsett inn af bílskúr.
Baðherbergi er með vaskinnréttingu með góðu skápaplássi, upphengdu salerni og hornbaðkari með sturtu. Flísalagt er í hólf og gólf, jafnframt er góður opnanlegur gluggi. Inn af baðherbergi er viðarklædd sána með opnanlegum glugga.
Þvottahús er með hvítri vaskinnréttingu, flísar á gólfi.
Bílskúr er skráður 42,3 fm. að stærð. Fullbúinn með hita og rafmagni, rafmagnshurðaopnara og geymslulofti. Inn af bílskúr er opið rými (léttir milliveggir) með parketlögðu svefnherbergi fyrir innan. Bjart og rúmgott svefnherbergi með fallegu útsýni til norðurs.
Garðurinn er einstakur með fallegum og fjölbreyttum gróðri. Stærð lóðar alls er 972,0 fm. Falleg aðkoma er að húsinu, hellulagt bílaplan með snjóbræðslu og hleðslustöð fyrir rafmagnsbíl.
Framkvæmdir og viðhald síðustu ára:
2025: Gluggar yfirfarnir og gler endurnýjað með sprossum á milli (fyrir utan bílskúr og arinstofu). Nýtt þakskyggni og nýjar þakrennur. Sett ný útiljós með tímastillingu. Ný rafmagnstafla, tenglar og rofar endurnýjaðir að hluta. Ný hitaveitugrind með gólfhitastýringu í forstofu, arinstofu og baðherbergi ásamt thermostati.
2023: Ný viðarverönd rúmlega 50 fm. smíðuð fyrir framan hús.
2022: Sett upp þriggja fasa Zaptec hleðslustöð á húsvegg við bílaplan.
2019: Húsið málað að utan.
2008: Framkvæmdir og endurbætur á viðbyggingu, ytra og innra byrði lagað. Ný gólfefni (flísar) og settur gólfhiti. Gluggar og gler endurnýjað. Þak endurnýjað á viðbyggingu og bílskúr
2005: Eldhús endurnýjað af fyrri eigendum.
2001: Baðherbergi endurnýjað af fyrri eigendum.
1983: Viðbygging/garðskáli byggður milli húss og bílskúrs.
Einstaklega fallegt og sjarmerandi timburhús á eftirsóttum stað í Garðabænum. Allar upplýsingar veitir Guðrún Lilja Tryggvadóttir, löggiltur fasteignasali í síma 867-1231, [email protected]
Gjöld sem kaupandi þarf að standa straum af vegna kaupanna: 1. Stimpilgjald af kaupsamningi - 0,8%(einstaklingar) 1.6% (lögaðilar) af heildarfasteignamati. 2. Þinglýsingargjald af kaupsamningi, veðskuldabréfi, mögulegu veðleyfi o.fl. - kr. 2.700 af hverju skjali. 3. Lántökugjald lánastofnunar - almennt 45-75 þús.kr. Nánari upplýsingar á heimasíðu lánastofnana. 4. Umsýslugjald til fasteignasölu kr. 69.900 mvsk.
Ár
Fasteignamat
Kaupverð
Stærð
Fermetraverð
8. jún. 2018
61.050.000 kr.
75.000.000 kr.
199.3 m²
376.317 kr.
Byggt á upplýsingum úr Þjóðskrá Íslands frá 2006-2026