Upplýsingar
Verðsaga
Byggt 2022
166,2 m²
3 herb.
2 baðherb.
2 svefnh.
Þvottahús
Bílskúr
Sérinngangur
Lýsing
ALLT fasteignasala kynnir í einkasölu eignina Asparlaut 4, birt stærð 166.2 fm. Eignin er staðsett í hinu vinsæla Hlíðarhverfi Reykjanesbæ.
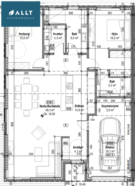
Um er að ræða glæsilegt, vandað og vel skipulagt, 166.2 fm staðsteypt parhús, þar af innangengur bílskúr 27 fm með bílhleðslustöð og geymslulofti.
Gengið er inn í forstofu sem er með rúmgóðum fataskáp, frá forstofu er innangengt inn í bílskúr. Þar er gengið inn í glæsilegt opið rými með gólfsíðum gluggum sem sameinar eldhús, borðstofu og stofu.
Eldhús er með fallegum innréttingum, kæliskáp með frystihólfi, uppþvottavél og combi ofn, eyju með helluborði með gufugleypi, vínkæli, og vask.
Hjónasvíta með fataherbergi og sérbaðherbergi sem er flísalagt með walk in sturtu og svörtum blöndunartækjum.
Rúmgott barnaherbergi er með fataskáp.
Þvottahús er flísalagt með innréttingum frá GKS
Gestasalerni er flísalagt í hólf og gólf með fallegum innréttingum og walk inn sturtu og svörtum blöndunartækjum, útgengt er út af baðherbergi út á 80 fm pall með heitum potti.
Allar innréttingar í eiginni eru vandaðar og sérsmíðaðar frá GKS.
Nánari upplýsingar veita:
Halla Vilbergsdóttir Nemi til löggildingar fasteignasala, í síma 7727930, tölvupóstur [email protected].
Páll Þorbjörnsson löggiltur fasteignasali, í síma 560-5501, tölvupóstur [email protected].
Nánari lýsing eignar:
Forstofa: Flísalögð með fataskáp og innan gengt í bílskúr með geymslu
Stofa: Björt með útgengt á stóra verönd, opið rými með eldhúsi
Eldhús: Rúmgott með stórri eyju. Innrétting frá GKS. Helluborð með gufugleypi, vínkælir, kæliskápur með frystihólfi, uppþvottavél og combi ofn
Baðherbergi: Flísalagt, innrétting frá GKS, útgengt á baklóð með 80fm palli og heitum potti
Hjónasvíta: Fataherbergi og sér baðherbergi með sturtu
Barnaherbergi: Rúmgott með fataskáp
Þvottahús: Flísalagt með innréttingum frá GKS
Lóð er að fullu frágengin með sólpöllum / gönguleiðum sem umlyggja eignina. Mjög vandaður heitur pottur á 80 fm sólpalli. Byggingaraðili BYGG. Byggingarár er 2022 en var innréttuð árið 2023.
Vertu tilbúin(n) þegar rétta eignin birtist – skráðu eignina þín í dag og tryggðu þér forskotið.
ALLT fasteignasala er staðsett á eftirfarandi stöðum:
Hafnargötu 91, 230 Reykjanesbæ - Reykjavíkurveg 66, 220 Hafnarfirði
Kostnaður kaupanda:
1. Af gjaldskyldum skjölum skal greiða 0,8% af fasteignamati ef kaupandi er einstaklingur, fyrstukaupendur 0,4% og 1,6% af fasteignamati ef kaupandi er lögaðili.
2. Þinglýsingargjald á hvert skjal er kr. 2.700.
3. Lántökugjald fer eftir verðskrá lánastofnunar hverju sinni.
4. Umsýslugjald til ALLT fasteignasölu er kr. 69.440 m/vsk.
5. Sé um nýbyggingu um að ræða greiðir kaupandi skipulagsgjald, 0,3% af brunabótamati, þegar það er lagt á.
Skoðunar- og aðgæsluskylda kaupanda:
Í lögum um fasteignakaup nr. 40/2002 er kveðið á um ríka skoðunarskyldu kaupenda á fasteignum. ALLT fasteignasala vill beina því til væntanlegs kaupanda að kynna sér ástand fasteignar vel við skoðun og fyrir tilboðsgerð. Ef þurfa þykir er ráðlagt að leita til sérfræðifróðra aðila. Forsendur söluyfirlits: Söluyfirlit þetta er samið af fasteignasala til samræmis við lög um sölu fasteigna og skipa nr. 70/2015. Upplýsingar þær sem koma fram í söluyfirliti þessu eru sóttar í opinberar skrár, frá seljanda og eftir atvikum til húsfélags. Seljandi veitir upplýsingar um eignina til samræmis við upplýsingaskyldu sína sbr. lög um fasteignakaup nr. 40/2002. Fasteignasali sannreynir að upplýsingar séu réttar með sjónskoðun á eigninni. Fasteignasali getur ekki fullyrt um ástand og eiginleika þeirra hluta fasteignar sem ekki eru aðgengilegir og sjást ekki með berum augum, eins og t.d. lagnir, dren, skólp og þak.
Um er að ræða glæsilegt, vandað og vel skipulagt, 166.2 fm staðsteypt parhús, þar af innangengur bílskúr 27 fm með bílhleðslustöð og geymslulofti.
Gengið er inn í forstofu sem er með rúmgóðum fataskáp, frá forstofu er innangengt inn í bílskúr. Þar er gengið inn í glæsilegt opið rými með gólfsíðum gluggum sem sameinar eldhús, borðstofu og stofu.
Eldhús er með fallegum innréttingum, kæliskáp með frystihólfi, uppþvottavél og combi ofn, eyju með helluborði með gufugleypi, vínkæli, og vask.
Hjónasvíta með fataherbergi og sérbaðherbergi sem er flísalagt með walk in sturtu og svörtum blöndunartækjum.
Rúmgott barnaherbergi er með fataskáp.
Þvottahús er flísalagt með innréttingum frá GKS
Gestasalerni er flísalagt í hólf og gólf með fallegum innréttingum og walk inn sturtu og svörtum blöndunartækjum, útgengt er út af baðherbergi út á 80 fm pall með heitum potti.
Allar innréttingar í eiginni eru vandaðar og sérsmíðaðar frá GKS.
Nánari upplýsingar veita:
Halla Vilbergsdóttir Nemi til löggildingar fasteignasala, í síma 7727930, tölvupóstur [email protected].
Páll Þorbjörnsson löggiltur fasteignasali, í síma 560-5501, tölvupóstur [email protected].
Nánari lýsing eignar:
Forstofa: Flísalögð með fataskáp og innan gengt í bílskúr með geymslu
Stofa: Björt með útgengt á stóra verönd, opið rými með eldhúsi
Eldhús: Rúmgott með stórri eyju. Innrétting frá GKS. Helluborð með gufugleypi, vínkælir, kæliskápur með frystihólfi, uppþvottavél og combi ofn
Baðherbergi: Flísalagt, innrétting frá GKS, útgengt á baklóð með 80fm palli og heitum potti
Hjónasvíta: Fataherbergi og sér baðherbergi með sturtu
Barnaherbergi: Rúmgott með fataskáp
Þvottahús: Flísalagt með innréttingum frá GKS
Lóð er að fullu frágengin með sólpöllum / gönguleiðum sem umlyggja eignina. Mjög vandaður heitur pottur á 80 fm sólpalli. Byggingaraðili BYGG. Byggingarár er 2022 en var innréttuð árið 2023.
Vertu tilbúin(n) þegar rétta eignin birtist – skráðu eignina þín í dag og tryggðu þér forskotið.
ALLT fasteignasala er staðsett á eftirfarandi stöðum:
Hafnargötu 91, 230 Reykjanesbæ - Reykjavíkurveg 66, 220 Hafnarfirði
Kostnaður kaupanda:
1. Af gjaldskyldum skjölum skal greiða 0,8% af fasteignamati ef kaupandi er einstaklingur, fyrstukaupendur 0,4% og 1,6% af fasteignamati ef kaupandi er lögaðili.
2. Þinglýsingargjald á hvert skjal er kr. 2.700.
3. Lántökugjald fer eftir verðskrá lánastofnunar hverju sinni.
4. Umsýslugjald til ALLT fasteignasölu er kr. 69.440 m/vsk.
5. Sé um nýbyggingu um að ræða greiðir kaupandi skipulagsgjald, 0,3% af brunabótamati, þegar það er lagt á.
Skoðunar- og aðgæsluskylda kaupanda:
Í lögum um fasteignakaup nr. 40/2002 er kveðið á um ríka skoðunarskyldu kaupenda á fasteignum. ALLT fasteignasala vill beina því til væntanlegs kaupanda að kynna sér ástand fasteignar vel við skoðun og fyrir tilboðsgerð. Ef þurfa þykir er ráðlagt að leita til sérfræðifróðra aðila. Forsendur söluyfirlits: Söluyfirlit þetta er samið af fasteignasala til samræmis við lög um sölu fasteigna og skipa nr. 70/2015. Upplýsingar þær sem koma fram í söluyfirliti þessu eru sóttar í opinberar skrár, frá seljanda og eftir atvikum til húsfélags. Seljandi veitir upplýsingar um eignina til samræmis við upplýsingaskyldu sína sbr. lög um fasteignakaup nr. 40/2002. Fasteignasali sannreynir að upplýsingar séu réttar með sjónskoðun á eigninni. Fasteignasali getur ekki fullyrt um ástand og eiginleika þeirra hluta fasteignar sem ekki eru aðgengilegir og sjást ekki með berum augum, eins og t.d. lagnir, dren, skólp og þak.
Vertu tilbúin(n) þegar rétta eignin birtist – Fáðu tilboð í söluferlið - Skráðu eignina þína í dag og tryggðu þér forskotið.
Ár
Fasteignamat
Kaupverð
Stærð
Fermetraverð
8. feb. 2024
91.350.000 kr.
110.000.000 kr.
166.2 m²
661.853 kr.
Byggt á upplýsingum úr Þjóðskrá Íslands frá 2006-2026