Upplýsingar
Verðsaga
Byggt 1928
123,3 m²
4 herb.
1 baðherb.
3 svefnh.
Þvottahús
Útsýni
Sameiginl. inngangur
Lýsing
Guðný Ösp lgf., s. 665-8909 og fasteignasalan TORG kynnir rúmgóða fjögurra herbergja íbúð við Tjarnargötu 10a
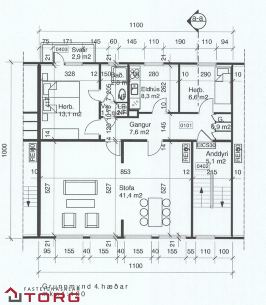
Umrædd eign er staðsett á 4. hæð með einstöku útsýni í átt að ráðhúsi Reykjavíkur og Hallgrímskirkju.
Eignin er skv. fasteignaskrá HMS skráð 123,3 m2 en þar af er 26,2 m2 íbúðar herbergi í kjallara sem er skráð sem geymsla.
Nánari lýsing:
Frá stigapalli er komið inn í forstofugang, en einungis ein íbúð er á hverjum stigapalli.
Herbergi II: parket á gólfi.
Eldhús: flísar á gólfi.
Stofa- og borðstofa: parket á gólfi, opið og bjart rými með fallegu útsýni í átt að ráðhúsi Reykjavíkur og Hallgrímskirkju.
Baðherbergi: flísar á gólfi og veggjum, sturta og upphent salerni.
Hjónaherbergi I: parket á gólfi, fataskápur, gengið út á suð-vestur svalir.
Herbergi/geymsla III: í kjallara hússins er 26,2 m2 rými sem er skráð sem geymsla en er búið að breyta í herbergi, þar sem hægt er að setja upp baðherbergi( búið að setja upp vegg og allar lagnir til staðar og niðurföll).
Þvottahús: sameiginlegt þvottahús staðsett í kjallara hússins.
Í kjallara hússins er útgengi út í afgirtan bakgarð, þar sem er búið að setja upp pall.
Umrædd eign er einstaklega vel staðsett í hjarta 101 og er í göngufæri við alla helstu þjónustu- og verslun, ásamt fjölda veitingastaða.
Nánari upplýsingar veitir: Guðný Ösp, lgf. s. 665-8909 eða [email protected]
Gjöld sem kaupandi þarf að standa straum af vegna kaupa á fasteign: Stimpilgjald af kaupsamningi: 0.8% af fasteignamati eignar fyrir einstaklinga en 1.6% fyrir lögaðila en 0.4% ef um fyrstu íbúðarkaup er að ræða.
Þinglýsingargjald: kaupsamningi, skuldabréfi, veðleyfi, afsali o.s.frv. er kr. 2.700 af hverju skjali. Umsýslugjald fasteignasölu, samkvæmt gjaldskrá.
Skoðunarskylda kaupanda: Í lögum um fasteignakaup nr. 40/2002 er kveðið á um ríka skoðunarskyldu kaupenda á fasteignum. Fasteignasala bendir væntanlegum kaupendum á að kynna sér vel ástand fasteigna við skoðun og fyrir tilboðsgerð og ef þurfa þykir að leita til sérfræðinga um nánari ástandsskoðun. Söluyfirlit er samið af fasteignasala í samræmi við ákvæði laga nr. 70/2015. Þær upplýsingar sem fram koma í söluyfirliti þessu eru sóttar í opinberar skrár, til seljanda sjálfs og eftir atvikum til húsfélags. Seljandi veitir upplýsingar um eign í samræmi við upplýsingaskyldu laga um fasteignakaup nr. 40/2002. Fasteignasali sannreynir að þær upplýsingar séu réttar með sjónskoðun á eigninni. Fasteignasali getur ekki fullyrt um ástand og eiginleika þeirra hluta fasteigna sem ekki eru aðgengilegir og sjást ekki berum augum, t.d. lagnir, dren, skólp og þak.
Umrædd eign er staðsett á 4. hæð með einstöku útsýni í átt að ráðhúsi Reykjavíkur og Hallgrímskirkju.
Eignin er skv. fasteignaskrá HMS skráð 123,3 m2 en þar af er 26,2 m2 íbúðar herbergi í kjallara sem er skráð sem geymsla.
Nánari lýsing:
Frá stigapalli er komið inn í forstofugang, en einungis ein íbúð er á hverjum stigapalli.
Herbergi II: parket á gólfi.
Eldhús: flísar á gólfi.
Stofa- og borðstofa: parket á gólfi, opið og bjart rými með fallegu útsýni í átt að ráðhúsi Reykjavíkur og Hallgrímskirkju.
Baðherbergi: flísar á gólfi og veggjum, sturta og upphent salerni.
Hjónaherbergi I: parket á gólfi, fataskápur, gengið út á suð-vestur svalir.
Herbergi/geymsla III: í kjallara hússins er 26,2 m2 rými sem er skráð sem geymsla en er búið að breyta í herbergi, þar sem hægt er að setja upp baðherbergi( búið að setja upp vegg og allar lagnir til staðar og niðurföll).
Þvottahús: sameiginlegt þvottahús staðsett í kjallara hússins.
Í kjallara hússins er útgengi út í afgirtan bakgarð, þar sem er búið að setja upp pall.
Umrædd eign er einstaklega vel staðsett í hjarta 101 og er í göngufæri við alla helstu þjónustu- og verslun, ásamt fjölda veitingastaða.
Nánari upplýsingar veitir: Guðný Ösp, lgf. s. 665-8909 eða [email protected]
Gjöld sem kaupandi þarf að standa straum af vegna kaupa á fasteign: Stimpilgjald af kaupsamningi: 0.8% af fasteignamati eignar fyrir einstaklinga en 1.6% fyrir lögaðila en 0.4% ef um fyrstu íbúðarkaup er að ræða.
Þinglýsingargjald: kaupsamningi, skuldabréfi, veðleyfi, afsali o.s.frv. er kr. 2.700 af hverju skjali. Umsýslugjald fasteignasölu, samkvæmt gjaldskrá.
Skoðunarskylda kaupanda: Í lögum um fasteignakaup nr. 40/2002 er kveðið á um ríka skoðunarskyldu kaupenda á fasteignum. Fasteignasala bendir væntanlegum kaupendum á að kynna sér vel ástand fasteigna við skoðun og fyrir tilboðsgerð og ef þurfa þykir að leita til sérfræðinga um nánari ástandsskoðun. Söluyfirlit er samið af fasteignasala í samræmi við ákvæði laga nr. 70/2015. Þær upplýsingar sem fram koma í söluyfirliti þessu eru sóttar í opinberar skrár, til seljanda sjálfs og eftir atvikum til húsfélags. Seljandi veitir upplýsingar um eign í samræmi við upplýsingaskyldu laga um fasteignakaup nr. 40/2002. Fasteignasali sannreynir að þær upplýsingar séu réttar með sjónskoðun á eigninni. Fasteignasali getur ekki fullyrt um ástand og eiginleika þeirra hluta fasteigna sem ekki eru aðgengilegir og sjást ekki berum augum, t.d. lagnir, dren, skólp og þak.
Ár
Fasteignamat
Kaupverð
Stærð
Fermetraverð
16. des. 2021
58.200.000 kr.
60.900.000 kr.
123.3 m²
493.917 kr.
14. des. 2015
39.300.000 kr.
49.000.000 kr.
123.3 m²
397.405 kr.
Byggt á upplýsingum úr Þjóðskrá Íslands frá 2006-2026