Upplýsingar
Verðsaga
Byggt 1989
69,3 m²
2 herb.
1 baðherb.
1 svefnh.
Lyfta
Lýsing
Hraunhamar kynnir snyrtilega 2ja herbergja íbúð á 1.hæð við Hjallabraut 33 í húsi fyrir 60 ára og eldri.
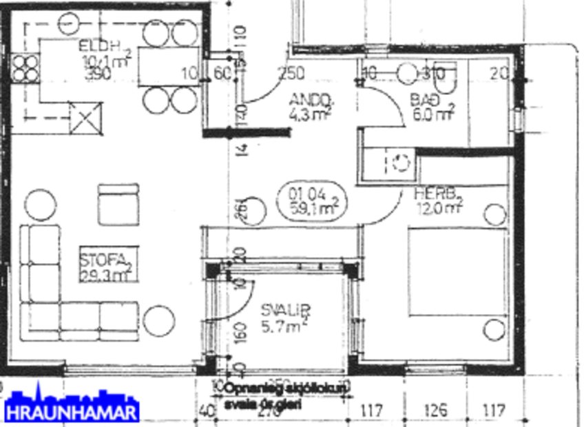
Íbúðin er skráð skv. HMS 69,3 fm auk 8,8 fm geymslu á jarðhæð.
Nánari lýsing:
Forstofa með góðum forstofu skápum, gangur/hol,
Rúmgott baðherbergi , með sturtuaðstöðu, innrétting og aðstaða fyrir þvottavél og þurkara.
Alrýmið er einstaklega bjart og saman stendur af borðstofu, stofu og eldhúsi. Þaðan er útgengt út á svalir.
Svefnherbergi með góðum fataskápum,
Laus við kaupsamning.
Mjög góð sameign, mötuneyti er á staðnum og er matur þar allra virka vel.
Stutt í alla þjónustu. Mjög góð eign, vel staðsett í þessu vinsæla þjónustuhúsi eldri borgara.
Nánari upplýsingar veitir : Einar Örn Örn Ágústsson löggiltur fasteignasali s. 788-7979 - [email protected]
Skoðunarskylda:
Í lögum um fasteignakaup nr. 40/2002 er kveðið á um ríka skoðunarskyldu kaupenda á fasteignum. Hraunhamar fasteignasala vill benda væntanlegum kaupendum á að kynna sér vel ástand fasteigna fyrir kauptilboðsgerð og ef þurfa þykir að leita til sérfræðinga fyrir nánari ástandsskoðun.
Gjöld sem kaupandi þarf að standa straum af vegna kaupanna:
1. Stimpilgjald af kaupsamningi, fyrstu kaup (0,4%), almenn kaup (0,8%), lögaðilar (1,6%) af heildarfasteignamati.
2. Þinglýsingargjald af kaupsamningi, veðskuldabréfi, mögulegu veðleyfi o.fl. – kr. 2.700 kr. af hverju skjali.
3. Lántökugjald lánastofnunar er skv. verðskrá viðkomandi lánastofnunar.
4. Umsýslugjald til fasteignasölu skv. þjónustusamningi
Hraunhamar er elsta fasteignasala Hafnarfjarðar, stofnuð 1983
Hraunhamar, í fararbroddi í 40 ár. – Hraunhamar.is
Íbúðin er skráð skv. HMS 69,3 fm auk 8,8 fm geymslu á jarðhæð.
Nánari lýsing:
Forstofa með góðum forstofu skápum, gangur/hol,
Rúmgott baðherbergi , með sturtuaðstöðu, innrétting og aðstaða fyrir þvottavél og þurkara.
Alrýmið er einstaklega bjart og saman stendur af borðstofu, stofu og eldhúsi. Þaðan er útgengt út á svalir.
Svefnherbergi með góðum fataskápum,
Laus við kaupsamning.
Mjög góð sameign, mötuneyti er á staðnum og er matur þar allra virka vel.
Stutt í alla þjónustu. Mjög góð eign, vel staðsett í þessu vinsæla þjónustuhúsi eldri borgara.
Nánari upplýsingar veitir : Einar Örn Örn Ágústsson löggiltur fasteignasali s. 788-7979 - [email protected]
Skoðunarskylda:
Í lögum um fasteignakaup nr. 40/2002 er kveðið á um ríka skoðunarskyldu kaupenda á fasteignum. Hraunhamar fasteignasala vill benda væntanlegum kaupendum á að kynna sér vel ástand fasteigna fyrir kauptilboðsgerð og ef þurfa þykir að leita til sérfræðinga fyrir nánari ástandsskoðun.
Gjöld sem kaupandi þarf að standa straum af vegna kaupanna:
1. Stimpilgjald af kaupsamningi, fyrstu kaup (0,4%), almenn kaup (0,8%), lögaðilar (1,6%) af heildarfasteignamati.
2. Þinglýsingargjald af kaupsamningi, veðskuldabréfi, mögulegu veðleyfi o.fl. – kr. 2.700 kr. af hverju skjali.
3. Lántökugjald lánastofnunar er skv. verðskrá viðkomandi lánastofnunar.
4. Umsýslugjald til fasteignasölu skv. þjónustusamningi
Hraunhamar er elsta fasteignasala Hafnarfjarðar, stofnuð 1983
Hraunhamar, í fararbroddi í 40 ár. – Hraunhamar.is
Ár
Fasteignamat
Kaupverð
Stærð
Fermetraverð
3. maí. 2011
13.700.000 kr.
16.700.000 kr.
69.3 m²
240.981 kr.
30. jan. 2007
14.550.000 kr.
18.300.000 kr.
69.3 m²
264.069 kr.
Byggt á upplýsingum úr Þjóðskrá Íslands frá 2006-2026