Upplýsingar
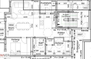
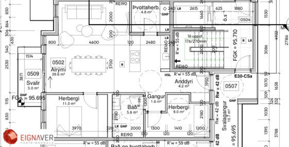
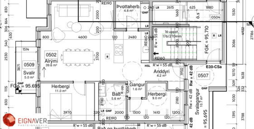
95,7 m²
3 herb.
1 baðherb.
2 svefnh.
Þvottahús
Sameiginl. inngangur
Bílastæði
Lýsing
EIGNAVER 460-6060
LÆKJARMÓI 6, íbúð 502
Glæsileg þriggja herbergja 86,4fm. íbúð á 5. hæð í Lækjarmóa 6. Sérgeymsla í kjallara er 9,3 fm., samtals er eignin 95,7 fm..
Íbúðinni fylgir stæði í bílgeymslu.
LÆKJARMÓI 6-8 ERU SÉRLEGA BJARTAR OG VANDAÐAR ÍBÚÐIR SEM AFHENDAST FULLBÚNAR HAUSTIÐ 2026.
Byggingaraðili er SS byggir, sjá nánar: www.ssbyggir.is
Nánari lýsing;
Flísar eru á gólfum baðherbergis og þvottahúss en vinilparket er á öðrum gólfum.
Innihurðir eru hvítar harðplastlagðar, nema á efstu hæðum, þar er viðarútlit.
Innréttingar eru allar sérsmíðaðar af Tak innréttingum og eru í ljósum lit nema á efstu hæðum, þar er viðarútlit.
Með eldhúsinnréttingu fylgir bakarofn, helluborð frá AEG og blöndunartæki frá Hansa.
Fataskápar eru í öllum herbergjum skv. teikningum.
Steypt verönd er við allar íbúðir á fyrstu hæð í báðum húsum.
Svalir eru á suð-vestur hlið íbúða í húsi nr. 8 og í suður á húsi nr. 6.
Svalirnar eru með steyptu gólfi en svalahandrið úr pólýhúðuðu stáli.
Annað :
Loftskiptibúnaður, tryggir ferskt og heilnæmt inniloft allt árið um kring.
Gólfsíðir gluggar, hleypir aukinni dagsbirtu inn og eykur upplifun rýmisins.
Hljóðplötur í lofti, bætir hljóðvist og dregur úr bergmáli.
Rennihurðir á svölum, sem bætir flæði og tengingu á milli inni- og útirýmis.
Heitt neysluvatn fer í gegnum varmaskipti.
Lækjarmói 6 og 8 eru tvö hús með sameiginlegum bílakjallara,
Sameiginleg hjóla og vagnageymsla er í kjallara, ásamt geymslum í séreign. Flestum íbúðum fylgir stæði í bílageymslu.
Aukin lofthæð er í íbúðum á efstu hæðum auk þess að þar er óbein lýsing að hluta.
Til að sjá teikningar, smellið hér.
Skilalýsing, smellið hér.
www.ssbyggir.is
Nánari upplýsingar veita:
Arnar s: 898-7011 / [email protected]
Tryggvi s: 862-7919 / [email protected]
ATH: bókið skoðun hjá ofangreindum sölumönnum eða í síma 460-6060, [email protected]
LÆKJARMÓI 6, íbúð 502
Glæsileg þriggja herbergja 86,4fm. íbúð á 5. hæð í Lækjarmóa 6. Sérgeymsla í kjallara er 9,3 fm., samtals er eignin 95,7 fm..
Íbúðinni fylgir stæði í bílgeymslu.
LÆKJARMÓI 6-8 ERU SÉRLEGA BJARTAR OG VANDAÐAR ÍBÚÐIR SEM AFHENDAST FULLBÚNAR HAUSTIÐ 2026.
Byggingaraðili er SS byggir, sjá nánar: www.ssbyggir.is
Nánari lýsing;
Flísar eru á gólfum baðherbergis og þvottahúss en vinilparket er á öðrum gólfum.
Innihurðir eru hvítar harðplastlagðar, nema á efstu hæðum, þar er viðarútlit.
Innréttingar eru allar sérsmíðaðar af Tak innréttingum og eru í ljósum lit nema á efstu hæðum, þar er viðarútlit.
Með eldhúsinnréttingu fylgir bakarofn, helluborð frá AEG og blöndunartæki frá Hansa.
Fataskápar eru í öllum herbergjum skv. teikningum.
Steypt verönd er við allar íbúðir á fyrstu hæð í báðum húsum.
Svalir eru á suð-vestur hlið íbúða í húsi nr. 8 og í suður á húsi nr. 6.
Svalirnar eru með steyptu gólfi en svalahandrið úr pólýhúðuðu stáli.
Annað :
Loftskiptibúnaður, tryggir ferskt og heilnæmt inniloft allt árið um kring.
Gólfsíðir gluggar, hleypir aukinni dagsbirtu inn og eykur upplifun rýmisins.
Hljóðplötur í lofti, bætir hljóðvist og dregur úr bergmáli.
Rennihurðir á svölum, sem bætir flæði og tengingu á milli inni- og útirýmis.
Heitt neysluvatn fer í gegnum varmaskipti.
Lækjarmói 6 og 8 eru tvö hús með sameiginlegum bílakjallara,
Sameiginleg hjóla og vagnageymsla er í kjallara, ásamt geymslum í séreign. Flestum íbúðum fylgir stæði í bílageymslu.
Aukin lofthæð er í íbúðum á efstu hæðum auk þess að þar er óbein lýsing að hluta.
Til að sjá teikningar, smellið hér.
Skilalýsing, smellið hér.
www.ssbyggir.is
Nánari upplýsingar veita:
Arnar s: 898-7011 / [email protected]
Tryggvi s: 862-7919 / [email protected]
ATH: bókið skoðun hjá ofangreindum sölumönnum eða í síma 460-6060, [email protected]