Löggiltir fasteignasalar innan Félags fasteignasala:
Hannes Steindórsson
Bogi Molby Pétursson
Guðrún Antonsdóttir
Heimir Hallgrímsson
Hrafnkell P. H. Pálmason
Viðar Marinósson
Elías Haraldsson
Kristján Þórir Hauksson
Albert Bjarni Úlfarsson
Ragnar Þorsteinsson
Þórey Ólafsdóttir
Andri Freyr Halldórsson
Upplýsingar
Verðsaga
Byggt 2002
82 m²
3 herb.
1 baðherb.
2 svefnh.
Þvottahús
Opið hús: 2. mars 2026
kl. 17:30
til 18:00
Opið hús: Klapparhlíð 28, 270 Mosfellsbær, Íbúð merkt: 01 02 03. Eignin verður sýnd mánudaginn 2. mars 2026 milli kl. 17:30 og kl. 18:00.
Lýsing
Hannes Steindórsson kynnir með stolti: Fallega 82,0 fm, þriggja herbergja íbúð á annari hæð með sérinngangi af svölum við Klapparhlíð 28 Mosfellsbæ.
Húsið er klætt með bárumálmklæðningu og harðvið. Sérgeymsla á hæðinni. Þetta er falleg og björt íbúð á vinsælum stað í Mosfellsbæ.
Íbúðin hefur verið endurnýjuð að hluta, gólfefni baðherbergi ofl. Stutt í skóla, leikskóla, sund og líkamsræktarstöð.
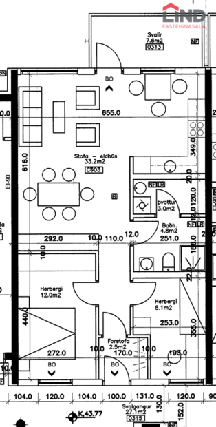
Forstofa: Flísalögð með fatahengi.
Eldhús: Viðar innrétting með miklu skápaplássi.
Stofa og borðstofa: Samliggjandi parketlagðar stofur með útgengi út á suðvestur svalir með fallegu útsýni.
Baðherbergi: Mjög fallegt og endurnýjað baðherbergi með stórri sturtu með glerskilrúmi (endurnýjað árið 2016), eikarinnrétting með fallegri handlaug.
Svefnherbergi 1: Parketlagt svefnherbergi með skápum.
Svefnherbergi 2: Parketlagt svefnherbergi með skáp.
Þvottahús: Sér þvottahús aflokað inn af baðherbergi.
Geymsla: Sér geymsla á hæðinni.
Allar upplýsingar veitir: Hannes Steindórsson s.699-5008 [email protected]
Húsið er klætt með bárumálmklæðningu og harðvið. Sérgeymsla á hæðinni. Þetta er falleg og björt íbúð á vinsælum stað í Mosfellsbæ.
Íbúðin hefur verið endurnýjuð að hluta, gólfefni baðherbergi ofl. Stutt í skóla, leikskóla, sund og líkamsræktarstöð.
Forstofa: Flísalögð með fatahengi.
Eldhús: Viðar innrétting með miklu skápaplássi.
Stofa og borðstofa: Samliggjandi parketlagðar stofur með útgengi út á suðvestur svalir með fallegu útsýni.
Baðherbergi: Mjög fallegt og endurnýjað baðherbergi með stórri sturtu með glerskilrúmi (endurnýjað árið 2016), eikarinnrétting með fallegri handlaug.
Svefnherbergi 1: Parketlagt svefnherbergi með skápum.
Svefnherbergi 2: Parketlagt svefnherbergi með skáp.
Þvottahús: Sér þvottahús aflokað inn af baðherbergi.
Geymsla: Sér geymsla á hæðinni.
Allar upplýsingar veitir: Hannes Steindórsson s.699-5008 [email protected]
Ár
Fasteignamat
Kaupverð
Stærð
Fermetraverð
5. júl. 2016
24.850.000 kr.
36.500.000 kr.
108.3 m²
337.027 kr.
5. júl. 2016
24.850.000 kr.
37.000.000 kr.
108.3 m²
341.644 kr.
Byggt á upplýsingum úr Þjóðskrá Íslands frá 2006-2026