Upplýsingar
144,9 m²
4 herb.
1 baðherb.
3 svefnh.
Þvottahús
Bílskúr
Sérinngangur
Lýsing
ÁRBORGIR FASTEIGNASALA kynna:
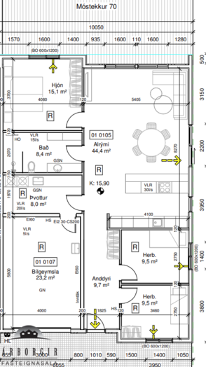
Móstekkur 70
Tilbúið til afhendingar við kaupsamning
Um er að ræða skemmtilega skipulagt endaraðhús á einni hæð á góðum stað skammt frá Stekkjarskóla.
Húsið er timburhús klætt að utan með lituðu járni og litaðri álklæðningu í bland, þak er kraftsperruþak klætt með lituðu járni.
Heildarstærð eignarinnar er 144,9m2 og er sambyggður bílskúr 26,4m2 þar af.
Að innan skiptist hún í anddyri, þvottahús, baðherbergi, 3 svefnherbergi, stofu/eldhús auk bílskúrs.
Húsið afhendist tilbúið að utan og fokhelt að innan.
Lóðin skilast grófjöfnuð og er búið er að skipta um jarðveg í bílaplani og setja í mulning.
Nánari upplýsingar og skilalýsing á skrifstofu Árborga.
[email protected]/4824800
Móstekkur 70
Tilbúið til afhendingar við kaupsamning
Um er að ræða skemmtilega skipulagt endaraðhús á einni hæð á góðum stað skammt frá Stekkjarskóla.
Húsið er timburhús klætt að utan með lituðu járni og litaðri álklæðningu í bland, þak er kraftsperruþak klætt með lituðu járni.
Heildarstærð eignarinnar er 144,9m2 og er sambyggður bílskúr 26,4m2 þar af.
Að innan skiptist hún í anddyri, þvottahús, baðherbergi, 3 svefnherbergi, stofu/eldhús auk bílskúrs.
Húsið afhendist tilbúið að utan og fokhelt að innan.
Lóðin skilast grófjöfnuð og er búið er að skipta um jarðveg í bílaplani og setja í mulning.
Nánari upplýsingar og skilalýsing á skrifstofu Árborga.
[email protected]/4824800