Upplýsingar
Verðsaga
Byggt 2006
119,8 m²
3 herb.
1 baðherb.
2 svefnh.
Þvottahús
Sameiginl. inngangur
Bílastæði
Lyfta
Lýsing
Háborg fasteignasala og Jórunn lögg.fasteingnasali kynna í einkasölu: Sérlega falleg rúmgóð og björt 119,8 fm íbúð á 1. hæð ásamt sér stæði í bílageymslu, fyrir heldri borgara 50 ára og eldri. Íbúðin er stór 3ja herbergja. Sér þvottahús er í íbúð. Útgangur úr stofu, er á sér afgirta timbur verönd í garði. Húsið er álklætt og því nær viðhaldslítið að utan. Afhending samkomulag. Sýnum samdægurs.
Birt stærð eignar er 119,8 fm samkvæmt HMS, þar af er 8,3 fm geymsla. Fasteignamat eignar er kr. 94.700.000-
Um er að ræða einstaklega glæsilega íbúð á frábærum stað. Í byggð þar sem ekki eru mjög háar byggingar en góðir göngustígar og góð þjónusta í hverfinu. Jóns hús í næsta húsi, þar sem öll helsta þjónusta er veitt af Das og sveitafélaginu.
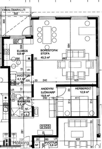
Eignin skipar: forstofu, sjónvarpshol, 2. svefnherbergi, stofu/borðstofu, eldhús, baðherbergi, þvottahús og geymslu í kjallara. Úr stofu er gengið út á afgirta verönd. Eigninni fylgir bílastæði í lokuðum bílakjallara.
Nánari lýsing á eigninni: Þegar komið er inn í íbúðina er rúmgóð opin forstofu með góðum fataskápum. Úr forstofu er komið inn í hol sem er nýtt í dag sem sjónvaprshol. Sér þvottahús innan íbúðar með góðri vinnuaðstöðu. Baðherbergið er með góðri snyrtiaðstöðu, sturta og innrétting undir handlaug með speglaskápi fyrir ofan handlaug. Svefnherbergin 2 eru bæði rúmgóð og björt og annað þeirra með skápum. Eldhúsið er hannað í U með ljósri innréttingu. Í eldhúsi er góður borðkrókur við vegg. Eigninni fylgir góð geymsla í kjallara og stæði í bílkjallara.
Húsið: 17. Júní torg, 1-3-5-7, er fjölbýlishús með 66 íbúðum, hannaðar fyrir heldri borgara, eldri en 50.ára.
Húsið er byggt árið 2006 og er steinsteypt. I meginatriðum skiptist húsið í tvo hluta, 6 hæða byggingu og einu stigahúsi og L-laga 4 hæða byggingu með 3 stigahúsum, þessir hlutar eru sambyggðir. Í kjallara eru geymslur ásamt bílageymslu fyrir 48 bíla.
Húsfélag: í húsinu er virkt húsfélag. Ekki eru fyrirhugaðar framkvæmdir eða yfirstandandi.
Stæði í upphitaðri bílageymslu fylgir, merkt B-14 - möguleiki á hleðslustöð í bílageymslu - hleðslustöðvar á bílaplani.
Í kjallara er sér geymsla ásamt sameiginlegri hjólageymslu.
Nánari upplýsingar veitir Jórunn Skúladóttir lögg. fasteignasali, í síma 845-8958, eða tölvupóstur [email protected]
Gjöld sem kaupandi þarf að standa straum af vegna kaupanna:
Stimpilgjald af kaupsamningi sem er hlutfall af fasteignamati. Stimpilgjald er 0,8% fyrir einstaklinga (0,4% við fyrstu kaup) og 1,6% fyrir lögaðila.
Þinglýsingargjald af kaupsamningi, veðskuldabréfum, veðleyfum o.fl. Þinglýsingargjald er kr. 2.700,- fyrir hvert skjal. Lántökugjald lánastofnunar. Um lántökugjald vísast í gjaldskrá viðkomandi lánveitanda. Umsýsluþóknun fasteignasölu skv. gjaldskrá.
Birt stærð eignar er 119,8 fm samkvæmt HMS, þar af er 8,3 fm geymsla. Fasteignamat eignar er kr. 94.700.000-
Um er að ræða einstaklega glæsilega íbúð á frábærum stað. Í byggð þar sem ekki eru mjög háar byggingar en góðir göngustígar og góð þjónusta í hverfinu. Jóns hús í næsta húsi, þar sem öll helsta þjónusta er veitt af Das og sveitafélaginu.
Eignin skipar: forstofu, sjónvarpshol, 2. svefnherbergi, stofu/borðstofu, eldhús, baðherbergi, þvottahús og geymslu í kjallara. Úr stofu er gengið út á afgirta verönd. Eigninni fylgir bílastæði í lokuðum bílakjallara.
Nánari lýsing á eigninni: Þegar komið er inn í íbúðina er rúmgóð opin forstofu með góðum fataskápum. Úr forstofu er komið inn í hol sem er nýtt í dag sem sjónvaprshol. Sér þvottahús innan íbúðar með góðri vinnuaðstöðu. Baðherbergið er með góðri snyrtiaðstöðu, sturta og innrétting undir handlaug með speglaskápi fyrir ofan handlaug. Svefnherbergin 2 eru bæði rúmgóð og björt og annað þeirra með skápum. Eldhúsið er hannað í U með ljósri innréttingu. Í eldhúsi er góður borðkrókur við vegg. Eigninni fylgir góð geymsla í kjallara og stæði í bílkjallara.
Húsið: 17. Júní torg, 1-3-5-7, er fjölbýlishús með 66 íbúðum, hannaðar fyrir heldri borgara, eldri en 50.ára.
Húsið er byggt árið 2006 og er steinsteypt. I meginatriðum skiptist húsið í tvo hluta, 6 hæða byggingu og einu stigahúsi og L-laga 4 hæða byggingu með 3 stigahúsum, þessir hlutar eru sambyggðir. Í kjallara eru geymslur ásamt bílageymslu fyrir 48 bíla.
Húsfélag: í húsinu er virkt húsfélag. Ekki eru fyrirhugaðar framkvæmdir eða yfirstandandi.
Stæði í upphitaðri bílageymslu fylgir, merkt B-14 - möguleiki á hleðslustöð í bílageymslu - hleðslustöðvar á bílaplani.
Í kjallara er sér geymsla ásamt sameiginlegri hjólageymslu.
Nánari upplýsingar veitir Jórunn Skúladóttir lögg. fasteignasali, í síma 845-8958, eða tölvupóstur [email protected]
Gjöld sem kaupandi þarf að standa straum af vegna kaupanna:
Stimpilgjald af kaupsamningi sem er hlutfall af fasteignamati. Stimpilgjald er 0,8% fyrir einstaklinga (0,4% við fyrstu kaup) og 1,6% fyrir lögaðila.
Þinglýsingargjald af kaupsamningi, veðskuldabréfum, veðleyfum o.fl. Þinglýsingargjald er kr. 2.700,- fyrir hvert skjal. Lántökugjald lánastofnunar. Um lántökugjald vísast í gjaldskrá viðkomandi lánveitanda. Umsýsluþóknun fasteignasölu skv. gjaldskrá.
Ár
Fasteignamat
Kaupverð
Stærð
Fermetraverð
13. ágú. 2021
57.550.000 kr.
65.000.000 kr.
119.8 m²
542.571 kr.
14. maí. 2021
57.550.000 kr.
58.000.000 kr.
119.8 m²
484.140 kr.
5. júl. 2017
41.250.000 kr.
52.500.000 kr.
119.8 m²
438.230 kr.
10. sep. 2014
31.450.000 kr.
31.000.000 kr.
119.8 m²
258.765 kr.
Byggt á upplýsingum úr Þjóðskrá Íslands frá 2006-2026