Upplýsingar
Byggt 2026
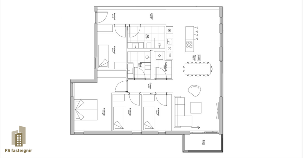
147,7 m²
5 herb.
2 baðherb.
4 svefnh.
Þvottahús
Útsýni
Hjólastólaaðgengi
Bílastæði
Lyfta
Lýsing
Lækjarmói 6 - íbúð 501 - Nýbygging
Glæsileg 5 herbergja fullfrágengin 147,7m2 íbúð með sér þvottahúsi á 5. hæð í nýju fallegu fjölbýlishúsi sem er staðsett í nýju íbúðarhverfi, Móahverfi á Akureyri. Áhersla hefur verið lögð á efnisval og fallegt útlit, lyfta og bílakjallari.
* Loftskiptibúnaður * Hljóðplötur í lofti, betri hljóðvist * Gólfsíðir gluggar * Rennihurð á svölum * Gólfhiti
Eignin skiptist í forstofu, eldhús, borðstofu og stofu, í opnu rými, fjögur svefnherbergi, tvö baðherbergi og þvottahús ásamt sér geymslu og bílastæði í kjallara.
Forstofa með vinilparketi á gólfi, fataskápur.
Eldhús, borðstofa og stofa eru í opnu rými, falleg sérsmíðuð innrétting frá TAK innréttinum, eyja með eldavél, eldhústæki eru frá AEG. Rennihurð út á svalir.
Herbergin eru fjögur öll með Vínilparketi á gólfum og fataksápum.
Baðherbergi eru tvö með góðum innréttingum, spegill með lýsingu, sturtur með glerskilrúmum. Flísar á gólfi og hluta af veggjum.
Þvottahús með flísum á gólfi.
- Byggingaraðilinn, SS Byggir. Sjá heimasíðu SS - www.ssbyggir.is
- Aukin lofthæð er í allri íbúðinni.
- Óbein lýsing er á völdum stöðum innan íbúðar.
- Hljóðdempandi loftadúkur er í alrými íbúðar. Hljóðdempandi loftaplötur í öðrum rýmum, fyrir utan baðherbergi og þvottahús.
- Ljósleiðari og mynddyrasími fylgir.
- Íbúðinni fylgir stæði í rúmgóðri bílageymslu merkt B 31.
- Íbúðin afhendist með sérsmíðuðum innréttingum frá TAK innréttingum.
- Hljóðdempandi vínilparket er á gólfum á alrými og herbergjum. Flísar á gólfum baðherbergis og þvottahúss.
- Sérgeymsla í kjallara sem er 15,3m2 að stærð.
- Íbúðin afhendist fullfrágengin.
- Svalagangur- aðgengi að íbúðinni er um sér svalagang framan við íbúðina.
Til afhendingar vorið 2026
Kaupandi greiðir skipulagsgjald.
Smelltu hér fyrir nánari skilalýsingu
Nánari upplýsingar veita:
Friðrik Sigþórsson sími 694-4220 [email protected]
Svala Jónsdóttir sími 663-5260 [email protected]
Glæsileg 5 herbergja fullfrágengin 147,7m2 íbúð með sér þvottahúsi á 5. hæð í nýju fallegu fjölbýlishúsi sem er staðsett í nýju íbúðarhverfi, Móahverfi á Akureyri. Áhersla hefur verið lögð á efnisval og fallegt útlit, lyfta og bílakjallari.
* Loftskiptibúnaður * Hljóðplötur í lofti, betri hljóðvist * Gólfsíðir gluggar * Rennihurð á svölum * Gólfhiti
Eignin skiptist í forstofu, eldhús, borðstofu og stofu, í opnu rými, fjögur svefnherbergi, tvö baðherbergi og þvottahús ásamt sér geymslu og bílastæði í kjallara.
Forstofa með vinilparketi á gólfi, fataskápur.
Eldhús, borðstofa og stofa eru í opnu rými, falleg sérsmíðuð innrétting frá TAK innréttinum, eyja með eldavél, eldhústæki eru frá AEG. Rennihurð út á svalir.
Herbergin eru fjögur öll með Vínilparketi á gólfum og fataksápum.
Baðherbergi eru tvö með góðum innréttingum, spegill með lýsingu, sturtur með glerskilrúmum. Flísar á gólfi og hluta af veggjum.
Þvottahús með flísum á gólfi.
- Byggingaraðilinn, SS Byggir. Sjá heimasíðu SS - www.ssbyggir.is
- Aukin lofthæð er í allri íbúðinni.
- Óbein lýsing er á völdum stöðum innan íbúðar.
- Hljóðdempandi loftadúkur er í alrými íbúðar. Hljóðdempandi loftaplötur í öðrum rýmum, fyrir utan baðherbergi og þvottahús.
- Ljósleiðari og mynddyrasími fylgir.
- Íbúðinni fylgir stæði í rúmgóðri bílageymslu merkt B 31.
- Íbúðin afhendist með sérsmíðuðum innréttingum frá TAK innréttingum.
- Hljóðdempandi vínilparket er á gólfum á alrými og herbergjum. Flísar á gólfum baðherbergis og þvottahúss.
- Sérgeymsla í kjallara sem er 15,3m2 að stærð.
- Íbúðin afhendist fullfrágengin.
- Svalagangur- aðgengi að íbúðinni er um sér svalagang framan við íbúðina.
Til afhendingar vorið 2026
Kaupandi greiðir skipulagsgjald.
Smelltu hér fyrir nánari skilalýsingu
Nánari upplýsingar veita:
Friðrik Sigþórsson sími 694-4220 [email protected]
Svala Jónsdóttir sími 663-5260 [email protected]