Upplýsingar
Verðsaga
Byggt 2007
207,3 m²
5 herb.
4 svefnh.
Bílskúr
Útsýni
Sérinngangur
Hjólastólaaðgengi
Lýsing
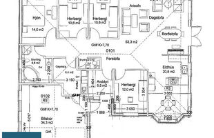
ALLT fasteignasala kynnir í einkasölu eignina Fitjaás 12, Njarðvík, Glæsilegt einbýlishús á góðum stað í ytri Njarðvík með þremur svefnherbergjum auðvelt að vera með fjórða svefnherbergið þar sem rúmgott fataherbergi er.
Heildar stærð eignar er 207,3 m2, þar af er tvöfaldur bílskúr skráður 39,3 m2. Á 763 fm lóð. Gólfhiti er í húsinu með nýlegum stýringum. Rúmgóður aflokaður sólpallur, með léttri yfirbyggingu að hluta ásamt heitum rafmagnspotti. Garðverönd er umhverfis húsið.
Steypt bílaplan með lýsingu og niðurfalli eftir því endilöngu. Rafmagnsopnun í bílskúrshurð.
Nánari upplýsingar veita
Páll Þorbjörnsson Löggiltur fasteignasali Síma 560-5501 Netfang [email protected]
Sigurjón Rúnarsson Löggiltur fasteignasali Síma 560-5524 Netfang [email protected]
Eignin skiptist í forstofu, stofu og eldhús í opnu rými, gengið út á stóran sólpall yfirbyggðan að hluta og heitur pottur. Herbergjagangur með gestasnyrtingu, rúmgóðu baðherbergi ásamt tveimur barnaherbergi. Hjónaherbergi með stóru fataherbergi sem getur líka verið fjórða barnaherbergið. Rúmgott þvottahús. Bílskúr tvöfalldur, lakkað gólf og felli stigi upp á risloft.
Forstofa: Rúmgóð. Svartar flísar á gólfi. Útihurð með skrautgleri í. Góðir skápar. Millihurð með gleri.
Stofa/borðstofa: Opin og björt. Svartar flísar á gólfi.
Eldhús: Svartar flísar á gólfi. Nýleg hvít háglans innrétting. Nýleg eldhústæki. Stór borðeyja, gott skápapláss. Svartar milliflísar ásamt háf. Bogadreginn gluggi.
Gangur: Rúmgóður með svörtum flísum á gólfi. Led ljós í veggjum að neðan.
Herbergi 1: Ljóst parket á gólfi. Góður fataskápur.
Herbergi 2: Ljóst parket á gólfi, góður fataskápur.
Hjónaherbergi: Ljóst parket á gólfi. Innangengt í stórt fataherbergi með rúmgóðum fallegum fataskápum.
Baðherbergi 1: Svartar flísar á gólfi. Flísalagðir veggir. Nýleg innrétting, upphengt salerni, lítil hvít innrétting með handlaug.
Baðherbergi 2: Svartar flísar á gólfi. Ljósar flísar á veggjum. Silfurlitaðar flísar á vegg fyrir ofan vask. Nýleg innréttting. Hornbaðkar ásamt sturtu.
Þvottahús: Virkilega rúmgott með svörtum flísum á gólfi. Nýleg innrétting. Innangengt í bílskúr.
Bílskúr: Tvöfaldur með steyptu gólfi. Bílskúrshurð með rafmagni. Háaloft yfir bílskúr. Útgengt á verönd.
Bílaplan: Steypt með ljósastæði. Einnig er niðurfall sem liggur þvert yfir planið.
Pallur: Rúmgóður með tréverki. Heitur nuddpottur. Fjórar útirafmagnsinnstungur eru staðsettar á palli fyrir útiljós
Bílaplan rúmgott og hellulagt, lóð tyrfð, runnar og strórgríti við lóðarmörk.
ALLT fasteignasala er staðsett á eftirfarandi stöðum:
Hafnargötu 91, 230 Reykjanesbæ - Þverholti 2, 270 Mosfellsbæ
Kostnaður kaupanda:
1. Af gjaldskyldum skjölum skal greiða 0,8% af fasteignamati ef kaupandi er einstaklingur, fyrstukaupendur 0,4% og 1,6% af fasteignamati ef kaupandi er lögaðili.
2. Þinglýsingargjald á hvert skjal er kr. 2.700.
3. Lántökugjald fer eftir verðskrá lánastofnunar hverju sinni.
4. Umsýslugjald til ALLT fasteignasölu er kr. 69.440 m/vsk.
5. Sé um nýbyggingu um að ræða greiðir kaupandi skipulagsgjald, 0,3% af brunabótamati, þegar það er lagt á.
Skoðunar- og aðgæsluskylda kaupanda:
Í lögum um fasteignakaup nr. 40/2002 er kveðið á um ríka skoðunarskyldu kaupenda á fasteignum. ALLT fasteignasala vill beina því til væntanlegs kaupanda að kynna sér ástand fasteignar vel við skoðun og fyrir tilboðsgerð. Ef þurfa þykir er ráðlagt að leita til sérfræðifróðra aðila. Forsendur söluyfirlits: Söluyfirlit þetta er samið af fasteignasala til samræmis við lög um sölu fasteigna og skipa nr. 70/2015. Upplýsingar þær sem koma fram í söluyfirliti þessu eru sóttar í opinberar skrár, frá seljanda og eftir atvikum til húsfélags. Seljandi veitir upplýsingar um eignina til samræmis við upplýsingaskyldu sína sbr. lög um fasteignakaup nr. 40/2002. Fasteignasali sannreynir að upplýsingar séu réttar með sjónskoðun á eigninni. Fasteignasali getur ekki fullyrt um ástand og eiginleika þeirra hluta fasteignar sem ekki eru aðgengilegir og sjást ekki með berum augum, eins og t.d. lagnir, dren, skólp og þak.
Heildar stærð eignar er 207,3 m2, þar af er tvöfaldur bílskúr skráður 39,3 m2. Á 763 fm lóð. Gólfhiti er í húsinu með nýlegum stýringum. Rúmgóður aflokaður sólpallur, með léttri yfirbyggingu að hluta ásamt heitum rafmagnspotti. Garðverönd er umhverfis húsið.
Steypt bílaplan með lýsingu og niðurfalli eftir því endilöngu. Rafmagnsopnun í bílskúrshurð.
Nánari upplýsingar veita
Páll Þorbjörnsson Löggiltur fasteignasali Síma 560-5501 Netfang [email protected]
Sigurjón Rúnarsson Löggiltur fasteignasali Síma 560-5524 Netfang [email protected]
Eignin skiptist í forstofu, stofu og eldhús í opnu rými, gengið út á stóran sólpall yfirbyggðan að hluta og heitur pottur. Herbergjagangur með gestasnyrtingu, rúmgóðu baðherbergi ásamt tveimur barnaherbergi. Hjónaherbergi með stóru fataherbergi sem getur líka verið fjórða barnaherbergið. Rúmgott þvottahús. Bílskúr tvöfalldur, lakkað gólf og felli stigi upp á risloft.
Forstofa: Rúmgóð. Svartar flísar á gólfi. Útihurð með skrautgleri í. Góðir skápar. Millihurð með gleri.
Stofa/borðstofa: Opin og björt. Svartar flísar á gólfi.
Eldhús: Svartar flísar á gólfi. Nýleg hvít háglans innrétting. Nýleg eldhústæki. Stór borðeyja, gott skápapláss. Svartar milliflísar ásamt háf. Bogadreginn gluggi.
Gangur: Rúmgóður með svörtum flísum á gólfi. Led ljós í veggjum að neðan.
Herbergi 1: Ljóst parket á gólfi. Góður fataskápur.
Herbergi 2: Ljóst parket á gólfi, góður fataskápur.
Hjónaherbergi: Ljóst parket á gólfi. Innangengt í stórt fataherbergi með rúmgóðum fallegum fataskápum.
Baðherbergi 1: Svartar flísar á gólfi. Flísalagðir veggir. Nýleg innrétting, upphengt salerni, lítil hvít innrétting með handlaug.
Baðherbergi 2: Svartar flísar á gólfi. Ljósar flísar á veggjum. Silfurlitaðar flísar á vegg fyrir ofan vask. Nýleg innréttting. Hornbaðkar ásamt sturtu.
Þvottahús: Virkilega rúmgott með svörtum flísum á gólfi. Nýleg innrétting. Innangengt í bílskúr.
Bílskúr: Tvöfaldur með steyptu gólfi. Bílskúrshurð með rafmagni. Háaloft yfir bílskúr. Útgengt á verönd.
Bílaplan: Steypt með ljósastæði. Einnig er niðurfall sem liggur þvert yfir planið.
Pallur: Rúmgóður með tréverki. Heitur nuddpottur. Fjórar útirafmagnsinnstungur eru staðsettar á palli fyrir útiljós
Bílaplan rúmgott og hellulagt, lóð tyrfð, runnar og strórgríti við lóðarmörk.
ALLT fasteignasala er staðsett á eftirfarandi stöðum:
Hafnargötu 91, 230 Reykjanesbæ - Þverholti 2, 270 Mosfellsbæ
Kostnaður kaupanda:
1. Af gjaldskyldum skjölum skal greiða 0,8% af fasteignamati ef kaupandi er einstaklingur, fyrstukaupendur 0,4% og 1,6% af fasteignamati ef kaupandi er lögaðili.
2. Þinglýsingargjald á hvert skjal er kr. 2.700.
3. Lántökugjald fer eftir verðskrá lánastofnunar hverju sinni.
4. Umsýslugjald til ALLT fasteignasölu er kr. 69.440 m/vsk.
5. Sé um nýbyggingu um að ræða greiðir kaupandi skipulagsgjald, 0,3% af brunabótamati, þegar það er lagt á.
Skoðunar- og aðgæsluskylda kaupanda:
Í lögum um fasteignakaup nr. 40/2002 er kveðið á um ríka skoðunarskyldu kaupenda á fasteignum. ALLT fasteignasala vill beina því til væntanlegs kaupanda að kynna sér ástand fasteignar vel við skoðun og fyrir tilboðsgerð. Ef þurfa þykir er ráðlagt að leita til sérfræðifróðra aðila. Forsendur söluyfirlits: Söluyfirlit þetta er samið af fasteignasala til samræmis við lög um sölu fasteigna og skipa nr. 70/2015. Upplýsingar þær sem koma fram í söluyfirliti þessu eru sóttar í opinberar skrár, frá seljanda og eftir atvikum til húsfélags. Seljandi veitir upplýsingar um eignina til samræmis við upplýsingaskyldu sína sbr. lög um fasteignakaup nr. 40/2002. Fasteignasali sannreynir að upplýsingar séu réttar með sjónskoðun á eigninni. Fasteignasali getur ekki fullyrt um ástand og eiginleika þeirra hluta fasteignar sem ekki eru aðgengilegir og sjást ekki með berum augum, eins og t.d. lagnir, dren, skólp og þak.
Vertu tilbúin(n) þegar rétta eignin birtist – Fáðu tilboð í söluferlið - Skráðu eignina þína í dag og tryggðu þér forskotið.
Ár
Fasteignamat
Kaupverð
Stærð
Fermetraverð
9. jún. 2021
56.850.000 kr.
73.000.000 kr.
207.3 m²
352.147 kr.
26. júl. 2019
54.250.000 kr.
59.900.000 kr.
207.3 m²
288.953 kr.
8. ágú. 2012
28.700.000 kr.
22.600.000 kr.
207.3 m²
109.021 kr.
Byggt á upplýsingum úr Þjóðskrá Íslands frá 2006-2026