Upplýsingar
Verðsaga
Byggt 2022
182,3 m²
4 herb.
2 baðherb.
4 svefnh.
Þvottahús
Bílskúr
Sérinngangur
Hjólastólaaðgengi
Lýsing
ALLT fasteignasala kynnir í einkasölu eignina Furudalur 13, birt stærð 182.3 fm. Fimmherbergja einbýlishús með tveimur baðherbergjum.
Timbureiningarhús klætt með liggjandi báruklæðningu og viðarklæðningu. Þak er úr kraftsperrum. Byggt 2022.
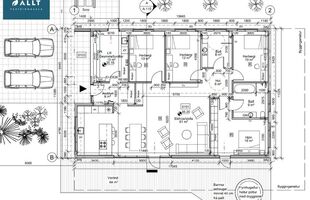
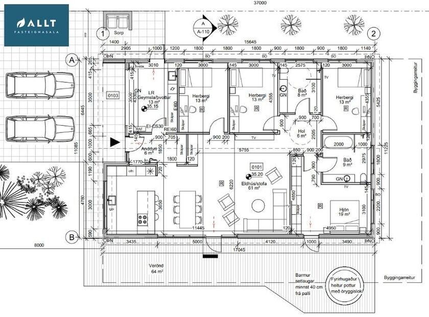
Eignin er mjög vel skipulögð. Skiptist í forstofu, geymslu/þvottahús, eldhús og stofa í opnu rými. Fjögur svefnherbergi og þar af er hjónasvíta með sér baðherbergi. Baðherbergin eru tvö.
Gólfefni eru fljótandi parket og flísar á votrýmum.
Gerðar hafa verið breytingar frá upphaflegu skipulagi eignarinnar. Bílgeymslu hefur verið breytt í herbergi og þvottarhús. Jafnframt hefur rými sem upphaflega átti að vera þvottahúss verið sameinað alrými (stofa/eldhús). Auðvelt er að færa skipulag eignarinnar í upprunalegt horf.
Komið er inn í forstofu, þar á vinstri hönd er gott þvottahús, komið inn í bjart og rúmgott alrými með gólfsíðum gluggum í suður, sem saman stendur af stofu og eldhúsi, frá alrými er gengið inn í allar vistaverur eignarinnar sbr fjögur svefnherbergi og baðherbergi. Eignin er öll mjög rúmgóð og fara allir fermetrar í íbúðarhluta í dag.
Nánari upplýsingar, skoðanabókanir og afhending söluyfirlits veitir: Páll Þorbjörnsson Löggiltur fasteignasali, í síma 560-5501, tölvupóstur [email protected].
Nánari lýsing eignar:
Forstofa með parketi og skáp
Þvottahús/geymsla með góðri innréttingu, aðstaða fyrir þvottavél og þurkara, skolvaskur og golf flísalagt. Útgengni út á norðurhluta lóðar.
Eldhús með innbyggðum bakarofn og örbylgjuofn, vínkæli og span helluborði. Gott vinnupláss og aðstaða fyrir barstóla.
Stofa opin við eldhús, bjart og fallegt rými með niðurteknu lofti og innbyggðri loftalýsingu.
Þrjú barnaherberg og eru þau öll 13 fm að stærð.
Baðherbergi er flísalagt með góðu skápaplássi, walk in sturtu, upphengt salerni og opnanlegum glugga.
Hjónaherbergi er mjög rúmgott alls 19 fm með mjög góðu skápaplássi ásamt rúmgóðu flísalögðu baðherbergi með walk in sturtu, upphengdu salerni og tveimur skolvöskum.
Lóð er tyrfð og bílaplan grófjafnað.
Fallegt og vel skipulagt einbýlishús í Stapaskólahverfi eignin er mjög rúmgóð og sannkallað fjölskylduhús.
Vertu tilbúin(n) þegar rétta eignin birtist – skráðu eignina þín í dag og tryggðu þér forskotið.
ALLT fasteignasala er staðsett á eftirfarandi stöðum:
Hafnargötu 62, 230 Reykjanesbæ - Reykjavíkurveg 66, 220 Hafnarfirði
Kostnaður kaupanda:
1. Af gjaldskyldum skjölum skal greiða 0,8% af fasteignamati ef kaupandi er einstaklingur, fyrstukaupendur 0,4% og 1,6% af fasteignamati ef kaupandi er lögaðili.
2. Þinglýsingargjald á hvert skjal er kr. 3.800.
3. Lántökugjald fer eftir verðskrá lánastofnunar hverju sinni.
4. Umsýslugjald til ALLT fasteignasölu er kr. 69.440 m/vsk.
5. Sé um nýbyggingu um að ræða greiðir kaupandi skipulagsgjald, 0,3% af brunabótamati, þegar það er lagt á.
Skoðunar- og aðgæsluskylda kaupanda:
Í lögum um fasteignakaup nr. 40/2002 er kveðið á um ríka skoðunarskyldu kaupenda á fasteignum. ALLT fasteignasala vill beina því til væntanlegs kaupanda að kynna sér ástand fasteignar vel við skoðun og fyrir tilboðsgerð. Ef þurfa þykir er ráðlagt að leita til sérfræðifróðra aðila. Forsendur söluyfirlits: Söluyfirlit þetta er samið af fasteignasala til samræmis við lög um sölu fasteigna og skipa nr. 70/2015. Upplýsingar þær sem koma fram í söluyfirliti þessu eru sóttar í opinberar skrár, frá seljanda og eftir atvikum til húsfélags. Seljandi veitir upplýsingar um eignina til samræmis við upplýsingaskyldu sína sbr. lög um fasteignakaup nr. 40/2002. Fasteignasali sannreynir að upplýsingar séu réttar með sjónskoðun á eigninni. Fasteignasali getur ekki fullyrt um ástand og eiginleika þeirra hluta fasteignar sem ekki eru aðgengilegir og sjást ekki með berum augum, eins og t.d. lagnir, dren, skólp og þak.
Timbureiningarhús klætt með liggjandi báruklæðningu og viðarklæðningu. Þak er úr kraftsperrum. Byggt 2022.
Eignin er mjög vel skipulögð. Skiptist í forstofu, geymslu/þvottahús, eldhús og stofa í opnu rými. Fjögur svefnherbergi og þar af er hjónasvíta með sér baðherbergi. Baðherbergin eru tvö.
Gólfefni eru fljótandi parket og flísar á votrýmum.
Gerðar hafa verið breytingar frá upphaflegu skipulagi eignarinnar. Bílgeymslu hefur verið breytt í herbergi og þvottarhús. Jafnframt hefur rými sem upphaflega átti að vera þvottahúss verið sameinað alrými (stofa/eldhús). Auðvelt er að færa skipulag eignarinnar í upprunalegt horf.
Komið er inn í forstofu, þar á vinstri hönd er gott þvottahús, komið inn í bjart og rúmgott alrými með gólfsíðum gluggum í suður, sem saman stendur af stofu og eldhúsi, frá alrými er gengið inn í allar vistaverur eignarinnar sbr fjögur svefnherbergi og baðherbergi. Eignin er öll mjög rúmgóð og fara allir fermetrar í íbúðarhluta í dag.
Nánari upplýsingar, skoðanabókanir og afhending söluyfirlits veitir: Páll Þorbjörnsson Löggiltur fasteignasali, í síma 560-5501, tölvupóstur [email protected].
Nánari lýsing eignar:
Forstofa með parketi og skáp
Þvottahús/geymsla með góðri innréttingu, aðstaða fyrir þvottavél og þurkara, skolvaskur og golf flísalagt. Útgengni út á norðurhluta lóðar.
Eldhús með innbyggðum bakarofn og örbylgjuofn, vínkæli og span helluborði. Gott vinnupláss og aðstaða fyrir barstóla.
Stofa opin við eldhús, bjart og fallegt rými með niðurteknu lofti og innbyggðri loftalýsingu.
Þrjú barnaherberg og eru þau öll 13 fm að stærð.
Baðherbergi er flísalagt með góðu skápaplássi, walk in sturtu, upphengt salerni og opnanlegum glugga.
Hjónaherbergi er mjög rúmgott alls 19 fm með mjög góðu skápaplássi ásamt rúmgóðu flísalögðu baðherbergi með walk in sturtu, upphengdu salerni og tveimur skolvöskum.
Lóð er tyrfð og bílaplan grófjafnað.
Fallegt og vel skipulagt einbýlishús í Stapaskólahverfi eignin er mjög rúmgóð og sannkallað fjölskylduhús.
Vertu tilbúin(n) þegar rétta eignin birtist – skráðu eignina þín í dag og tryggðu þér forskotið.
ALLT fasteignasala er staðsett á eftirfarandi stöðum:
Hafnargötu 62, 230 Reykjanesbæ - Reykjavíkurveg 66, 220 Hafnarfirði
Kostnaður kaupanda:
1. Af gjaldskyldum skjölum skal greiða 0,8% af fasteignamati ef kaupandi er einstaklingur, fyrstukaupendur 0,4% og 1,6% af fasteignamati ef kaupandi er lögaðili.
2. Þinglýsingargjald á hvert skjal er kr. 3.800.
3. Lántökugjald fer eftir verðskrá lánastofnunar hverju sinni.
4. Umsýslugjald til ALLT fasteignasölu er kr. 69.440 m/vsk.
5. Sé um nýbyggingu um að ræða greiðir kaupandi skipulagsgjald, 0,3% af brunabótamati, þegar það er lagt á.
Skoðunar- og aðgæsluskylda kaupanda:
Í lögum um fasteignakaup nr. 40/2002 er kveðið á um ríka skoðunarskyldu kaupenda á fasteignum. ALLT fasteignasala vill beina því til væntanlegs kaupanda að kynna sér ástand fasteignar vel við skoðun og fyrir tilboðsgerð. Ef þurfa þykir er ráðlagt að leita til sérfræðifróðra aðila. Forsendur söluyfirlits: Söluyfirlit þetta er samið af fasteignasala til samræmis við lög um sölu fasteigna og skipa nr. 70/2015. Upplýsingar þær sem koma fram í söluyfirliti þessu eru sóttar í opinberar skrár, frá seljanda og eftir atvikum til húsfélags. Seljandi veitir upplýsingar um eignina til samræmis við upplýsingaskyldu sína sbr. lög um fasteignakaup nr. 40/2002. Fasteignasali sannreynir að upplýsingar séu réttar með sjónskoðun á eigninni. Fasteignasali getur ekki fullyrt um ástand og eiginleika þeirra hluta fasteignar sem ekki eru aðgengilegir og sjást ekki með berum augum, eins og t.d. lagnir, dren, skólp og þak.
Vertu tilbúin(n) þegar rétta eignin birtist – Fáðu tilboð í söluferlið - Skráðu eignina þína í dag og tryggðu þér forskotið.
Ár
Fasteignamat
Kaupverð
Stærð
Fermetraverð
5. okt. 2022
54.450.000 kr.
67.000.000 kr.
182.3 m²
367.526 kr.
Byggt á upplýsingum úr Þjóðskrá Íslands frá 2006-2026