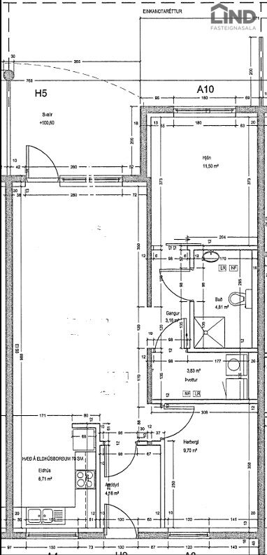
Lómasalir, 201 Kópavogur