Upplýsingar
Byggt 1984
82,9 m²
4 herb.
1 baðherb.
3 svefnh.
Lýsing
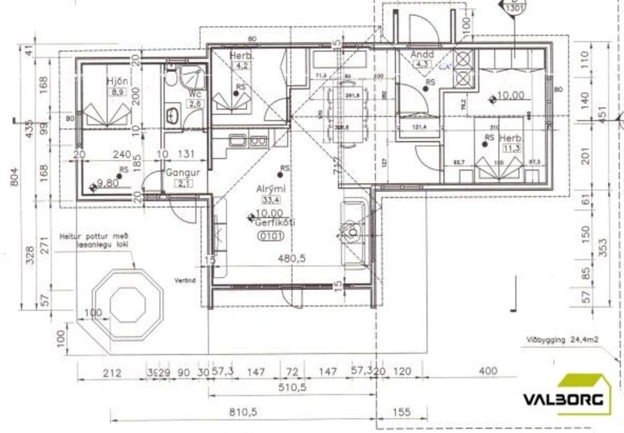
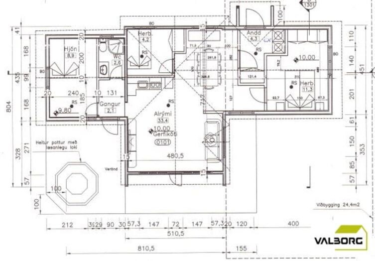
Valborg fasteignasala kynnir: Sumarhús í Öndverðarnesi við Kothólsbraut 8. Bjart og mikið endurnýjað 83 fm sumarhús sem hefur verið stækkað tvisvar á undanförnum árum auk þess að byggður hefur verið um það bil 10 fm geymsluskúr sem er ekki inn í fermetratölu hússins. Húsið stendur á skógi vaxinni lóð með ótímabundnum leigusamningi. Eignin skiptist í alrými, opið eldhús, þrjú svefnherbergi, svefnloft, forstofugang, baðherbergi og kaldan geymsluskúr. Sólverönd 33 fm er við húsið og þar er heitur pottur.
Hafið samband og bókið skoðun. Fasteignasali getur yfirleitt sýnt samdægurs. Nánari upplýsingar veitir Aðalsteinn Steinþórsson Viðskiptafræðingur - löggiltur fasteignasali, í síma 896-5865, tölvupóstur [email protected].
Nánari lýsing:
Komið er inn í parketlagt andyri sem er í nýrri viðbyggingunni en veggur sem lokar því af á teikningu var ekki settur upp. Á vinstri hönd er aðstaða fyrir þvottavél og rúmgott svefnherbergi. Á hægri hönd er alrými hússins, stofa borðstofa og opið eldhús með uppþvottavél eldavél og ísskáp. Við hlið borðstofu á bak við eldhús er svefnherbergi og fyrir ofan það er svefnloft. Í fyrri viðbyggingunni er svo hjónherbergi, flíslagt baðherbergi með sturtubotni og flísalagður gangur sem áður var forstofa hússins. Þaðan er hurð út á verönd með heitum potti. Allur bústaðurinn er með ljósu fallegu harðparketi nema baðherbergi og gangur eru með flísum. Nýrri hlutar hússins eru með fallegum hvíttuðum panel og eldri panell hefur verið hvíttaður eða málaður með hvítri þekjandi málningu. Skipulag hússins er gott og þar eru fjögur tvíbreið rúm.
Bústaðurinn var allur málaður að utan sumarið 2024. Bústaðurinn er byggður á steyptum súlum og undirstöður virðast traustar og í lagi. Árið 2005 var byggt við húsið í fyrra skiptið og þá var sett ný rótþró og jafnframt voru allar eldri neysluvatns- og hitalagnir endurnýjaðar sem og holræsalagnir.
Til Öndverðanes er aðeins 45 mín akstur frá höfuðborgarsvæðinu og 10 mín frá Selfossi. Svæðið er lokað með hringihliði (fjarstýring) þegar golfvöllurinn er ekki opinn og bundið slitlag er á götum innan þess. Á svæðinu er skemmtileg 16x8 metra sundlaug með heitum pottum. Laugin er eingöngu fyrir þá sem eiga sumarhús í Öndverðarnesi og gesti þeirra. Aðgangur er með sundlaugarkorti sem er innifalið er í lóðarleigunni. Hitaveita, kalt vatn og rafmagn. Í Öndverðarnesi er frábær 18 holu golfvöllur í fallegu umhverfi með fögru útsýni í friðsælli og fagurri íslenskri náttúru. Völlurinn býður upp á krefjandi upplifun fyrir alla kylfinga við frábærar aðstæður. Í Öndverðarnesi er staðarhaldari sem hefur umsjón með svæðinu þ.m.t. snjómokstur á götum þegar þess þarf, umsjón með sundlauginni og umsjón með gámasvæðinu sem tilheyrir Öndverðarnesi. Lóðin er 4625 fm og leiga er u.þ.b. 168.000 á ári og rafmagns- og hitakostnaður u.þ.b. 20.000.- á mánuði.
Stutt að sækja frístundir s.s. golf, veiði og fallegar gönguleiðir og stutt er til þekktra staða á Suðurlandi svo sem Skálholts, Þingvalla, Laugarvatns, Geysis, Gullfoss og Kersins.
Forsendur söluyfirlits:
Söluyfirlit er samið af fasteignasala í samræmi við ákvæði laga nr. 70/2015. Þær upplýsingar sem fram koma í söluyfirliti þessu eru sóttar í opinberar skrár, til seljanda sjálfs og eftir atvikum til húsfélags. Seljandi veitir upplýsingar um eign í samræmi við upplýsingaskyldu laga um fasteignakaup nr. 40/2002. Fasteignasali sannreynir að þær upplýsingar séu réttar með sjónskoðun á eigninni. Fasteignasali getur ekki fullyrt um ástand og eiginleika þeirra hluta fasteigna sem ekki eru aðgengilegir og sjást ekki berum augum, t.d. lagnir, dren, skólp og þak.
Um skoðunar- og aðgæsluskyldu:
Í lögum um fasteignakaup nr. 40/2002 er kveðið á um ríka skoðunarskyldu kaupenda á fasteignum. Valborg ehf. fasteignasala bendir væntanlegum kaupendum á að kynna sér vel ástand fasteigna við skoðun og fyrir tilboðsgerð og ef þurfa þykir að leita til sérfræðinga um nánari ástandsskoðun.
Gjöld sem kaupandi þarf að standa straum af vegna kaupanna:
1. Stimpilgjald af kaupsamningi sem er hlutfall af fasteignamati. Stimpilgjald er 0,8% fyrir einstaklinga (0,4% við fyrstu kaup) og 1,6% fyrir lögaðila.
2. Þinglýsingargjald af kaupsamningi, veðskuldabréfum, veðleyfum o.fl. Þinglýsingargjald er kr. 3.800,- fyrir hvert skjal.
3. Lántökugjald lánastofnunar. Um lántökugjald vísast í gjaldskrá viðkomandi lánveitanda.
4. Umsýsluþóknun fasteignasölu skv. gjaldskrá.
5. Ef um nýbyggingu er að ræða greiðir kaupandi skipulagsgjald, 0,3% af brunabótamati, þegar það er lagt á.
Hafið samband og bókið skoðun. Fasteignasali getur yfirleitt sýnt samdægurs. Nánari upplýsingar veitir Aðalsteinn Steinþórsson Viðskiptafræðingur - löggiltur fasteignasali, í síma 896-5865, tölvupóstur [email protected].
Nánari lýsing:
Komið er inn í parketlagt andyri sem er í nýrri viðbyggingunni en veggur sem lokar því af á teikningu var ekki settur upp. Á vinstri hönd er aðstaða fyrir þvottavél og rúmgott svefnherbergi. Á hægri hönd er alrými hússins, stofa borðstofa og opið eldhús með uppþvottavél eldavél og ísskáp. Við hlið borðstofu á bak við eldhús er svefnherbergi og fyrir ofan það er svefnloft. Í fyrri viðbyggingunni er svo hjónherbergi, flíslagt baðherbergi með sturtubotni og flísalagður gangur sem áður var forstofa hússins. Þaðan er hurð út á verönd með heitum potti. Allur bústaðurinn er með ljósu fallegu harðparketi nema baðherbergi og gangur eru með flísum. Nýrri hlutar hússins eru með fallegum hvíttuðum panel og eldri panell hefur verið hvíttaður eða málaður með hvítri þekjandi málningu. Skipulag hússins er gott og þar eru fjögur tvíbreið rúm.
Bústaðurinn var allur málaður að utan sumarið 2024. Bústaðurinn er byggður á steyptum súlum og undirstöður virðast traustar og í lagi. Árið 2005 var byggt við húsið í fyrra skiptið og þá var sett ný rótþró og jafnframt voru allar eldri neysluvatns- og hitalagnir endurnýjaðar sem og holræsalagnir.
Til Öndverðanes er aðeins 45 mín akstur frá höfuðborgarsvæðinu og 10 mín frá Selfossi. Svæðið er lokað með hringihliði (fjarstýring) þegar golfvöllurinn er ekki opinn og bundið slitlag er á götum innan þess. Á svæðinu er skemmtileg 16x8 metra sundlaug með heitum pottum. Laugin er eingöngu fyrir þá sem eiga sumarhús í Öndverðarnesi og gesti þeirra. Aðgangur er með sundlaugarkorti sem er innifalið er í lóðarleigunni. Hitaveita, kalt vatn og rafmagn. Í Öndverðarnesi er frábær 18 holu golfvöllur í fallegu umhverfi með fögru útsýni í friðsælli og fagurri íslenskri náttúru. Völlurinn býður upp á krefjandi upplifun fyrir alla kylfinga við frábærar aðstæður. Í Öndverðarnesi er staðarhaldari sem hefur umsjón með svæðinu þ.m.t. snjómokstur á götum þegar þess þarf, umsjón með sundlauginni og umsjón með gámasvæðinu sem tilheyrir Öndverðarnesi. Lóðin er 4625 fm og leiga er u.þ.b. 168.000 á ári og rafmagns- og hitakostnaður u.þ.b. 20.000.- á mánuði.
Stutt að sækja frístundir s.s. golf, veiði og fallegar gönguleiðir og stutt er til þekktra staða á Suðurlandi svo sem Skálholts, Þingvalla, Laugarvatns, Geysis, Gullfoss og Kersins.
Forsendur söluyfirlits:
Söluyfirlit er samið af fasteignasala í samræmi við ákvæði laga nr. 70/2015. Þær upplýsingar sem fram koma í söluyfirliti þessu eru sóttar í opinberar skrár, til seljanda sjálfs og eftir atvikum til húsfélags. Seljandi veitir upplýsingar um eign í samræmi við upplýsingaskyldu laga um fasteignakaup nr. 40/2002. Fasteignasali sannreynir að þær upplýsingar séu réttar með sjónskoðun á eigninni. Fasteignasali getur ekki fullyrt um ástand og eiginleika þeirra hluta fasteigna sem ekki eru aðgengilegir og sjást ekki berum augum, t.d. lagnir, dren, skólp og þak.
Um skoðunar- og aðgæsluskyldu:
Í lögum um fasteignakaup nr. 40/2002 er kveðið á um ríka skoðunarskyldu kaupenda á fasteignum. Valborg ehf. fasteignasala bendir væntanlegum kaupendum á að kynna sér vel ástand fasteigna við skoðun og fyrir tilboðsgerð og ef þurfa þykir að leita til sérfræðinga um nánari ástandsskoðun.
Gjöld sem kaupandi þarf að standa straum af vegna kaupanna:
1. Stimpilgjald af kaupsamningi sem er hlutfall af fasteignamati. Stimpilgjald er 0,8% fyrir einstaklinga (0,4% við fyrstu kaup) og 1,6% fyrir lögaðila.
2. Þinglýsingargjald af kaupsamningi, veðskuldabréfum, veðleyfum o.fl. Þinglýsingargjald er kr. 3.800,- fyrir hvert skjal.
3. Lántökugjald lánastofnunar. Um lántökugjald vísast í gjaldskrá viðkomandi lánveitanda.
4. Umsýsluþóknun fasteignasölu skv. gjaldskrá.
5. Ef um nýbyggingu er að ræða greiðir kaupandi skipulagsgjald, 0,3% af brunabótamati, þegar það er lagt á.