Löggiltir fasteignasalar innan Félags fasteignasala:
Páll Þórólfsson
Guðbjörg Guðmundsdóttir
Jason Kristinn Ólafsson
Sverrir Pálmason
Vista
svg

36

svg

20  Skoðendur

svg

Skráð  14. mar. 2026

fjölbýlishús

Asparskógar 18(202)

300 Akranes

48.500.000 kr.

909.944 þ.kr./m2
Fasteignanúmer

F2519866

Fasteignamat

32.050.000 kr.

Brunabótamat

0 kr.

Áhvílandi

0 kr.

Arion banki – Reikna lán
Upplýsingar
svg
Byggt 2023
svg
53,3 m²
svg
2 herb.
svg
1 baðherb.
svg
1 svefnh.
svg
Sérinngangur
Opið hús: 15. mars 2026 kl. 11:30 til 12:00

Opið hús sunnudag frá 11:30-12:00

Lýsing

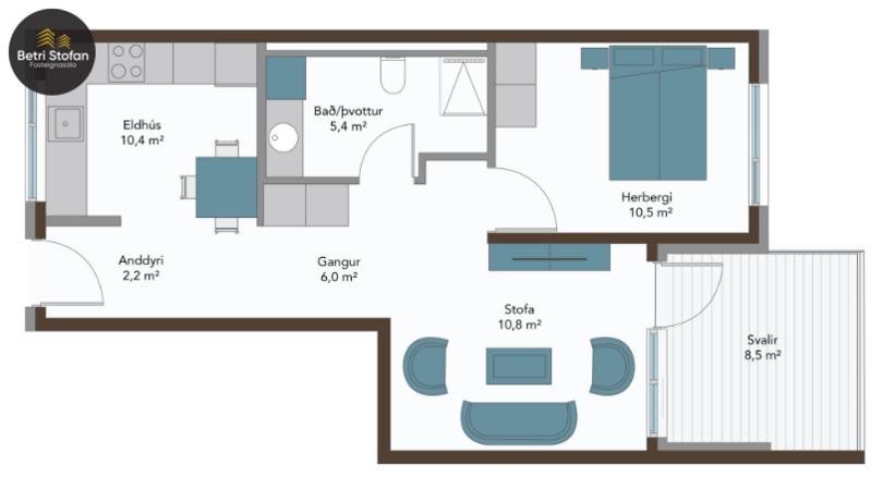
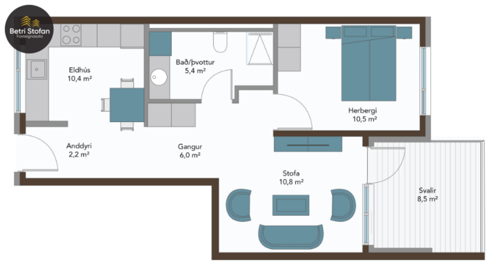
Betri Stofan Fasteignasala, Dagrún Davíðsdóttir og Jason Kristinn Ólafsson löggiltir fasteignasalar kynna nýja 2 herbergja 53,3 fm íbúð á 2 hæð með sérinngangi. 8,5 fm svalir.
Íbúðirnar afhendast fullbúnar við kaupsamning, með gólfefnum, innbyggðri uppþvottavél, ísskáp með frysti og lýsing er í loftum. Ljós eru innbyggð að hluta. Baðherbergi eru flísalögð með sturtugleri, vaski, upphengdu salerni og handklæðaofn.

** Bókið einkaskoður hjá Dagrúnu Davíðsdóttir löggiltum fasteignasala í síma 866-1763 / [email protected] **

**Möguleiki á hlutdeildarláni**

Heimasíða verkefnis: Asparskógar 18

Nánari lýsing:

Forstofa: Skápur, flísalagt.
Eldhús: Hvít innrétting frá GKS. Ofn í vinnuhæð, vifta. Span helluborð, innbyggður kælir og frystir og uppþvottavél. Tæki frá AEG. Innbyggð lýsing undir efri skápum. Parket á gólfi.
Stofa , borðstofa og eldhús mynda opið rými. Parket á gólfi. Útgengt út á hellulagðan sérafnotareit.
Hjónaherbergi: Fataskápar. Parket á gólfi
Baðherbergi: Innrétting með handlaug. Speglaskápur. Upphengt salerni. Sturta með sturtugleri.Handklæðaofn. Ljósar flísar á gólfi og veggjum.

Sameiginleg hjóla- og vagnageymsla á jarðhæð.

Eignin er laus til afhendingar við kaupsamning.


Eignin Asparskógar 18 er skráð sem hér segir hjá FMR: Eign 2519866, birt stærð 53,3 fm. Íbúðin er 53,3 og geymsla 3,7 fm.

Nánari upplýsingar veita:
Dagrún Davíðsdóttir löggiltur fasteignasali í síma 866-1763 eða á netfangið: [email protected]
Jason Kristinn Ólafsson löggiltur fasteignasali í síma 775-1515 eða á netfangið: [email protected]


Gjöld sem kaupandi þarf að standa straum af ef að kaupum verður:
1. Stimpilgjald af fasteignamati fasteignar er 0.8%, en 0,4% fyrir fyrstu kaup og 1,6% fyrir lögaðila.  
2. Þinglýsingargjald: kaupsamningi, skuldabréfi, veðleyfi, afsali o.s.frv. er kr. 3.800 af hverju skjali.
3. Lántökukostnaður samkvæmt verðskrá viðkomandi lánastofnunar.
4. Umsýslugjald til fasteignasölu skv. gjaldskrá.

Skoðunarskylda kaupanda:
Í lögum um fasteignakaup nr. 40/2002 er kveðið á um ríka skoðunarskyldu kaupenda á fasteignum. Betri Stofan fasteignasala bendir væntanlegum kaupendum á að kynna sér vel ástand fasteigna við skoðun og fyrir tilboðsgerð og ef þurfa þykir að leita til sérfræðinga um nánari ástandsskoðun.

Betri Stofan Fasteignasala

Betri Stofan Fasteignasala

Borgartúni 30, 105 Reykjavík
phone
Betri Stofan Fasteignasala

Betri Stofan Fasteignasala

Borgartúni 30, 105 Reykjavík
phone