Upplýsingar
Verðsaga
Byggt 2017
107,9 m²
3 herb.
1 baðherb.
2 svefnh.
Þvottahús
Sameiginl. inngangur
Bílastæði
Lyfta
Opið hús: 17. mars 2026
kl. 17:00
til 17:30
Lýsing
Glæsileg 3ja herbergja íbúð með einstöku útsýni, rúmgóðri sameign og stæði í bílakjallara.
Við Holtsveg 45 í Urriðaholti í Garðabæ er til sölu glæsileg og vel skipulögð 3ja herbergja íbúð á þriðju hæð í vönduðu 10 íbúða lyftuhúsi sem byggt var árið 2017. Íbúðin nýtur stórfenglegs útsýnis yfir Urriðavatn, Hafnarfjörð og út á Reykjanesið. Um er að ræða einstaklega fallega eign á frábærum stað á höfuðborgarsvæðinu.
OPIÐ HÚS: Þriðjudaginn 17. mars klukkan 17:00-17:30
Bókið tíma með því að smella hér eða á netfanginu [email protected] eða í síma 869-1808.
Frábært tækifæri til að eignast fallega íbúð með einstöku útsýni á góðu verði.
Íbúðin er björt og rúmgóð með gluggum til þriggja átta. Alrými með eldhúsi og stofu er opið og fallegt, með útgengi á svalir með svalalokun þar sem útsýnið nýtur sín til fulls. Eldhús og innréttingar eru vandaðar, í samræmdum stíl og heildaryfirbragð eignarinnar er fágað og tímalaust.
Tvö góð svefnherbergi eru í íbúðinni, bæði með fataskápum. Baðherbergi er vel búið með flísum á gólfi og veggjum, sturtu og fallegri innréttingu. Sér þvottahús er innan íbúðar. Gólfefni eru harðparket á forstofu, alrými og í herbergjum en flísar á baðherbergi og í þvottahúsi.
Húsið er vandað að allri gerð, frábær aðstaða og sameign er einstaklega rúmgóð og snyrtileg.
Eigninni fylgir rúmgott sérmerkt bílastæði í lokaðri bílageymslu með rafhleðslustöð. Inn af stæðinu er stór og hentug sérgeymsla, sem eykur notagildi eignarinnar til muna. Auk þess eru 10 stæði fyrir utan húsið og tvær sameiginlegar rafhleðslustöðvar.
Staðsetning eignarinnar er frábær. Stutt er í leik- og grunnskóla, sem eru staðsettir beint fyrir ofan húsið, auk þess sem notalegt hverfiskaffihús er þar rétt hjá. Falleg útivistarsvæði og mikil náttúrufegurð eru í næsta nágrenni og bjóða upp á göngu- og hjólaleiðir í einstaklega fallegu umhverfi. Jafnframt er stutt í golfvöll og alla helstu þjónustu og stofnleiðir.
Nánari lýsing íbúðar:
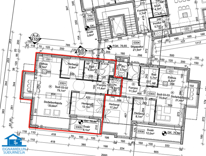
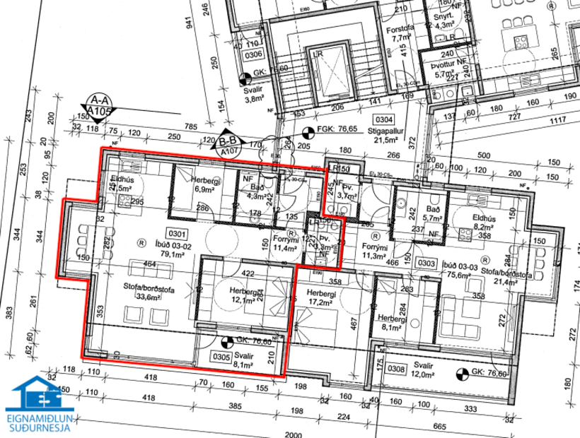
Íbúð 301. Eignin er skráð 107,9 fm, þar af er íbúðin 92,7 fm og sérgeymsla 15,2 fm.
Gengið er inn í húsið frá götu á 1. hæð þar sem er snyrtilegt anddyri. Á 1. hæð eru einnig sameiginleg rými eins og vagna- og hjólageymsla, ruslageymsla, verkfærageymsla, lokuð bílastæðageymsla og sérgeymslur.
Af 2. hæð hússins er gengið út í snyrtilegan sameiginlegan garð og þaðan eru tröppur sem liggja upp á göngustíg fyrir ofan húsið.
Íbúðin er á 3. hæð og hægt að ganga upp snyrtilegan stiga eða nota rúmgóða og snyrtilega lyftu.
Forstofa er með parketi á gólfi og góðum fataskáp.
Eldhús og stofa í opnu og björtu rými með parketi á gólfi. Eldhúsið er með sérsmíðaðri viðarinnréttingu frá Parka, borðplötur úr fallegum kvarts steini, helluborð með háfi, ofn í vinnuhæð og innbyggð uppþvottavél. Falleg eldhúseyja stúkar eldhúsið frá borðstofu.
Stofan er björt og falleg með einstöku útsýni. Þaðan er gengið út á svalir sem snúa í suðvestur. Svalir eru með gúmmíhellum á gólfi og með gler svalalokun.
Baðherbergi er með fallegum flísum á gólfi og veggjum, góð sturta, handklæðaofn og viðarinnrétting og skápur.
Tvö svefnherbergi eru í íbúðinni, bæði með parketi á gólfi og góðum skápum.
Þvottahús með flísum á gólfi þar sem gert er ráð fyrir þvottavél og þurrkara undir borðplötu með góðu vinnuplássi og skápum fyrir ofan.
Rúmgott bílastæði í bílakjallara með rafhleðslustöð fylgir íbúðinni og inn af bílastæði er virkilega rúmgóð geymsla með góðum hillum og geymslulofti yfir hluta af geymslunni þar sem hátt er til lofts.
Virkilega falleg og vel skipulögð eign á frábærum stað - sjón er sögu ríkari.
Nánari upplýsingar veitir:
Erla María Guðmundsdóttir
Löggiltur fasteignasali
Netfang: [email protected]
Sími: 869-1808
------------------------------------
Gjöld sem kaupandi þarf að standa straum af vegna kaupa á fasteign:
1. Stimpilgjald af kaupsamningi - 0,8% af heildarfasteignamati fyrir einstaklinga (0,4% ef um er að ræða fyrstu kaup) og 1,6% fyrir lögaðila.
2. Þinglýsingargjald af kaupsamningi, veðskuldabréfi, mögulegu veðleyfi o.fl. - kr. 3.800 af hverju skjali.
3. Lántökugjald lánastofnunar – mismunandi á milli lánastofnana. Nánari upplýsingar á heimasíðum lánastofnana.
4. Umsýslugjald til fasteignasölu samkvæmt kauptilboði.
Skoðunar- og aðgæsluskylda kaupanda:
Í lögum um fasteignakaup nr. 40/2002 er kveðið á um ríka skoðunarskyldu kaupenda á fasteignum. Við brýnum því fyrir kaupendum að skoða fasteignir vel fyrir tilboðsgerð og leita sér viðeigandi aðstoðar sérfræðinga þegar ástæða þykir til.
Forsendur söluyfirlits:
Söluyfirlitið er samið af fasteignasala í samræmi við ákvæði laga nr. 70/2015. Þær upplýsingar sem fram koma í söluyfirliti þessu eru sóttar í opinberar skrár, til seljanda sjálfs og eftir atvikum til húsfélags. Seljandi veitir upplýsingar um eign í samræmi við upplýsingaskyldu laga um fasteignakaup nr. 40/2002. Fasteignasali skoðar eignina og sannreynir upplýsingar frá seljanda með sjónskoðun. Fasteignasali getur ekki fullyrt um ástand og eiginleika þeirra hluta fasteigna sem ekki eru aðgengilegir og sjást ekki með berum augum, t.d. lagnir, dren skólp og þak.
Við Holtsveg 45 í Urriðaholti í Garðabæ er til sölu glæsileg og vel skipulögð 3ja herbergja íbúð á þriðju hæð í vönduðu 10 íbúða lyftuhúsi sem byggt var árið 2017. Íbúðin nýtur stórfenglegs útsýnis yfir Urriðavatn, Hafnarfjörð og út á Reykjanesið. Um er að ræða einstaklega fallega eign á frábærum stað á höfuðborgarsvæðinu.
OPIÐ HÚS: Þriðjudaginn 17. mars klukkan 17:00-17:30
Bókið tíma með því að smella hér eða á netfanginu [email protected] eða í síma 869-1808.
Frábært tækifæri til að eignast fallega íbúð með einstöku útsýni á góðu verði.
Íbúðin er björt og rúmgóð með gluggum til þriggja átta. Alrými með eldhúsi og stofu er opið og fallegt, með útgengi á svalir með svalalokun þar sem útsýnið nýtur sín til fulls. Eldhús og innréttingar eru vandaðar, í samræmdum stíl og heildaryfirbragð eignarinnar er fágað og tímalaust.
Tvö góð svefnherbergi eru í íbúðinni, bæði með fataskápum. Baðherbergi er vel búið með flísum á gólfi og veggjum, sturtu og fallegri innréttingu. Sér þvottahús er innan íbúðar. Gólfefni eru harðparket á forstofu, alrými og í herbergjum en flísar á baðherbergi og í þvottahúsi.
Húsið er vandað að allri gerð, frábær aðstaða og sameign er einstaklega rúmgóð og snyrtileg.
- - Rúmgott og snyrtilegt anddyri
- - Dyrasími með myndavél
- - Snyrtilegur og bjartur stigagangur
- - Rúmgóð lyfta
- - Mjög rúmgóð vagna- og hjólageymsla
- - Fallegur og vel hannaður sameiginlegur garður
Eigninni fylgir rúmgott sérmerkt bílastæði í lokaðri bílageymslu með rafhleðslustöð. Inn af stæðinu er stór og hentug sérgeymsla, sem eykur notagildi eignarinnar til muna. Auk þess eru 10 stæði fyrir utan húsið og tvær sameiginlegar rafhleðslustöðvar.
Staðsetning eignarinnar er frábær. Stutt er í leik- og grunnskóla, sem eru staðsettir beint fyrir ofan húsið, auk þess sem notalegt hverfiskaffihús er þar rétt hjá. Falleg útivistarsvæði og mikil náttúrufegurð eru í næsta nágrenni og bjóða upp á göngu- og hjólaleiðir í einstaklega fallegu umhverfi. Jafnframt er stutt í golfvöll og alla helstu þjónustu og stofnleiðir.
Nánari lýsing íbúðar:
Íbúð 301. Eignin er skráð 107,9 fm, þar af er íbúðin 92,7 fm og sérgeymsla 15,2 fm.
Gengið er inn í húsið frá götu á 1. hæð þar sem er snyrtilegt anddyri. Á 1. hæð eru einnig sameiginleg rými eins og vagna- og hjólageymsla, ruslageymsla, verkfærageymsla, lokuð bílastæðageymsla og sérgeymslur.
Af 2. hæð hússins er gengið út í snyrtilegan sameiginlegan garð og þaðan eru tröppur sem liggja upp á göngustíg fyrir ofan húsið.
Íbúðin er á 3. hæð og hægt að ganga upp snyrtilegan stiga eða nota rúmgóða og snyrtilega lyftu.
Forstofa er með parketi á gólfi og góðum fataskáp.
Eldhús og stofa í opnu og björtu rými með parketi á gólfi. Eldhúsið er með sérsmíðaðri viðarinnréttingu frá Parka, borðplötur úr fallegum kvarts steini, helluborð með háfi, ofn í vinnuhæð og innbyggð uppþvottavél. Falleg eldhúseyja stúkar eldhúsið frá borðstofu.
Stofan er björt og falleg með einstöku útsýni. Þaðan er gengið út á svalir sem snúa í suðvestur. Svalir eru með gúmmíhellum á gólfi og með gler svalalokun.
Baðherbergi er með fallegum flísum á gólfi og veggjum, góð sturta, handklæðaofn og viðarinnrétting og skápur.
Tvö svefnherbergi eru í íbúðinni, bæði með parketi á gólfi og góðum skápum.
Þvottahús með flísum á gólfi þar sem gert er ráð fyrir þvottavél og þurrkara undir borðplötu með góðu vinnuplássi og skápum fyrir ofan.
Rúmgott bílastæði í bílakjallara með rafhleðslustöð fylgir íbúðinni og inn af bílastæði er virkilega rúmgóð geymsla með góðum hillum og geymslulofti yfir hluta af geymslunni þar sem hátt er til lofts.
Virkilega falleg og vel skipulögð eign á frábærum stað - sjón er sögu ríkari.
Nánari upplýsingar veitir:
Erla María Guðmundsdóttir
Löggiltur fasteignasali
Netfang: [email protected]
Sími: 869-1808
------------------------------------
Gjöld sem kaupandi þarf að standa straum af vegna kaupa á fasteign:
1. Stimpilgjald af kaupsamningi - 0,8% af heildarfasteignamati fyrir einstaklinga (0,4% ef um er að ræða fyrstu kaup) og 1,6% fyrir lögaðila.
2. Þinglýsingargjald af kaupsamningi, veðskuldabréfi, mögulegu veðleyfi o.fl. - kr. 3.800 af hverju skjali.
3. Lántökugjald lánastofnunar – mismunandi á milli lánastofnana. Nánari upplýsingar á heimasíðum lánastofnana.
4. Umsýslugjald til fasteignasölu samkvæmt kauptilboði.
Skoðunar- og aðgæsluskylda kaupanda:
Í lögum um fasteignakaup nr. 40/2002 er kveðið á um ríka skoðunarskyldu kaupenda á fasteignum. Við brýnum því fyrir kaupendum að skoða fasteignir vel fyrir tilboðsgerð og leita sér viðeigandi aðstoðar sérfræðinga þegar ástæða þykir til.
Forsendur söluyfirlits:
Söluyfirlitið er samið af fasteignasala í samræmi við ákvæði laga nr. 70/2015. Þær upplýsingar sem fram koma í söluyfirliti þessu eru sóttar í opinberar skrár, til seljanda sjálfs og eftir atvikum til húsfélags. Seljandi veitir upplýsingar um eign í samræmi við upplýsingaskyldu laga um fasteignakaup nr. 40/2002. Fasteignasali skoðar eignina og sannreynir upplýsingar frá seljanda með sjónskoðun. Fasteignasali getur ekki fullyrt um ástand og eiginleika þeirra hluta fasteigna sem ekki eru aðgengilegir og sjást ekki með berum augum, t.d. lagnir, dren skólp og þak.
Ár
Fasteignamat
Kaupverð
Stærð
Fermetraverð
16. jún. 2017
3.880.000 kr.
53.900.000 kr.
107.9 m²
499.537 kr.
Byggt á upplýsingum úr Þjóðskrá Íslands frá 2006-2026