Löggiltir fasteignasalar innan Félags fasteignasala:
Sigurður Samúelsson
Andri Sigurðsson
Sveinn Eyland
Ingibjörg Agnes Jónsdóttir
Guðrún Diljá Lúðvíksdóttir
Monika Hjálmtýsdóttir
Júlíus Jóhannsson
Freyja Rúnarsdóttir
Jón Óskar Karlsson
Davíð Matthíasson
Erla Friðriksdóttir
Vista
svg

273

svg

228  Skoðendur

svg

Skráð  18. mar. 2026

fjölbýlishús

Fellahvarf 3

203 Kópavogur

103.500.000 kr.

862.500 þ.kr./m2
Fasteignanúmer

F2266795

Fasteignamat

85.950.000 kr.

Brunabótamat

61.300.000 kr.

Áhvílandi

0 kr.

Arion banki – Reikna lán
Upplýsingar
Verðsaga
svg
Byggt 2004
svg
120 m²
svg
4 herb.
svg
1 baðherb.
svg
3 svefnh.
svg
Þvottahús
svg
Sérinngangur

Lýsing

LANDMARK fasteignamiðlun ehf. og Andri Sigurðsson Löggiltur fasteignasali (s: 690 3111 / [email protected]) og félagsmaður í Félagi fasteignasala kynna í einkasölu: 

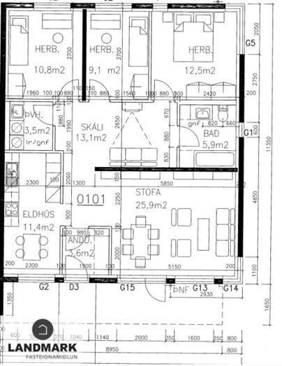
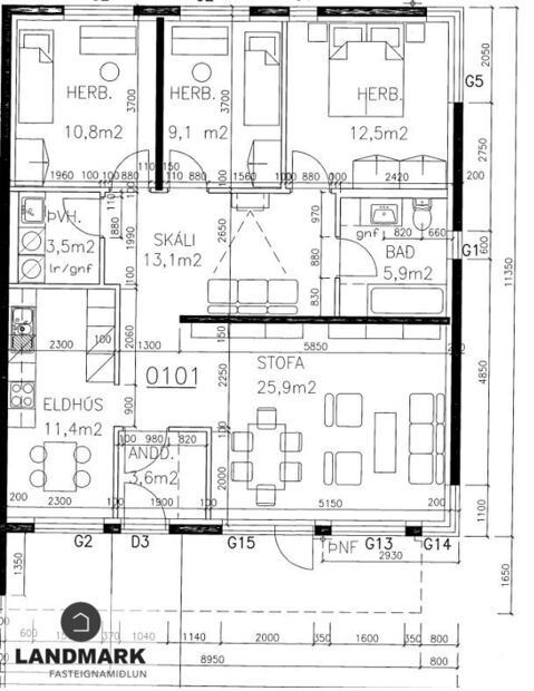
Virkilega falleg, mjög mikið endurnýjuð og vel skipulögð 4ra herbergja endaíbúð á 1. hæð með sérinngangi og stórum timburpalli á þessum vinsæla stað við Fellahvarf 3, 203 Kópavogi. Eignin skiptist í anddyri, eldhús, stofu, sjónvarpshol, þrjú svefnherbergi, þvottahús innan íbúðar, baðherbergi og sérgeymslu á hæðinni. Birt stærð skv. HMS: Íbúðin er 112 fm merkt 01-01 og geymslan er 8 fm, samtals 120 fm að stærð. Íbúðin var tekin í gegn að innan árið 2017 og skipulag á eldhúsi var einnig breytt, þá var einnig nýr pallur byggður.

Húsið er 3ja hæða steinsteypt fjölbýlishús með stálklæddu þaki. Fimm íbúðir eru í húsinu ásamt fimm geymslum og tveimur bílskúrum. Hér er um ræða glæsilega eign á fallegum og rólegum stað í Kópavogi. Árið 2017 var eldhúsið, baðherbergið og þvottahúsið endurnýjað ásamt öllum gólfefnum, hurðum og fataskápum. Skv. eignaskiptasamningi fylgir íbúðinni sérmerkt bílastæði. Snyrtileg og vel umgengin sameign, húsið hefur fengið mjög gott viðhald að utan síðastliðin ár. 

Eignaskiptasamningur: 112 fm íbúð á 1. hæð merkt: 01-01 ásamt 8 fm geymslu á 1. hæð merkt 01-08 og hlutfallsleg eign í sameign hússins og í lóðinni. Sérafnotaréttur fylgir íbúðinni af lóð sem liggur að íbúð sbr. samþ. uppdrætti. 

Nánari lýsing eignar: Sérinngangur. Fyrir framan innganginn er hellulögð verönd og timburpallur sem snýr í suður með geymsluskúr. Komið er inn í anddyri með fataskáp. Á vinstri hönd frá anddyri er fallegt eldhús með hvítri innréttingu með kvartstein borðplötum, gluggi. Björt og rúmgóð stofa með útgangi út á timburpallinn. Rúmgott parketlagt sjónvarpshol. Innaf sjónvarpsholinu er þvottahús með flísum á gólfi, innréttingu og skolvask. Þrjú mjög rúmgóð svefnherbergi, fataskápur í tveimur þeirra. Flísalagt baðherbergi í hólf og gólf, Walk-in sturta, upphengt salerni og handklæðaofn, gluggi. Gólfefni íbúðar: parket og flísar á gólfum. 

EINSTÖK STAÐSETNING VIÐ RÓLEGA GÖTU Í BOTNLANGA ÞAR SEM STUTT ER Í SKÓLA, LEKSKÓLA, ÍÞRÓTTAHÚS, VERSLUN, VEITINGASTAÐI O.FL. EINNIG ER STUTT Í FALLEGAR GÖNGULEIÐIR OG ÚTIVISTAPERSLUNA ELLIÐAVATN

Allar nánari upplýsingar veitir og bókun á skoðunartíma: Andri Sigurðsson Löggiltur fasteignasali í síma 690 3111 eða [email protected]
 

Skoðunar- og aðgæsluskylda:
Lög um fasteignakaup nr. 40/2002 kveða á um að kaupendur þurfi að skoða fasteignir vel áður en tilboð er gert. LANDMARK fasteignamiðlun ráðleggur kaupendum að skoða ástand eignar og leita sér aðstoðar sérfræðinga ef þörf er á nánari skoðun.

Söluyfirlit:
Söluyfirlit er gert af fasteignasala samkvæmt lögum nr. 70/2015. Upplýsingar í yfirlitinu eru fengnar úr opinberum skrám, frá seljanda og ef þarf frá húsfélagi. Fasteignasali sannreynir upplýsingar með skoðun á eigninni en getur ekki sannreynt ástand þess sem ekki er aðgengilegt eða sýnilegt, t.d. lagnir, dren, skólp og þak.

Gjöld sem kaupandi þarf að greiða:
1. Stimpilgjald: 0,8% af fasteignamati (0,4% fyrir fyrstu kaup) og 1,6% fyrir lögaðila.
2. Þinglýsingargjald: 3.800 kr. fyrir hvert skjal.
3. Lántökugjald: Fer eftir gjaldskrá lánveitanda.
3. Þjónustugjald kaupanda: 79.000 kr. m/vsk.
3. Skipulagsgjald: Ef um nýbyggingu er að ræða, 0,3% af brunabótamáti þegar það er lagt á.

Heimasíða LANDMARK
Pantaðu frítt söluverðmat

img
Andri Sigurðsson
Lögg.fasteignasali innan félags fasteignasala
LANDMARK fasteignamiðlun
Hlíðasmári 2, 201 Kópavogur
LANDMARK fasteignamiðlun

LANDMARK fasteignamiðlun

Hlíðasmári 2, 201 Kópavogur
phone
img

Andri Sigurðsson

Hlíðasmári 2, 201 Kópavogur
Ár
Fasteignamat
Kaupverð
Stærð
Fermetraverð
27. júl. 2017
37.050.000 kr.
50.400.000 kr.
120 m²
420.000 kr.
19. sep. 2007
24.450.000 kr.
35.000.000 kr.
120 m²
291.667 kr.
Byggt á upplýsingum úr Þjóðskrá Íslands frá 2006-2026
LANDMARK fasteignamiðlun

LANDMARK fasteignamiðlun

Hlíðasmári 2, 201 Kópavogur
phone

Andri Sigurðsson

Hlíðasmári 2, 201 Kópavogur