Löggiltir fasteignasalar innan Félags fasteignasala:
Sigurður Samúelsson
Andri Sigurðsson
Sveinn Eyland
Ingibjörg Agnes Jónsdóttir
Guðrún Diljá Lúðvíksdóttir
Monika Hjálmtýsdóttir
Júlíus Jóhannsson
Freyja Rúnarsdóttir
Jón Óskar Karlsson
Davíð Matthíasson
Erla Friðriksdóttir
Vista
fjölbýlishús

Ásakór 1

203 Kópavogur

104.900.000 kr.

659.334 þ.kr./m2
Fasteignanúmer

F2285622

Fasteignamat

94.650.000 kr.

Brunabótamat

74.090.000 kr.

Áhvílandi

0 kr.

Arion banki – Reikna lán
Upplýsingar
Verðsaga
svg
Byggt 2006
svg
159,1 m²
svg
4 herb.
svg
1 baðherb.
svg
3 svefnh.
svg
Þvottahús
svg
Bílskúr
svg
Sameiginl. inngangur
svg
Lyfta

Lýsing

*** Sýnum með stuttum fyrirvara - bókið skoðun í tölvupósti, [email protected] ***

LANDMARK kynnir:
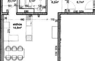
  Falleg og rúmgóð 4ra herbergja íbúð með bílskúr á 4. hæð í lyftuhúsi í frábæru fjölskylduhverfi í Kópavogi.  Íbúðarrými er 133,6 fm og bílskúr 25,5, samtals 159,1 fm.  Þrjú rúmgóð svefnherbergi - rúmgóð stofa - stórar svalir í suður.  Göngufæri er í skóla, leikskóla, íþróttaaðstöðu í kringum Kórinn, matvöruverslanir, apótek og fleira.  

Forstofa er flísalögð með fataskáp.
Stofan er rúmgóð með harðparketi á gólfi og þaðan er útgengt út á suðursvalir
Eldhúsið er með svartlakkaðri innréttingu.  Inn af eldhúsi er þvottahús með innréttingu og flísar á gólfi.
Svefnherbergin þrjú eru öll með harðparketi á gólfi og fataskápum.  Öll frekar rúmgóð.
Baðherbergið er flísalagt í hólf og gólf með viðarinnréttingu og baðkari með sturtuaðstöðu.

Sérgeymsla íbúðar (7,8 fm) er á jarðhæð ásamt sameiginlegum rýmum hússins.

Bílskúrinn er 25,5 fm og er snyrtilegur með sjálfvirkum hurðaopnara.

Upplýsingar veitir Sigurður Samúelsson Lgf í síma 896-2312 eða [email protected] og Freyja Rúnarsdóttir Lgf í síma 694-4112 eða [email protected]
----------------------------------------------------------

 

Skoðunar- og aðgæsluskylda:
Lög um fasteignakaup nr. 40/2002 kveða á um að kaupendur þurfi að skoða fasteignir vel áður en tilboð er gert. LANDMARK fasteignamiðlun ráðleggur kaupendum að skoða ástand eignar og leita sér aðstoðar sérfræðinga ef þörf er á nánari skoðun.

Söluyfirlit:
Söluyfirlit er gert af fasteignasala samkvæmt lögum nr. 70/2015. Upplýsingar í yfirlitinu eru fengnar úr opinberum skrám, frá seljanda og ef þarf frá húsfélagi. Fasteignasali sannreynir upplýsingar með skoðun á eigninni en getur ekki sannreynt ástand þess sem ekki er aðgengilegt eða sýnilegt, t.d. lagnir, dren, skólp og þak.

Gjöld sem kaupandi þarf að greiða:
1. Stimpilgjald: 0,8% af fasteignamati (0,4% fyrir fyrstu kaup) og 1,6% fyrir lögaðila.
2. Þinglýsingargjald: 3.800 kr. fyrir hvert skjal.
3. Lántökugjald: Fer eftir gjaldskrá lánveitanda.
3. Þjónustugjald kaupanda: 79.000 kr. m/vsk.
3. Skipulagsgjald: Ef um nýbyggingu er að ræða, 0,3% af brunabótamáti þegar það er lagt á.

Heimasíða LANDMARK
Pantaðu frítt söluverðmat

img
Sigurður Samúelsson
Lögg.fasteignasali innan félags fasteignasala
LANDMARK fasteignamiðlun
Hlíðasmári 2, 201 Kópavogur
LANDMARK fasteignamiðlun

LANDMARK fasteignamiðlun

Hlíðasmári 2, 201 Kópavogur
phone
img

Sigurður Samúelsson

Hlíðasmári 2, 201 Kópavogur
Ár
Fasteignamat
Kaupverð
Stærð
Fermetraverð
30. sep. 2016
38.700.000 kr.
42.900.000 kr.
159.1 m²
269.642 kr.
31. júl. 2008
31.140.000 kr.
35.500.000 kr.
159.1 m²
223.130 kr.
12. okt. 2007
28.090.000 kr.
32.900.000 kr.
159.1 m²
206.788 kr.
Byggt á upplýsingum úr Þjóðskrá Íslands frá 2006-2026
LANDMARK fasteignamiðlun

LANDMARK fasteignamiðlun

Hlíðasmári 2, 201 Kópavogur
phone

Sigurður Samúelsson

Hlíðasmári 2, 201 Kópavogur