Löggiltir fasteignasalar innan Félags fasteignasala:
Hannes Steindórsson
Bogi Molby Pétursson
Guðrún Antonsdóttir
Heimir Hallgrímsson
Hrafnkell P. H. Pálmason
Viðar Marinósson
Elías Haraldsson
Kristján Þórir Hauksson
Albert Bjarni Úlfarsson
Ragnar Þorsteinsson
Þórey Ólafsdóttir
Andri Freyr Halldórsson
Upplýsingar
67,4 m²
2 herb.
1 baðherb.
1 svefnh.
Þvottahús
Sameiginl. inngangur
Lyfta
Lýsing
Hannes Steindórsson og Gunnar Valsson kynna: Nýtt og einstaklega vandað fjölbýlishús við sjávarsíðuna á vestanverðu Kársnesi, nálægt fyrirhugaðri Fossvogsbrú. Margar af íbúðunum eru með stórkostlegu útsýni til sjávar og fjalla, samfelldur útivistastígur meðfram strandlengjunni.
Hér má skoða íbúðina og verkefnið.
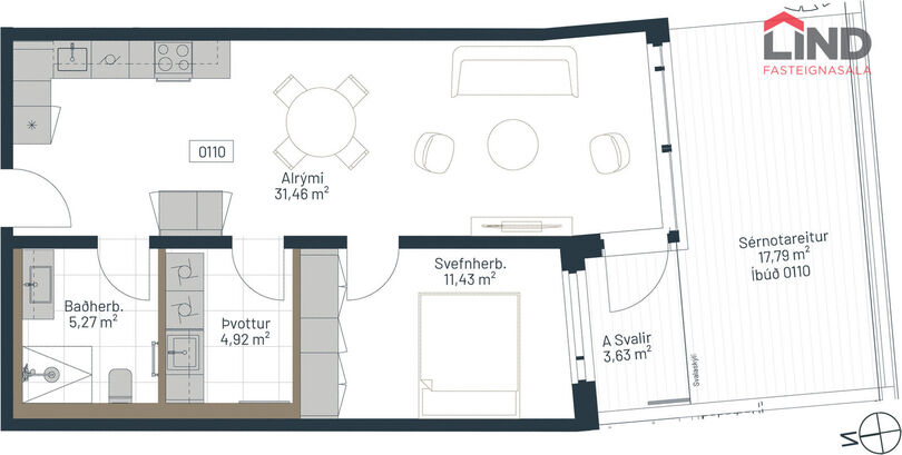
Íbúð 110 er tveggja herbergja, 67,4 fm íbúð á 1.hæð með 3,63 fm svölum með svalalokun og 17,79 fm sérafnotarétti til suðurs.
Forstofa með skápum, hjónaherbergi, þvottahús, baðherbergi með sturtu og þvottaaðstöðu, samliggjandi eldhús og stofa.
Sérgeymsla í sameign merkt 025.
Húsið er 5.hæða lyftuhús með 52 íbúðum. Áhersla lögð á gott skipulag, björt og vistleg rými.
Sérsmíðaðar innréttingar frá Brúnás, þykkar ítalskar QUARTZ borðplötur í ljósum lit, Stone Italiana frá S.Helgasyni. Flísar á votrýmum eru 60x60 Stone Italiana, aukin lofthæð og hlaðnir milliveggir.
Húsið er klætt að utan með sérhannaðri þýskri álklæðningu og áltré gluggar.
Fullkomið loftskiptakerfi, sjálfstætt fyrir hverja íbúð. Hljóðdúkur í sameign, innfelld tæki, ísskápur og uppþvottavél fylgja. Svört tæki í eldhúsi. Gert er ráð fyrir hleðslustöðvum fyrir rafbíla í bílakjallara. Svört tæki í eldhúsi.
Eignirnar eru afhendar fullbúnar án gólfefna að undanskyldu baðherbergi og þvottahúsi, þar eru flísar. Á sérafnotareitum og völdum svölum er möguleiki á að koma fyrir rafmagnspotti. Aðgangsstýrð bílageymsla er í kjallara og flestum íbúðum fylgir sérmerkt einkastæði, ýmist eitt eða tvö.
Afhending: Apríl 2026
Allar upplýsingar veita: Ragnhildur Finnbogadóttir, s. 772-2791, [email protected], Gunnar Valsson s.699-3702 [email protected] eða Hannes Steindórsson s.699-5008 [email protected]
Hér má skoða íbúðina og verkefnið.
Íbúð 110 er tveggja herbergja, 67,4 fm íbúð á 1.hæð með 3,63 fm svölum með svalalokun og 17,79 fm sérafnotarétti til suðurs.
Forstofa með skápum, hjónaherbergi, þvottahús, baðherbergi með sturtu og þvottaaðstöðu, samliggjandi eldhús og stofa.
Sérgeymsla í sameign merkt 025.
Húsið er 5.hæða lyftuhús með 52 íbúðum. Áhersla lögð á gott skipulag, björt og vistleg rými.
Sérsmíðaðar innréttingar frá Brúnás, þykkar ítalskar QUARTZ borðplötur í ljósum lit, Stone Italiana frá S.Helgasyni. Flísar á votrýmum eru 60x60 Stone Italiana, aukin lofthæð og hlaðnir milliveggir.
Húsið er klætt að utan með sérhannaðri þýskri álklæðningu og áltré gluggar.
Fullkomið loftskiptakerfi, sjálfstætt fyrir hverja íbúð. Hljóðdúkur í sameign, innfelld tæki, ísskápur og uppþvottavél fylgja. Svört tæki í eldhúsi. Gert er ráð fyrir hleðslustöðvum fyrir rafbíla í bílakjallara. Svört tæki í eldhúsi.
Eignirnar eru afhendar fullbúnar án gólfefna að undanskyldu baðherbergi og þvottahúsi, þar eru flísar. Á sérafnotareitum og völdum svölum er möguleiki á að koma fyrir rafmagnspotti. Aðgangsstýrð bílageymsla er í kjallara og flestum íbúðum fylgir sérmerkt einkastæði, ýmist eitt eða tvö.
Afhending: Apríl 2026
Allar upplýsingar veita: Ragnhildur Finnbogadóttir, s. 772-2791, [email protected], Gunnar Valsson s.699-3702 [email protected] eða Hannes Steindórsson s.699-5008 [email protected]