Upplýsingar
Verðsaga
Byggt 1968
74,1 m²
3 herb.
1 baðherb.
2 svefnh.
Þvottahús
Sameiginl. inngangur
Lýsing
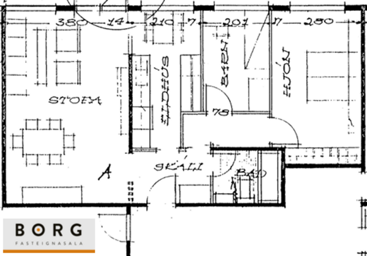
Einar Pálsson lgf. og Borg fasteignasala kynna vel skipulagða 3. herbergja íbúð á jarðhæð með verönd til suðurs. Bílastæði norðan við hús.
Lýsing eignar:
Forstofa er með flísum á gólfi og nýlegum fataskáp á gangi við forstofu. Hiti í gólfi.
Stofa er með parket á gólfi. Útgent er á timburverönd til suðurs úr stofu.
Svefnherbergis gangur er með parket á gólfi.
Svefnherbergin eru tvö, bæði með parket á gólfi og hjónaherbergi með fataskáp.
Eldhús er með parket á gólfi. Eldhúsinnrétting er með neðri skápum og flísum við borðplötu á austurvegg og helluborði.
Baðherbergið er með flísum á gólfi og veggjum, baðkar m/sturtu, handklæðaofn, upphengdu klósetti og innréttingu með vask.
Flísar í forstofu og baðherbergi er síðan 2023. Voru þá lagnir yfirfarnar og hiti settur í gólf undir flísar.
Sér geymsla alls 7,1 m2 (0024) samkvæmt fasteignayfirliti Húsnæðis- og mannvirkjastofnunar.
Samkvæmt þinglýstri eignaskiptayfirysingu er sameiginlegt þvottarými, vagna- og hjólageymsla á jarðhæð hússins.
Samkvæmt þinglýstri eignaskiptayfirlýsingu eru hlutfallstölur íbúðar;
1. Í húsi og lóð, Skarðshíð 2-4-6, 3,20%
2. Í stigahúsi nr. 2, Y-3, 9,08%
3. Í hitakostnaði nr. 2 9,22%
4. Í rafm. sameign nr. 2 10,00%
Allar nánari upplýsingar veitir Einar Pálsson, löggiltur fasteignasali í síma 857-8392 eða á netfanginu [email protected]
-Eignin er í einkasölu
-Íbúðin er laus til afhendingar við undirritun á kaupsamning
-Mest af innbúi getur fylgt kaupunum fyrir utan nokkra persónulega muni.
-Ljósleiðari tengdur inn í íbúð
Skoðunarskylda:
Í lögum um fasteignakaup nr. 40/2002 er kveðið á um ríka skoðunarskyldu kaupenda á fasteignum. Vill Borg fasteignasala því benda væntanlegum kaupendum á að kynna sér vel ástand fasteigna fyrir kauptilboðsgerð og leita til þar til bærra sérfræðinga um nánari skoðun ef þurfa þykir.
Gjöld sem kaupandi þarf að standa straum af vegna kaupanna:
1. Stimpilgjald af kaupsamningi, fyrstu kaup (0,4%), almenn kaup (0,8%), lögaðilar (1,6%) af heildarfasteignamati.
2. Þinglýsingargjald af kaupsamningi, veðskuldabréfi, mögulegu veðleyfi o.fl. - kr. 3.800 af hverju skjali.
3. Lántökugjald lánastofnun.ar - almennt 0,5 - 1,0% af höfuðstól skuldabréfs. Nánari upplýsingar á t.d. heimasíðu lánastofnana.
4. Umsýslugjald til fasteignasölu skv. kauptilboði.
Lýsing eignar:
Forstofa er með flísum á gólfi og nýlegum fataskáp á gangi við forstofu. Hiti í gólfi.
Stofa er með parket á gólfi. Útgent er á timburverönd til suðurs úr stofu.
Svefnherbergis gangur er með parket á gólfi.
Svefnherbergin eru tvö, bæði með parket á gólfi og hjónaherbergi með fataskáp.
Eldhús er með parket á gólfi. Eldhúsinnrétting er með neðri skápum og flísum við borðplötu á austurvegg og helluborði.
Baðherbergið er með flísum á gólfi og veggjum, baðkar m/sturtu, handklæðaofn, upphengdu klósetti og innréttingu með vask.
Flísar í forstofu og baðherbergi er síðan 2023. Voru þá lagnir yfirfarnar og hiti settur í gólf undir flísar.
Sér geymsla alls 7,1 m2 (0024) samkvæmt fasteignayfirliti Húsnæðis- og mannvirkjastofnunar.
Samkvæmt þinglýstri eignaskiptayfirysingu er sameiginlegt þvottarými, vagna- og hjólageymsla á jarðhæð hússins.
Samkvæmt þinglýstri eignaskiptayfirlýsingu eru hlutfallstölur íbúðar;
1. Í húsi og lóð, Skarðshíð 2-4-6, 3,20%
2. Í stigahúsi nr. 2, Y-3, 9,08%
3. Í hitakostnaði nr. 2 9,22%
4. Í rafm. sameign nr. 2 10,00%
Allar nánari upplýsingar veitir Einar Pálsson, löggiltur fasteignasali í síma 857-8392 eða á netfanginu [email protected]
-Eignin er í einkasölu
-Íbúðin er laus til afhendingar við undirritun á kaupsamning
-Mest af innbúi getur fylgt kaupunum fyrir utan nokkra persónulega muni.
-Ljósleiðari tengdur inn í íbúð
Skoðunarskylda:
Í lögum um fasteignakaup nr. 40/2002 er kveðið á um ríka skoðunarskyldu kaupenda á fasteignum. Vill Borg fasteignasala því benda væntanlegum kaupendum á að kynna sér vel ástand fasteigna fyrir kauptilboðsgerð og leita til þar til bærra sérfræðinga um nánari skoðun ef þurfa þykir.
Gjöld sem kaupandi þarf að standa straum af vegna kaupanna:
1. Stimpilgjald af kaupsamningi, fyrstu kaup (0,4%), almenn kaup (0,8%), lögaðilar (1,6%) af heildarfasteignamati.
2. Þinglýsingargjald af kaupsamningi, veðskuldabréfi, mögulegu veðleyfi o.fl. - kr. 3.800 af hverju skjali.
3. Lántökugjald lánastofnun.ar - almennt 0,5 - 1,0% af höfuðstól skuldabréfs. Nánari upplýsingar á t.d. heimasíðu lánastofnana.
4. Umsýslugjald til fasteignasölu skv. kauptilboði.
Ár
Fasteignamat
Kaupverð
Stærð
Fermetraverð
22. okt. 2021
21.500.000 kr.
30.500.000 kr.
74.1 m²
411.606 kr.
16. júl. 2018
16.100.000 kr.
22.500.000 kr.
74.1 m²
303.644 kr.
14. mar. 2014
11.750.000 kr.
16.050.000 kr.
74.1 m²
216.599 kr.
Byggt á upplýsingum úr Þjóðskrá Íslands frá 2006-2026