Upplýsingar
90,6 m²
3 herb.
Lýsing
Skeifan kynnir: Glæsilegt miðju raðhús með 2-3 svefnherbergjum, sér inngangur, um 14 fm garðskúr og um 40 fm palli á frábærum stað við Bárusker 8 245 Sandgerðisbæ.
Nánari upplýsingar veitir HALLDÓR / Sími: 618-9999 / HALLDÓ[email protected]
Húsin afhendast fullbúin með vönduðum innréttingum ásamt gólfefnum.
-Viðhaldslítil klæðning á húsum og lágmarkssameign tryggir hagkvæman rekstur íbúða.
-Bárusker er í nýju hverfi með alla þjónustu í næsta nágrenni. Skóli, verslun og þjónusta er einnig í næsta nágrenni.
Almennt um húsin:
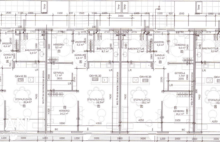
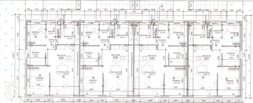
Íbúð: skiptist í forstofu, eldhús og stofu, 2-3 svefnherbergi og baðherbergi með þvottaaðstöðu. Um 14 fm geymsla er í garði og um 40 fm pallur.
Innréttingar og hurðir: Allar innréttingar verða af vandaðri gerð frá HTH/ORMSSON.Innihurðir verða hvítlakkaðar.
Baðherbergi/þvottahús: Baðherbergisinnrétting og þvottahúsinnrétting fyrir þvottavél og þurrkara. Innangeng sturta.
Heimilistæki: Eldhús skilast með blástursofni, helluborði, innbyggðum ísskáp og uppþvottavél frá viðurkenndum aðilum.
Gólfefni: Íbúðum verður skilað með gólfefnum.
Geymsla: Er skráð innan íbúðar sem nýta má sem m.a. herbergi í miðju húsum er ekki gluggi á geymslu.
Frágangur lóðar: Lóð verður skilað fullfrágenginni með palli.
Rafbílahleðsla: Tengibúnaður (ídráttarrör) fyrir hleðslustöðvar verður aðgengilegt við enda lóðar.
Garðskúr: Ídráttarrör verðu fyrir rafmagn og vatn í skúrnum.
Almennar upplýsingar um byggingaverktaka:
Rætur byggingar er lóðahafi og seljandi eignanna. Byggingaraðili hússins er Rætur verktakar ehf. Rætur er alhliða byggingafélag sem er byggt á yfir 25 ára grunni. Starfsmenn félagsins eru með áratuga reynslu af byggingaverkefnum og rekstri. Áhersla félaganna er bygging gæðahúsnæðis fyrir fjölskyldur á sanngjörnu verði. Í samræmi við gildi félagsins þá leggjum við mikla áherslu á að kaupendur okkar fasteigna gangi sáttir frá borði.
Kaupendur greiða skipulagsgjald þ.e 0,3% af endanlegu brunabótamati þegar það verður innheimt.
Kostnaður kaupanda vegna kaupa: Stimpilgjald kaupsamnings einstaklinga er 0,8% og lögaðila 1,6% af fasteignamati eignar. Lántökugjald getur verið breytilegt eftir lánastofnunum, oftast 1%. Þinglýsingargjald er 2.700 kr fyrir hvert skjal. Þjónustu- og umsýslugjald til fasteignasölu skv. kauptilboði.
Um skoðunar- og aðgæsluskyldu: Í lögum um fasteignakaup nr. 40/2002 er kveðið á um ríka skoðunarskyldu kaupenda á fasteignum. Skeifan fasteignasala bendir öllum sem hugsa sér að kaupa, að kynna sér vel ástand fasteignarinnar við skoðun fyrir tilboðsgerð og leita til sérfræðinga um nánari ástandsskoðun ef þörf þykir.
Forsendur söluyfirlits: Söluyfirlit er samið af fasteignasala í samræmi við ákvæði laga nr. 70/2015. Þær upplýsingar sem fram koma í söluyfirliti þessu eru sóttar í opinberar skrár, til seljanda sjálfs og eftir atvikum til húsfélags. Seljandi veitir upplýsingar um eign í samræmi við upplýsingaskyldu laga um fasteignakaup nr. 40/2002. Fasteignasali sannreynir að þær upplýsingar séu réttar með sjónskoðun á eigninni. Fasteignasali getur ekki fullyrt um ástand og eiginleika þeirra hluta fasteigna sem ekki eru aðgengilegir og sjást ekki berum augum, t.d. lagnir, dren, skólp og þak.
Nánari upplýsingar veitir HALLDÓR / Sími: 618-9999 / HALLDÓ[email protected]
Húsin afhendast fullbúin með vönduðum innréttingum ásamt gólfefnum.
-Viðhaldslítil klæðning á húsum og lágmarkssameign tryggir hagkvæman rekstur íbúða.
-Bárusker er í nýju hverfi með alla þjónustu í næsta nágrenni. Skóli, verslun og þjónusta er einnig í næsta nágrenni.
Almennt um húsin:
Íbúð: skiptist í forstofu, eldhús og stofu, 2-3 svefnherbergi og baðherbergi með þvottaaðstöðu. Um 14 fm geymsla er í garði og um 40 fm pallur.
Innréttingar og hurðir: Allar innréttingar verða af vandaðri gerð frá HTH/ORMSSON.Innihurðir verða hvítlakkaðar.
Baðherbergi/þvottahús: Baðherbergisinnrétting og þvottahúsinnrétting fyrir þvottavél og þurrkara. Innangeng sturta.
Heimilistæki: Eldhús skilast með blástursofni, helluborði, innbyggðum ísskáp og uppþvottavél frá viðurkenndum aðilum.
Gólfefni: Íbúðum verður skilað með gólfefnum.
Geymsla: Er skráð innan íbúðar sem nýta má sem m.a. herbergi í miðju húsum er ekki gluggi á geymslu.
Frágangur lóðar: Lóð verður skilað fullfrágenginni með palli.
Rafbílahleðsla: Tengibúnaður (ídráttarrör) fyrir hleðslustöðvar verður aðgengilegt við enda lóðar.
Garðskúr: Ídráttarrör verðu fyrir rafmagn og vatn í skúrnum.
Almennar upplýsingar um byggingaverktaka:
Rætur byggingar er lóðahafi og seljandi eignanna. Byggingaraðili hússins er Rætur verktakar ehf. Rætur er alhliða byggingafélag sem er byggt á yfir 25 ára grunni. Starfsmenn félagsins eru með áratuga reynslu af byggingaverkefnum og rekstri. Áhersla félaganna er bygging gæðahúsnæðis fyrir fjölskyldur á sanngjörnu verði. Í samræmi við gildi félagsins þá leggjum við mikla áherslu á að kaupendur okkar fasteigna gangi sáttir frá borði.
Kaupendur greiða skipulagsgjald þ.e 0,3% af endanlegu brunabótamati þegar það verður innheimt.
Kostnaður kaupanda vegna kaupa: Stimpilgjald kaupsamnings einstaklinga er 0,8% og lögaðila 1,6% af fasteignamati eignar. Lántökugjald getur verið breytilegt eftir lánastofnunum, oftast 1%. Þinglýsingargjald er 2.700 kr fyrir hvert skjal. Þjónustu- og umsýslugjald til fasteignasölu skv. kauptilboði.
Um skoðunar- og aðgæsluskyldu: Í lögum um fasteignakaup nr. 40/2002 er kveðið á um ríka skoðunarskyldu kaupenda á fasteignum. Skeifan fasteignasala bendir öllum sem hugsa sér að kaupa, að kynna sér vel ástand fasteignarinnar við skoðun fyrir tilboðsgerð og leita til sérfræðinga um nánari ástandsskoðun ef þörf þykir.
Forsendur söluyfirlits: Söluyfirlit er samið af fasteignasala í samræmi við ákvæði laga nr. 70/2015. Þær upplýsingar sem fram koma í söluyfirliti þessu eru sóttar í opinberar skrár, til seljanda sjálfs og eftir atvikum til húsfélags. Seljandi veitir upplýsingar um eign í samræmi við upplýsingaskyldu laga um fasteignakaup nr. 40/2002. Fasteignasali sannreynir að þær upplýsingar séu réttar með sjónskoðun á eigninni. Fasteignasali getur ekki fullyrt um ástand og eiginleika þeirra hluta fasteigna sem ekki eru aðgengilegir og sjást ekki berum augum, t.d. lagnir, dren, skólp og þak.
SKEIFAN SKILAR ÁRANGRI - SÍÐAN 1985
Skeifan fasteignasala | Suðurlandsbraut 46 | 108 Reykjavík | Opið frá kl. 9-17 mánudaga til föstudaga | www.skeifan.is
Skeifan á Facebook