Upplýsingar
Byggt 2025
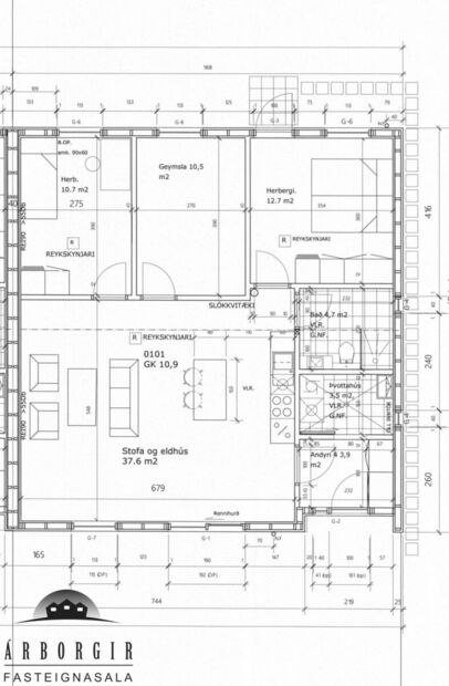
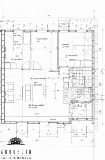
95,9 m²
4 herb.
1 baðherb.
3 svefnh.
Þvottahús
Sérinngangur
Lýsing
ÁRBORGIR SELFOSSI S 482 4800 kynna;
Fallegt og vel skipulagt endaraðhús í nýju hverfi í Þorlákshöfn.
Húsið er timburhús, klætt að utan með lituðu bárujárni, bárujárn er á þaki.
Heildarstærð eignarinnar er 95,6m2 og skiptist hún í forstofu, þvottahús, baðherbergi, 3 svefnherbergi, stofu og eldhús í opnu rými.
Í dag er húsið tæplega tilbúið til innréttinga en verður selt fullbúið eins og segir hér að neðan.
Nánari lýsing:
Flísar eru á gólfi í forstofu og þar er góður fataskápur.
Svefnherbergin eru 3, öll parketlögð og eru fataskápar í þeim öllum frá Ikea og hurðir frá Birgisson. Í hjónaherbergi er hurð út á baklóð.
Baðherbergi er flísalagt, bæði gólf og veggir, góð gólfsturta auk þess sem þar er snyrtileg innrétting.
Í eldhúsi er smekkleg innrétting frá Ikea með helluborði, ofni, vaski og blöndunartækjum. Parket á gólfi og rennihurð út í pall.
Þvottahús er flísalagt, þar er innrétting fyrir tæki í vinnuhæð. Yfir þvottahúsi og baðherbergi er geymsluloft.
Gólfhiti er í húsinu og er loftræsting í alrými, baðherbergi og þvottahúsi.
Útilýsing er í þakkanti og innstungur fyrir jólaseríur.
Hleðslustöð fyrir rafbíla er komin upp við bílaplan.
Bílaplan er hellulagt með snjóbræðslu (ótengdri). Lóðin er þökulögð
Fyrir aftan hús er krani og lögn til þess að draga í fyrir heitan pott.
Steypt 3ja tunnu sorptunnuskýli fylgir.
Staðsetning er mjög góð og er í göngufæri við skóla, sundlaug, verslanir og íþróttasvæði.
Nánari upplýsingar og bókið skoðun á skrifstofu Árborga
[email protected] eða í síma 482-4800.
Gjöld sem kaupandi þarf að standa straum af vegna kaupanna:
1. Stimpilgjald af kaupsamningi sem er: 0,8% af fasteignamati fyrir einstaklinga. 0,4% fyrir fyrstu kaupendur og 1,6% fyrir lögaðila.
2. Þinglýsingargjald af kaupsamningi, veðskuldabréfum, veðleyfum o.fl. kr. 3.800,- hvert skjal.
3. Lántökugjald lánastofnunar. Skv. gjaldskrá viðkomandi lánveitanda.
4. Umsýslugjald kaupanda skv. gjaldskrá.
5. Þegar um nýbyggingu er að ræða greiðir kaupandi skipulagsgjald, 0,3% af brunabótamáti, þegar það er lagt á.
Fallegt og vel skipulagt endaraðhús í nýju hverfi í Þorlákshöfn.
Húsið er timburhús, klætt að utan með lituðu bárujárni, bárujárn er á þaki.
Heildarstærð eignarinnar er 95,6m2 og skiptist hún í forstofu, þvottahús, baðherbergi, 3 svefnherbergi, stofu og eldhús í opnu rými.
Í dag er húsið tæplega tilbúið til innréttinga en verður selt fullbúið eins og segir hér að neðan.
Nánari lýsing:
Flísar eru á gólfi í forstofu og þar er góður fataskápur.
Svefnherbergin eru 3, öll parketlögð og eru fataskápar í þeim öllum frá Ikea og hurðir frá Birgisson. Í hjónaherbergi er hurð út á baklóð.
Baðherbergi er flísalagt, bæði gólf og veggir, góð gólfsturta auk þess sem þar er snyrtileg innrétting.
Í eldhúsi er smekkleg innrétting frá Ikea með helluborði, ofni, vaski og blöndunartækjum. Parket á gólfi og rennihurð út í pall.
Þvottahús er flísalagt, þar er innrétting fyrir tæki í vinnuhæð. Yfir þvottahúsi og baðherbergi er geymsluloft.
Gólfhiti er í húsinu og er loftræsting í alrými, baðherbergi og þvottahúsi.
Útilýsing er í þakkanti og innstungur fyrir jólaseríur.
Hleðslustöð fyrir rafbíla er komin upp við bílaplan.
Bílaplan er hellulagt með snjóbræðslu (ótengdri). Lóðin er þökulögð
Fyrir aftan hús er krani og lögn til þess að draga í fyrir heitan pott.
Steypt 3ja tunnu sorptunnuskýli fylgir.
Staðsetning er mjög góð og er í göngufæri við skóla, sundlaug, verslanir og íþróttasvæði.
Nánari upplýsingar og bókið skoðun á skrifstofu Árborga
[email protected] eða í síma 482-4800.
Gjöld sem kaupandi þarf að standa straum af vegna kaupanna:
1. Stimpilgjald af kaupsamningi sem er: 0,8% af fasteignamati fyrir einstaklinga. 0,4% fyrir fyrstu kaupendur og 1,6% fyrir lögaðila.
2. Þinglýsingargjald af kaupsamningi, veðskuldabréfum, veðleyfum o.fl. kr. 3.800,- hvert skjal.
3. Lántökugjald lánastofnunar. Skv. gjaldskrá viðkomandi lánveitanda.
4. Umsýslugjald kaupanda skv. gjaldskrá.
5. Þegar um nýbyggingu er að ræða greiðir kaupandi skipulagsgjald, 0,3% af brunabótamáti, þegar það er lagt á.