Upplýsingar
133,4 m²
4 herb.
1 baðherb.
3 svefnh.
Þvottahús
Bílskúr
Sérinngangur
Lýsing
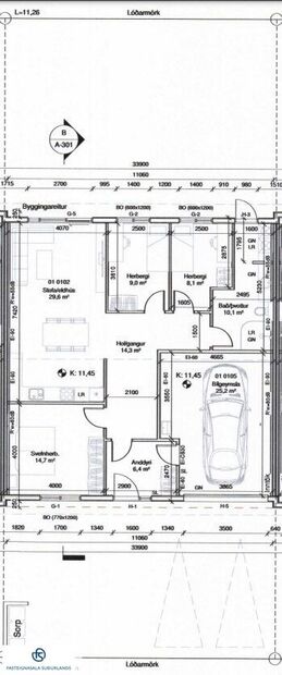
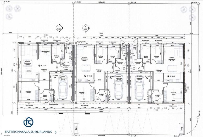
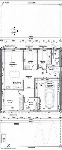
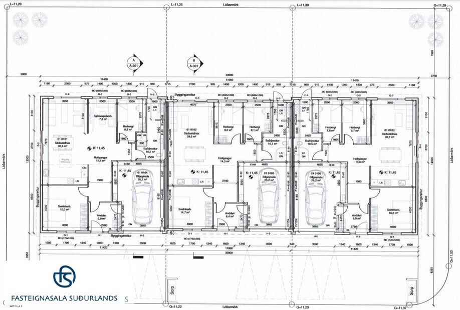
Fasteignasala Suðurlands (s 483 3424) kynnir: NÚPAHRAUN 4, ÞORLÁKSHÖFN, NÝTT, glæsilegt, miðjuraðhús með 3 svefnherbergjum og bílskúr. Húsið er einstaklega skemmtilega skipulagt og snýr stofan í vestur ! Grænt svæði er á bakvið húsið. Húsið afhendist fullbúið við kaupsamning, með þökulagðri lóð og möl í plani.!
Loft eru upp tekin í húsinu, sem gerir það einstaklega bjart og skemmtilegt. Fallegir gólfsíðir gluggar og rennihurð eru í stofu.
Möguleiki er á uppítöku á ódýrari eign.
* Bóka má skoðun og fá allar nánari upplýsingar í síma 483 3424 og á [email protected] *
Húsið skiptist svo:
* Mjög rúmgott anddyri með flísum á gólfi og góðum skáp.
* Rúmgott eldhús með fallegri innréttingu. Innfelld uppþvottavél fylgir.
* Stofa og eldhús eru í opnu rými. Utangengt er úr stofunni í garðinn um rennihurð. Fallegt harðparket er á gólfi. Fallegir gólfsíðir gluggar og rennihurð eru í stofu sem hleypa fallegri birtu inn í rýmið.
* 3 stór svefnherbergi með harðparketi á gólfi og góðum fataskápum.
** Loft eru upp tekin í húsinu og eru þau með innfelldri lýsingu.
* Baðherbergi með fallegri innréttingu, spegli og flísum á gólfi og veggjum og sturtu úr glerþili.
* Þvottahús er inn af baðherbergi. Flísar eru á gólfi og innrétting undir þvottavél og þurrkara. Utangengt er úr þvottahúsinu.
Á einfaldan hátt er hægt að loka milli baðherbergis og þvottahúss !
* Í loftum eru hvítar loftaþiljur. Húsið er málað að innan í ljósum lit.
* Allar innihurðar eru yfirfelldar, hvítar að lit.
* Gólfhitalagnir eru í húsinu. Stýringar og annar búnaður fylgir.
* Stór, fullfrágenginn bílskúr. Epoxy verður sett á gólf. Á einfaldan hátt er hægt að setja milliloft í bílskúrinn.
* Möl er í bílaplani.
* Lóð verður þökulögð.
Húsið er klætt að utan með dökkgráu bárustáli og lerki, dökkgráum gluggum og hurðum og dökkgráu þakstáli!
FASTEIGNASALA SUÐURLANDS HEFUR VEITT VANDAÐA OG GÓÐA ÞJÓNUSTU SÍÐAN 2003 !
Fasteignasala Suðurlands, Unubakka 3b, Þorlákshöfn.
Heimasíða fasteignasölunnar: https://www.eignin.is/
Í Þorlákshöfn er þjónustustig mjög gott - hagnýtar upplýsingar:
Verslun og þjónusta: Hér má m.a. finna:
Verslun KRÓNUNNAR
Apótekarann.
Bakaríið Kaffiskjóðan (facebook: kaffiskjóðan)
Hárgreiðslustofuna Kompuna (facebook: kompan klippistofa)
Rakarstofu Kjartans (facebook: kjartan rakari)
Vínbúðina.
Veitingastaðina:
Thai Sakhon Restaurant (facebook: thai sakhon restaurant)
Caffe Bristól
Svarta Sauðinn (facebook: svarti sauðurinn)
Skálann, sem jafnframt er sölustaður Orkunnar. Einnig er hér ÓB-stöð.
Hér er mjög góð heilsugæsla.
Hér er tannlæknir.
Í Ráðhúsi bæjarins eru, auk skrifstofu sveitarfélagsins:
Mjög gott bókasafn (facebook: Bæjarbókasafn Ölfuss) Landsbankinn
Tómstundir og afþreying:
Íþróttaiðkun í Þorlákshöfn er gríðarlega öflug og þá helst meðal barna og unglinga og er aðstaða til íþróttaiðkunar öll til mikillar fyrirmyndar.
Frá fjögurra ára aldri er í boði að iðka fótbolta (aegirfc.is), fimleika (facebook: fimleikadeild Þórs), körfubolta (facebook: Þór Þorlákshöfn) og frjálsar, ásamt því að iðkaður er badminton. Hér er svo einnig Litli íþróttaskólinn á vegum fimleikadeildarinnar fyrir börn frá eins árs aldri.
Motorcrossá braut rétt utan við bæinn.
Hestamennska (facebook: hestamannafélagið háfeti) með fallegum reiðleiðum allt um kring
Golf (facebook: golfklúbbur Þorlákshafnar) á rómuðum golfvelli sem staðsettur er í jaðri byggðarinnar, rétt við sjávarsíðuna.
Í íþróttamiðstöðinni er mjög góð líkamsræktar-aðstaða þar sem hægt er að komast í einka- þjálfun, spinning, hóptíma, líkamsrækt fyrir eldri borgara o.m.fl. Þar er að finna góða sundaðstöðumeð útilaug, heitum pottum, vaðlaug og skemmtilegri innilaug fyrir fjölskyldufólk. Jógastúdíó (Jógahornið). Öflug sjúkraþjálfun.
Afþreying er hér af ýmsum toga:
hér má meðal annars finna: Fallegt útivistarsvæði við vitann með útsýnispalli og göngustíg meðfram bjarginu í einstakri náttúrufegurð. Heilsustíg má finna í bænum þar sem líkamsræktartæki eru við göngu/hlaupastíga.
Hér er æðisleg strönd sem mikið er mikið notuð til útivistar og þar má oft sjá menn á brimbrettum, en slíkt er gott að stunda hér. Í sjónum við útsýnispallinn er einn vinsælasta staður til brimbrettaiðkunar á Íslandi.
Blackbeach tours (www.blackbeachtours.is) er afþreyingar fyrirtæki sem býður upp á fjórhjólaferðir bæði í fjöruna og um hraunið, RIB bátaferðir meðfram bjarginu og adrenalínferðir, snekkjuleigu og sjóstöng og jógaferðir úti í náttúrunni.
Einnig er hér: Öflugt leikfélag (facebook: leikfélag ölfuss).
Hinir ýmsu kórar (facebook: Tónar og Trix, Kyrjukórinn, ofl.) Einn stærsti Kiwanisklúbbur landsins (facebook: Kiwanisklúbburinn Ölver) O.sfr. o.s.frv.
** Allar helstu fréttir úr sveitarfélaginu má finna á: www.hafnarfrettir.is
Loft eru upp tekin í húsinu, sem gerir það einstaklega bjart og skemmtilegt. Fallegir gólfsíðir gluggar og rennihurð eru í stofu.
Möguleiki er á uppítöku á ódýrari eign.
* Bóka má skoðun og fá allar nánari upplýsingar í síma 483 3424 og á [email protected] *
Húsið skiptist svo:
* Mjög rúmgott anddyri með flísum á gólfi og góðum skáp.
* Rúmgott eldhús með fallegri innréttingu. Innfelld uppþvottavél fylgir.
* Stofa og eldhús eru í opnu rými. Utangengt er úr stofunni í garðinn um rennihurð. Fallegt harðparket er á gólfi. Fallegir gólfsíðir gluggar og rennihurð eru í stofu sem hleypa fallegri birtu inn í rýmið.
* 3 stór svefnherbergi með harðparketi á gólfi og góðum fataskápum.
** Loft eru upp tekin í húsinu og eru þau með innfelldri lýsingu.
* Baðherbergi með fallegri innréttingu, spegli og flísum á gólfi og veggjum og sturtu úr glerþili.
* Þvottahús er inn af baðherbergi. Flísar eru á gólfi og innrétting undir þvottavél og þurrkara. Utangengt er úr þvottahúsinu.
Á einfaldan hátt er hægt að loka milli baðherbergis og þvottahúss !
* Í loftum eru hvítar loftaþiljur. Húsið er málað að innan í ljósum lit.
* Allar innihurðar eru yfirfelldar, hvítar að lit.
* Gólfhitalagnir eru í húsinu. Stýringar og annar búnaður fylgir.
* Stór, fullfrágenginn bílskúr. Epoxy verður sett á gólf. Á einfaldan hátt er hægt að setja milliloft í bílskúrinn.
* Möl er í bílaplani.
* Lóð verður þökulögð.
Húsið er klætt að utan með dökkgráu bárustáli og lerki, dökkgráum gluggum og hurðum og dökkgráu þakstáli!
FASTEIGNASALA SUÐURLANDS HEFUR VEITT VANDAÐA OG GÓÐA ÞJÓNUSTU SÍÐAN 2003 !
Fasteignasala Suðurlands, Unubakka 3b, Þorlákshöfn.
Heimasíða fasteignasölunnar: https://www.eignin.is/
Í Þorlákshöfn er þjónustustig mjög gott - hagnýtar upplýsingar:
Verslun og þjónusta: Hér má m.a. finna:
Verslun KRÓNUNNAR
Apótekarann.
Bakaríið Kaffiskjóðan (facebook: kaffiskjóðan)
Hárgreiðslustofuna Kompuna (facebook: kompan klippistofa)
Rakarstofu Kjartans (facebook: kjartan rakari)
Vínbúðina.
Veitingastaðina:
Thai Sakhon Restaurant (facebook: thai sakhon restaurant)
Caffe Bristól
Svarta Sauðinn (facebook: svarti sauðurinn)
Skálann, sem jafnframt er sölustaður Orkunnar. Einnig er hér ÓB-stöð.
Hér er mjög góð heilsugæsla.
Hér er tannlæknir.
Í Ráðhúsi bæjarins eru, auk skrifstofu sveitarfélagsins:
Mjög gott bókasafn (facebook: Bæjarbókasafn Ölfuss) Landsbankinn
Tómstundir og afþreying:
Íþróttaiðkun í Þorlákshöfn er gríðarlega öflug og þá helst meðal barna og unglinga og er aðstaða til íþróttaiðkunar öll til mikillar fyrirmyndar.
Frá fjögurra ára aldri er í boði að iðka fótbolta (aegirfc.is), fimleika (facebook: fimleikadeild Þórs), körfubolta (facebook: Þór Þorlákshöfn) og frjálsar, ásamt því að iðkaður er badminton. Hér er svo einnig Litli íþróttaskólinn á vegum fimleikadeildarinnar fyrir börn frá eins árs aldri.
Motorcrossá braut rétt utan við bæinn.
Hestamennska (facebook: hestamannafélagið háfeti) með fallegum reiðleiðum allt um kring
Golf (facebook: golfklúbbur Þorlákshafnar) á rómuðum golfvelli sem staðsettur er í jaðri byggðarinnar, rétt við sjávarsíðuna.
Í íþróttamiðstöðinni er mjög góð líkamsræktar-aðstaða þar sem hægt er að komast í einka- þjálfun, spinning, hóptíma, líkamsrækt fyrir eldri borgara o.m.fl. Þar er að finna góða sundaðstöðumeð útilaug, heitum pottum, vaðlaug og skemmtilegri innilaug fyrir fjölskyldufólk. Jógastúdíó (Jógahornið). Öflug sjúkraþjálfun.
Afþreying er hér af ýmsum toga:
hér má meðal annars finna: Fallegt útivistarsvæði við vitann með útsýnispalli og göngustíg meðfram bjarginu í einstakri náttúrufegurð. Heilsustíg má finna í bænum þar sem líkamsræktartæki eru við göngu/hlaupastíga.
Hér er æðisleg strönd sem mikið er mikið notuð til útivistar og þar má oft sjá menn á brimbrettum, en slíkt er gott að stunda hér. Í sjónum við útsýnispallinn er einn vinsælasta staður til brimbrettaiðkunar á Íslandi.
Blackbeach tours (www.blackbeachtours.is) er afþreyingar fyrirtæki sem býður upp á fjórhjólaferðir bæði í fjöruna og um hraunið, RIB bátaferðir meðfram bjarginu og adrenalínferðir, snekkjuleigu og sjóstöng og jógaferðir úti í náttúrunni.
Einnig er hér: Öflugt leikfélag (facebook: leikfélag ölfuss).
Hinir ýmsu kórar (facebook: Tónar og Trix, Kyrjukórinn, ofl.) Einn stærsti Kiwanisklúbbur landsins (facebook: Kiwanisklúbburinn Ölver) O.sfr. o.s.frv.
** Allar helstu fréttir úr sveitarfélaginu má finna á: www.hafnarfrettir.is