Löggiltir fasteignasalar innan Félags fasteignasala:
Halla Unnur Helgadóttir
Elín Urður Hrafnberg
Guðmunda Björnsdóttir Stackhouse
Herdís Valb. Hölludóttir
Ellert Bragi Sigurþórsson
Daði Runólfsson
Vista
raðhús

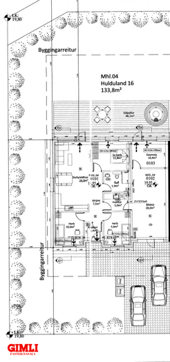
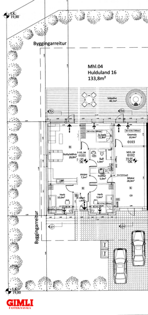
Hulduland 16

800 Selfoss

86.000.000 kr.

642.750 þ.kr./m2
Fasteignanúmer

F2503052

Fasteignamat

84.150.000 kr.

Brunabótamat

68.650.000 kr.

Áhvílandi

0 kr.

Arion banki – Reikna lán
Upplýsingar
Verðsaga
svg
Byggt 2019
svg
133,8 m²
svg
3 herb.
svg
1 baðherb.
svg
2 svefnh.
svg
Þvottahús
svg
Bílskúr
svg
Sérinngangur
svg
Hjólastólaaðgengi
Opið hús: 12. apríl 2026 kl. 13:00 til 13:30

Opið hús: Hulduland 16, 800 Selfoss. Eignin verður sýnd sunnudaginn 12. apríl 2026 milli kl. 13:00 og kl. 13:30.

Lýsing

Gimli fasteignasala og Elín Urður Hrafnberg kynna:  Virkilega vandað og flott 3-4ra herbergja endaraðhús við Hulduland 16 á Selfossi.
Um er að ræða bjart og snyrtilegt 133.8 fm endaraðhús með innbyggðum bílskúr. Húsið er byggt úr timbri árið 2019 og er klætt að utan með lituðu bárujárni og litað járn er á þaki. Að innan skiptist eignin í forstofu, tvö svefnherbergi, eldhús/borðstofu, stofu, baðherbergi, þvottahús og bílskúr með geymslulofti yfir bílskúrnum. Innbyggð lýsing með dimmerum í flestum rýmum og gólfhiti með stýringum.
Úr stofu er komið út á nýlega verönd í suður/suðvestur með skjólgirðingu, lagnir fyrir heitum pott til staðar og grillskýli, einnig er ca 12-15 fm geymsluskúr á lóðinni sem er á steyptri plötu. 
Steypt stétt er að framan við innganginn en mulningur í bílaplani. 


Eignin Hulduland 16 er skráð sem hér segir hjá FMR: Eign 250-3052, birt stærð 133.8 fm. Nánar tiltekið eign merkt 01-01, ásamt öllu því sem eigninni fylgir, þar með talið tilheyrandi lóðar og sameignarréttindi.
Nánari upplýsingar veitir: Elín Urður Hrafnberg Löggiltur fasteigna- og skipasali, í síma 6902602, tölvupóstur [email protected] eða [email protected]

NÁNARI LÝSING:
Forstofa: flísar á gólfi og skápur. 
Eldhús: Í eldhúsi er hvít innrétting með góðum tækjum, innbyggðum ísskáp og innbyggðri uppþvottavél, eyja með spanhelluborði þar sem hægt er að sitja við. Harðparket er á gólfi. 
Stofa: með harðparketi á gólfi og útgengt út á afgirta verönd. 
Hjónaherbergi: er með harparketi á gólfi og góðum skápum.
Barnaherbergið: er með harðparketi á gólfi. 
Baðherbergi: með flísum á gólfi og að hluta til á veggjum, hvít innrétting með vask, speglaskáp með ljósum, walk-in sturta, upphengt wc, handklæðaofn og langur skápur.
Þvottahús: flísar á gólfi góð hvít innrétting þar sem tækin eru í vinnuhæð, gott vinnuborð og snúrur fyrir ofan.
Bílskúrinn: með epoxý á gólfi, búið að stúka af vinnurými í endanum með útgengi út á afgirtan pall, góð innrétting, rafmagnshurðaopnari, gönguhurð og geymsluloft er yfir bílskúrnum. 

Niðurlag:
Virkilega fallegt og vandað hús sem er vel staðsett á Selfossi, stutt í leikskóla, skóla, Fjölbrautaskóla Suðurlands, verslanir, sund og líkamsræktarstöð. Einnig er stutt í náttúruna með fallegum gönguleiðum.

Gimli fasteignasala leggur áherslu á traust, áreiðanleika og góða þjónustu.

Það er okkar trú að það skipti öllu máli í fasteignaviðskiptum að viðskiptavinurinn fái trausta og góða þjónustu. Við hjá Gimli höfum stundað fasteignaviðskipti með farsælum hætti í meira en fjóra áratugi. Hjá okkur starfa sérhæfðir og reyndir fasteignasalar sem sinna stórum sem smáum verkefnum af nákvæmni og þekkingu sem skilar árangri.

Hvar erum við?
Gimli Fasteignasala er staðsett á jarðhæð í Skipholti 35 í Reykjavík en einnig rekum við söluskrifstofu að Eyrarvegi 29. 2 hæð á Selfossi.

Við höfum opið frá 10-15 mánudaga til föstudaga. Sláðu á þráðinn eða líttu við hjá okkur í Skipholtinu næst þegar þú átt leið hjá. Við erum alltaf með heitt á könnunni. sími: 570 4800, tölvupóstur: [email protected]

Gimli gerir betur...
Heimasíða Gimli fasteignasölu

Gimli á Facebook

Um skoðunar- og aðgæsluskyldu kaupenda: Í lögum um fasteignakaup nr. 40/2002 er kveðið á um ríka skoðunarskyldu kaupenda á fasteignum. Gimli fasteignasala bendir væntanlegum kaupendum á að kynna sér vel ástand eigna við skoðun og fyrir tilboðsgerð og að leita til sérfræðinga um nánari ástandsskoðun ef þörf er á.

Forsendur söluyfirlits: Söluyfirlit er samið af fasteignasala í samræmi við ákvæði laga nr. 70/2015. Þær upplýsingar sem fram koma í söluyfirliti þessu eru sóttar í opinberar skrár, til seljanda sjálfs og eftir atvikum til húsfélags. Seljandi veitir upplýsingar um eign í samræmi við upplýsingaskyldu laga um fasteignakaup nr. 40/2002. Fasteignasali sannreynir að þær upplýsingar séu réttar með sjónskoðun á eigninni. Fasteignasali getur ekki fullyrt um ástand og eiginleika þeirra hluta fasteigna sem ekki eru aðgengilegir og sjást ekki berum augum, t.d. lagnir, dren, skólp og þak.

Gjöld sem kaupandi þarf að standa straum af vegna kaupanna: Stimpilgjald af kaupsamningi sem er hlutfall af fasteignamati. Stimpilgjald er 0,8% fyrir einstaklinga (0,4% við fyrstu kaup m.v. að lágmarki 50% eignarhlut) og 1,6% fyrir lögaðila. Þinglýsingargjald hvers skjals er kr. 3800,- .Lántökugjald lánastofnunar skv. gjaldskrá viðkomandi lánveitanda. Umsýsluþóknun fasteignasölu skv. gjaldskrá.Ef um nýbyggingu er að ræða greiðir kaupandi skipulagsgjald, 0,3% af brunabótamati, þegar það er lagt á.
Teikningar sem fylgja lýsingu eignarinnar og myndum eru til viðmiðunar og ekki alltaf í samræmi við samþykktar teikningar af eigninni.
Myndir í auglýsingu eru í einkaeigu og er notkun þeirra með öllu óheimil án formlegs leyfis fasteignasala
 

Gimli fasteignasala leggur áherslu á traust, áreiðanleika og góða þjónustu.

Það er okkar trú að það skipti öllu máli í fasteignaviðskiptum að viðskiptavinurinn fái trausta og góða þjónustu. Við hjá Gimli höfum stundað fasteignaviðskipti með farsælum hætti í meira en fjóra áratugi. Hjá okkur starfa sérhæfðir og reyndir fasteignasalar sem sinna stórum sem smáum verkefnum af nákvæmni og þekkingu sem skilar árangri.

Hvar erum við?
Gimli Fasteignasala er staðsett á jarðhæð í Skipholti 35 í Reykjavík en einnig rekum við söluskrifstofu að Eyrarvegi 29. 2 hæð á Selfossi.

Við höfum opið frá 10-15 mánudaga til föstudaga. Sláðu á þráðinn eða líttu við hjá okkur í Skipholtinu næst þegar þú átt leið hjá. Við erum alltaf með heitt á könnunni.

Gimli gerir betur...

img
Elín Urður Hrafnberg
Lögg.fasteignasali innan félags fasteignasala
Gimli fasteignasala
Skipholt 35, 105 Reykjavík
Gimli fasteignasala

Gimli fasteignasala

Skipholt 35, 105 Reykjavík
phone
img

Elín Urður Hrafnberg

Skipholt 35, 105 Reykjavík
Ár
Fasteignamat
Kaupverð
Stærð
Fermetraverð
26. mar. 2024
75.000.000 kr.
78.500.000 kr.
133.8 m²
586.697 kr.
11. jan. 2019
4.880.000 kr.
28.500.000 kr.
133.8 m²
213.004 kr.
Byggt á upplýsingum úr Þjóðskrá Íslands frá 2006-2026
Gimli fasteignasala

Gimli fasteignasala

Skipholt 35, 105 Reykjavík
phone

Elín Urður Hrafnberg

Skipholt 35, 105 Reykjavík