Upplýsingar
Verðsaga
Byggt 1963
117,4 m²
4 herb.
1 baðherb.
3 svefnh.
Þvottahús
Bílskúr
Sameiginl. inngangur
Laus strax
Opið hús: 18. apríl 2026
kl. 13:30
til 14:00
Opið hús: Skipholt 55, 2. hæð hægri, 105 Reykjavík. Eignin verður sýnd laugardaginn 18. apríl 2026 milli kl. 13:30 og 14:00.
Lýsing
*ENDAÍBÚÐ MEÐ BÍLSKÚR*
*LAUS STRAX*
Lögheimili eignamiðlun kynnir bjarta og vel skipulagða 4ra herbergja endaíbúð á 2. hæð í fjölbýlishúsi, ásamt bílskúr, á góðum og fjölskylduvænum stað í Holta/Hlíðahverfi. Birt stærð eignar er samtals 117,4 fm. og þar af er bílskúr 21,4 fm., skv. fasteignayfirliti. Rúmgóðar vestursvalir. Stór sameiginleg lóð með leiktækjum. Örstutt er í leikskóla og grunnskóla og í göngufæri við framhaldsskóla, verslanir, sundlaug, bókasafn, heilsugæslu, Klambratún o.fl.
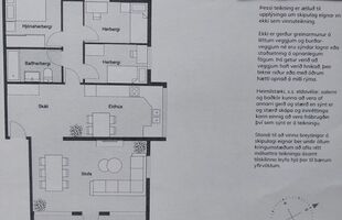
Eignin skiptist í: Anddyri/hol, eldhús, stofu, svefnherbergisgang, 3 herbergi og baðherbergi. Sérgeymsla er í kjallara. Bílskúr er í bílskúrslengju.
Nánari upplýsingar veitir: Eggert Ólafsson, löggiltur fasteignasali, í síma 893 1819, [email protected]
Endurnýjað og viðgert:
Húsið: Frárennsli var fóðrað í sameign árið 2020/2021. Skipt um glugga á austurhlið hússins og hús múrviðgert/málað, árið 2011. Þak viðgert árið 2022. Teppi endurnýjuð í stigagangi árið 2018.
Íbúð: Innréttingar, innihurðir, gólfefni og baðherbergi, var endurnýjað fyrir ca. 15 árum. Innbyggð ný uppþvottavél.
Bílskúr: Nýleg bílskúrshurð er með nýlegum fjarstýrðum hurðaopnara. Skipt um þrýstijafnara á hitagrind bílskúra árið 2026.
Nánari lýsing: Komið er inn í rúmgott anddyri/hol með fataskáp, sem er opið inn í stofu og eldhús. Í eldhúsi er innrétting sem er bæði hvít og með eikaráferð, ásamt veggföstu eldhúsborði, innbyggðri nýlegri uppþvottavél og innbyggðum ísskáp/frysti. Björt stofa er með útgengt á rúmgóðar svalir. Svefnherbergisgangur er með fataskáp. Í baðherbergi er hvít innrétting, baðkar með glerskilrúmi og sturtustöng, handklæðaofn, upphengt salerni, tengi fyrir þvottavél og flísar kringum baðkar. Hjónaherbergi er með fataskáp og viðarklæðningu við höfðagafl. Tvö herbergi og annað er með fataskáp. Parket er á gólfum, nema á baðherbergi þar sem eru flísar. Sérgeymsla og sameiginlegt þvottahús, eru í kjallara.
Bílskúr: Nýleg bílskúrshurð er með nýlegum fjarstýrðum hurðaopnara, upphitaður, niðurfalli í gólfi og rennandi köldu vatni. Greiddar eru kr. 2.654 á mánuði í áætlaðan hitakostnað vegna bílskúrsins og er það innheimt af einum eigenda í bílskúrslengjunni. Einn hitamælir er fyrir alla bílskúra í lengjunni. Nýlega var skipt um þrýstijafnara á hitagrind bílskúra.
Annað: Samkvæmt fasteignayfirliti er birt stærð íbúðar 90,9 fm., geymslu í kjallara 5,1 fm. og bílskúrs 21,4 fm., eða samtals 117,4 fm. Eignin hefur verið í útleigu frá árinu 2021.
Yfirlýsing vegna tengsla fasteignasala: Annar eigenda Skipholts 55, f.nr. 201-3296, starfar sem fasteignasali á Lögheimili eignamiðlun, sem selur eignina.
Skoðunarskylda: Í lögum um fasteignakaup nr. 40/2002 er kveðið á um ríka skoðunarskyldu kaupenda á fasteignum. Vill Lögheimili eignamiðlun því skora á væntanlega kaupendur að kynna sér vel ástand fasteigna fyrir kauptilboðsgerð og leita til þar til bærra sérfræðinga um nánari skoðun.
Forsendur söluyfirlits: Söluyfirlit er samið af fasteignasala í samræmi við ákvæði laga nr. 70/2015. Þær upplýsingar sem fram koma í söluyfirliti þessu eru sóttar í opinberar skrár, til seljanda sjálfs og eftir atvikum til húsfélags. Seljandi veitir upplýsingar um eign í samræmi við upplýsingaskyldu laga um fasteignakaup nr. 40/2002. Fasteignasali sannreynir að þær upplýsingar séu réttar með sjónskoðun á eigninni. Fasteignasali getur ekki fullyrt um ástand og eiginleika þeirra hluta fasteigna sem ekki eru aðgengilegir og sjást ekki berum augum, t.d. lagnir, dren, skólp og þak.
Gjöld sem kaupandi þarf að standa straum af vegna kaupanna:
1. Stimpilgjald af kaupsamningi - 0,4 til 0,8% hjá einstaklingum og 1,6% hjá lögaðilum af heildarfasteignamati.
2. Þinglýsingargjald af kaupsamningi, veðskuldabréfi, mögulegu veðleyfi o.fl. - kr. 3.800 af hverju skjali.
3. Lántökugjald lánastofnunar skv. gjaldskrá. Nánari upplýsingar á t.d. heimasíðu lánastofnana.
4. Umsýslugjald til fasteignasölu, sbr. kauptilboð.
*LAUS STRAX*
Lögheimili eignamiðlun kynnir bjarta og vel skipulagða 4ra herbergja endaíbúð á 2. hæð í fjölbýlishúsi, ásamt bílskúr, á góðum og fjölskylduvænum stað í Holta/Hlíðahverfi. Birt stærð eignar er samtals 117,4 fm. og þar af er bílskúr 21,4 fm., skv. fasteignayfirliti. Rúmgóðar vestursvalir. Stór sameiginleg lóð með leiktækjum. Örstutt er í leikskóla og grunnskóla og í göngufæri við framhaldsskóla, verslanir, sundlaug, bókasafn, heilsugæslu, Klambratún o.fl.
Eignin skiptist í: Anddyri/hol, eldhús, stofu, svefnherbergisgang, 3 herbergi og baðherbergi. Sérgeymsla er í kjallara. Bílskúr er í bílskúrslengju.
Nánari upplýsingar veitir: Eggert Ólafsson, löggiltur fasteignasali, í síma 893 1819, [email protected]
Endurnýjað og viðgert:
Húsið: Frárennsli var fóðrað í sameign árið 2020/2021. Skipt um glugga á austurhlið hússins og hús múrviðgert/málað, árið 2011. Þak viðgert árið 2022. Teppi endurnýjuð í stigagangi árið 2018.
Íbúð: Innréttingar, innihurðir, gólfefni og baðherbergi, var endurnýjað fyrir ca. 15 árum. Innbyggð ný uppþvottavél.
Bílskúr: Nýleg bílskúrshurð er með nýlegum fjarstýrðum hurðaopnara. Skipt um þrýstijafnara á hitagrind bílskúra árið 2026.
Nánari lýsing: Komið er inn í rúmgott anddyri/hol með fataskáp, sem er opið inn í stofu og eldhús. Í eldhúsi er innrétting sem er bæði hvít og með eikaráferð, ásamt veggföstu eldhúsborði, innbyggðri nýlegri uppþvottavél og innbyggðum ísskáp/frysti. Björt stofa er með útgengt á rúmgóðar svalir. Svefnherbergisgangur er með fataskáp. Í baðherbergi er hvít innrétting, baðkar með glerskilrúmi og sturtustöng, handklæðaofn, upphengt salerni, tengi fyrir þvottavél og flísar kringum baðkar. Hjónaherbergi er með fataskáp og viðarklæðningu við höfðagafl. Tvö herbergi og annað er með fataskáp. Parket er á gólfum, nema á baðherbergi þar sem eru flísar. Sérgeymsla og sameiginlegt þvottahús, eru í kjallara.
Bílskúr: Nýleg bílskúrshurð er með nýlegum fjarstýrðum hurðaopnara, upphitaður, niðurfalli í gólfi og rennandi köldu vatni. Greiddar eru kr. 2.654 á mánuði í áætlaðan hitakostnað vegna bílskúrsins og er það innheimt af einum eigenda í bílskúrslengjunni. Einn hitamælir er fyrir alla bílskúra í lengjunni. Nýlega var skipt um þrýstijafnara á hitagrind bílskúra.
Annað: Samkvæmt fasteignayfirliti er birt stærð íbúðar 90,9 fm., geymslu í kjallara 5,1 fm. og bílskúrs 21,4 fm., eða samtals 117,4 fm. Eignin hefur verið í útleigu frá árinu 2021.
Yfirlýsing vegna tengsla fasteignasala: Annar eigenda Skipholts 55, f.nr. 201-3296, starfar sem fasteignasali á Lögheimili eignamiðlun, sem selur eignina.
Skoðunarskylda: Í lögum um fasteignakaup nr. 40/2002 er kveðið á um ríka skoðunarskyldu kaupenda á fasteignum. Vill Lögheimili eignamiðlun því skora á væntanlega kaupendur að kynna sér vel ástand fasteigna fyrir kauptilboðsgerð og leita til þar til bærra sérfræðinga um nánari skoðun.
Forsendur söluyfirlits: Söluyfirlit er samið af fasteignasala í samræmi við ákvæði laga nr. 70/2015. Þær upplýsingar sem fram koma í söluyfirliti þessu eru sóttar í opinberar skrár, til seljanda sjálfs og eftir atvikum til húsfélags. Seljandi veitir upplýsingar um eign í samræmi við upplýsingaskyldu laga um fasteignakaup nr. 40/2002. Fasteignasali sannreynir að þær upplýsingar séu réttar með sjónskoðun á eigninni. Fasteignasali getur ekki fullyrt um ástand og eiginleika þeirra hluta fasteigna sem ekki eru aðgengilegir og sjást ekki berum augum, t.d. lagnir, dren, skólp og þak.
Gjöld sem kaupandi þarf að standa straum af vegna kaupanna:
1. Stimpilgjald af kaupsamningi - 0,4 til 0,8% hjá einstaklingum og 1,6% hjá lögaðilum af heildarfasteignamati.
2. Þinglýsingargjald af kaupsamningi, veðskuldabréfi, mögulegu veðleyfi o.fl. - kr. 3.800 af hverju skjali.
3. Lántökugjald lánastofnunar skv. gjaldskrá. Nánari upplýsingar á t.d. heimasíðu lánastofnana.
4. Umsýslugjald til fasteignasölu, sbr. kauptilboð.
Ár
Fasteignamat
Kaupverð
Stærð
Fermetraverð
2. des. 2021
45.950.000 kr.
57.000.000 kr.
117.4 m²
485.520 kr.
12. ágú. 2011
19.350.000 kr.
28.000.000 kr.
117.4 m²
238.501 kr.
15. maí. 2007
18.540.000 kr.
23.900.000 kr.
117.4 m²
203.578 kr.
Byggt á upplýsingum úr Þjóðskrá Íslands frá 2006-2026