Löggiltir fasteignasalar innan Félags fasteignasala:
Ástþór Reynir Guðmundsson
Vigdís R. S. Helgadóttir
Guðbjörg Helga Jóhannesdóttir
Gylfi Jens Gylfason
Sigrún Matthea Sigvaldadóttir
Sveinn Gíslason
Páll Guðmundsson
Þórarinn Arnar Sævarsson
Berglind Hólm Birgisdóttir
Þorsteinn Gíslason
Guðrún Lilja Tryggvadóttir
Brynjar Ingólfsson
Guðný Þorsteinsdóttir
Bjarni Blöndal
Þorsteinn Ólafs
Þórdís Björk Davíðsdóttir
Jóhann Kristinn Jóhannesson
Bjarný Björg Arnórsdóttir
Salvör Þóra Davíðsdóttir
Magga Sigríður Gísladóttir
Upplýsingar
Byggt 1946
95,5 m²
3 herb.
1 baðherb.
2 svefnh.
Þvottahús
Sameiginl. inngangur
Lýsing
Sigrún Gréta hjá RE/MAX kynnir 3ja herb. íbúð á 2. hæð að Snorrabraut 35 í Reykjavík. Tekjumöguleikar, því í kjallara er um 11 m2 herbergi í útleigu með eldunaraðstöðu. Sameiginlegt salerni og sturta fyrir það er í sameign. Íbúðin er björt með gluggum bæði út í garð og út að Snorrabraut. Út frá svefnherbergi er rúmgóðar SA-svalir. Húsið er steinsteypt og hefur verið endursteinað. Einnig hefur þakjárn verið endurnýjað. Frábær staðsetning í hjarta miðbæjarins þar sem allt er til alls og göngufæri í Sundhöll Reykjavíkur og leik- og grunnskóla.
Allar frekari upplýsingar um eignina veitir Sigrún Gréta í síma 864-0061 / [email protected]
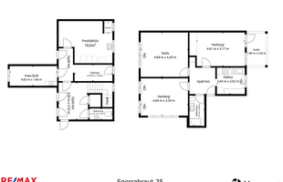
Eignin skiptist í forstofuhol, tvær stofur, svefnherbergi, eldhús, baðherbergi, stúdíórými og geymslu. Eignin er skráð hjá Húsnæðis- og mannvirkjastofnun 95,5 m2.
**HÉR MÁ NÁLGAST 3D MYNDBAND AF EIGNINNI, INNI- OG ÚTI. KÍKTU Í HEIMSÓKN!
*VINSAMLEGA SMELLIÐ HÉR TIL AÐ FÁ NÁNARI UPPLÝSINGAR UM EIGNINA
Smelltu hér og þú færð söluyfirlit strax
Nánari lýsing:
Forstofa er inn af mjög rúmgóðum teppalögðum stigagangi. Innan íbúðar er komið inn á stórt parketlagt hol. Innskot er fyrir yfirhafnir.
Herbergi er mjög stórt og með innfelldum viðarfataskápum. Parket á gólfi. Útgengi er út á steyptar SA-svalir.
Stofa og borðstofa eru samliggjandi með op á milli, en hefur verið lokað með léttum vegg og er annað stofurýmið nýtt sem herbergi í dag. Hægt er að opna að nýju. Parket á gólfi.
Eldhús er með retro innréttingu á tveimur veggjum. Milli efri og neðri skápa eru flísar, sem og á gólfi. Ofn með helluborði og vifta fyrir ofan. Stæði fyrir uppþvottavél og ísskáp.
Baðherbergi er með hvítri innréttingu. Veggfestur spegill með ljósi. Baðkar með sturtu.
Geymsla/Herbergi í útleigu og er 10,7 m2. Gluggi með opnanlegu fagi. Innrétting með vaski á einum vegg.
Geymsla er sér, staðsett í kjallara. Hún er 4,4 m2.
Þvottahús er einstaklega rúmgott, staðsett í sameign í kjallara. Hver með sínar vélar. Þvottasnúrur og skolvaskur. Í þvottahúsi er einnig sturtuklefi.
Salerni í sameign fyrir útleiguherbergin í kjallara.
Auka herbergi í sameign er í eigu allra. Það herbergi er í útleigu og fara tekjur þess inn í sjóð húsfélags.
Garður er í porti aftan við hús. Grasflötur, malarplan og trjágróður. Ekið inn frá Grettisgötu.
Hjólageymsla er í læstri geymslu úti í garði (undir svölum 1. hæðar).
-Vegna mikillar eftirspurnar vantar allar tegundir eigna á skrá.
-Hafðu samband og við verðmetum eignina þína þér að kostnaðarlausu.
-Sigrún Gréta löggiltur fasteignasali í síma 864 0061 eða [email protected]
Gjöld sem kaupandi þarf að standa straum af vegna kaupanna:
1. Stimpilgjald af kaupsamningi - 0,8% (0,4% fyrir fyrstu kaupendur) og 1,6% fyrir lögaðila. Reiknast af heildarfasteignamati.
2. Þinglýsingargjald af kaupsamningi, veðskuldabréfi, mögulegu veðleyfi o.fl. - 3.800 kr. af hverju skjali.
3. Lántökugjald eftir gjaldskrá lánastofnunar. Nánari upplýsingar á heimasíðum lánastofnana.
4. Umsýslugjald til fasteignasölu kr. 69.900.-
Allar frekari upplýsingar um eignina veitir Sigrún Gréta í síma 864-0061 / [email protected]
Eignin skiptist í forstofuhol, tvær stofur, svefnherbergi, eldhús, baðherbergi, stúdíórými og geymslu. Eignin er skráð hjá Húsnæðis- og mannvirkjastofnun 95,5 m2.
**HÉR MÁ NÁLGAST 3D MYNDBAND AF EIGNINNI, INNI- OG ÚTI. KÍKTU Í HEIMSÓKN!
*VINSAMLEGA SMELLIÐ HÉR TIL AÐ FÁ NÁNARI UPPLÝSINGAR UM EIGNINA
Smelltu hér og þú færð söluyfirlit strax
Nánari lýsing:
Forstofa er inn af mjög rúmgóðum teppalögðum stigagangi. Innan íbúðar er komið inn á stórt parketlagt hol. Innskot er fyrir yfirhafnir.
Herbergi er mjög stórt og með innfelldum viðarfataskápum. Parket á gólfi. Útgengi er út á steyptar SA-svalir.
Stofa og borðstofa eru samliggjandi með op á milli, en hefur verið lokað með léttum vegg og er annað stofurýmið nýtt sem herbergi í dag. Hægt er að opna að nýju. Parket á gólfi.
Eldhús er með retro innréttingu á tveimur veggjum. Milli efri og neðri skápa eru flísar, sem og á gólfi. Ofn með helluborði og vifta fyrir ofan. Stæði fyrir uppþvottavél og ísskáp.
Baðherbergi er með hvítri innréttingu. Veggfestur spegill með ljósi. Baðkar með sturtu.
Geymsla/Herbergi í útleigu og er 10,7 m2. Gluggi með opnanlegu fagi. Innrétting með vaski á einum vegg.
Geymsla er sér, staðsett í kjallara. Hún er 4,4 m2.
Þvottahús er einstaklega rúmgott, staðsett í sameign í kjallara. Hver með sínar vélar. Þvottasnúrur og skolvaskur. Í þvottahúsi er einnig sturtuklefi.
Salerni í sameign fyrir útleiguherbergin í kjallara.
Auka herbergi í sameign er í eigu allra. Það herbergi er í útleigu og fara tekjur þess inn í sjóð húsfélags.
Garður er í porti aftan við hús. Grasflötur, malarplan og trjágróður. Ekið inn frá Grettisgötu.
Hjólageymsla er í læstri geymslu úti í garði (undir svölum 1. hæðar).
-Vegna mikillar eftirspurnar vantar allar tegundir eigna á skrá.
-Hafðu samband og við verðmetum eignina þína þér að kostnaðarlausu.
-Sigrún Gréta löggiltur fasteignasali í síma 864 0061 eða [email protected]
Gjöld sem kaupandi þarf að standa straum af vegna kaupanna:
1. Stimpilgjald af kaupsamningi - 0,8% (0,4% fyrir fyrstu kaupendur) og 1,6% fyrir lögaðila. Reiknast af heildarfasteignamati.
2. Þinglýsingargjald af kaupsamningi, veðskuldabréfi, mögulegu veðleyfi o.fl. - 3.800 kr. af hverju skjali.
3. Lántökugjald eftir gjaldskrá lánastofnunar. Nánari upplýsingar á heimasíðum lánastofnana.
4. Umsýslugjald til fasteignasölu kr. 69.900.-